STARTERSWONING MET FIJNE LOCATIE GELEGEN AAN DOORGAAND VAARWATER !
Deze STARTERSWONING met BERGING ligt op een fijne locatie met een westen tuinligging en direct aan doorgaand vaarwater! Een keurige woning met 3 slaapkamers, een open L-vormige keuken en een ruime badkamer met whirpool. De woning heeft een centrale ligging, overdekt winkelcentrum, scholen en recreatie gebied liggen op loopafstand.
De woning wordt verkocht bij inschrijving onder gunning met vraagprijs van € 350.000,--.
RE/MAX makelaar Han van Wijk begeleidt u graag bij de bezichtiging.
De inschrijving eindigt op maandag 31 maart 2025 om 17.00 uur.
Iedereen wordt op deze wijze in de gelegenheid gesteld om een bieding uit te kunnen brengen.
Beelden vertellen u meer dan tekst. Wij verwijzen u dan ook graag naar onze video, de Matterport presentatie én de interactieve video op onze site. U krijgt hierbij een video introductie, een videovlucht om én door de woning en maar liefst meer dan 75 foto’s van het object. U kunt de woning ook op een virtuele wijze bekijken. Dit kan met een VR bril, die wij bij de bezichtiging aan u zullen verstrekken, voor de ultieme beleving!
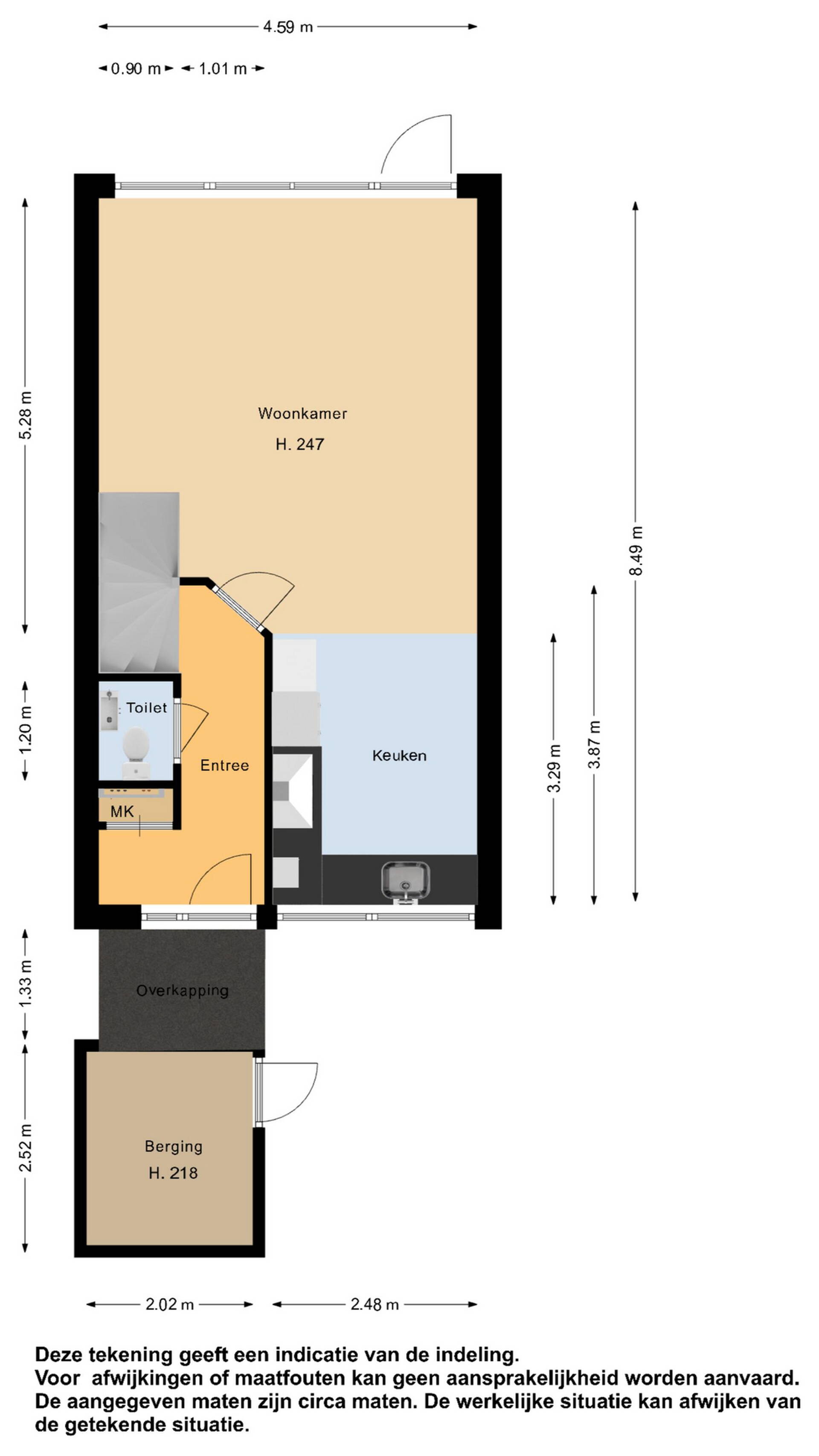
Begane grond: via de entree komt u in de hal met garderobe, meterkast en toiletruimte met closet en fonteintje. Vanuit deze hal kunt u ook de 1e verdieping bereiken.
U heeft de beschikking over een hoek opgestelde keuken aan de voorzijde van de woning! Vanuit de keuken heeft u zicht op een speelterreintje, handig wanneer de kids buiten aan het spelen zijn. De keuken is in een lichte kleurstelling uitgevoerd met ruim werkblad. Aan inbouwapparatuur treft u een 5 pits gaskookplaat, combimagnetron, vaatwasser en een koelkast aan. Doordat de keuken aan de voorzijde van de woning is gelegen, heeft u extra veel ruimte in de living te pakken!
De tuingerichte woonkamer geeft u met de openslaande tuindeur direct toegang tot de achtergelegen terrastuin op het westen. Door de vormgeving van de living kunt u op diverse wijzen uw interieur inrichten. Vanaf de bank heeft u ook een heerlijk uitzicht op de tuin. Door de ligging van deze woning heeft u veel privacy in uw woonkamer. Op de vloer is een laminaatvloer gelegd en de wanden zijn keurig netjes afgewerkt! Het plafond is op speciale en een originele wijze afgewerkt!
1e verdieping: via de overloop heeft u toegang tot 2 slaapkamers over de volle breedte van de woning en een ruime badkamer. Tezamen met de zolderverdieping heeft u 3 slaapkamers totaal. De kamers zijn allen keurig afgewerkt. In 2 van de 3 slaapkamers kunt u eenvoudig een 2-persoonsbed plaatsen. De slaapkamers op de 1e én 2e etage aan de achterzijde zijn voorzien van recht opgetrokken wanden.
De ruime badkamer is betegeld in een lichte kleurstelling met kleurige mediterrane accenten en voorzien van een wastafel, speciaal vormgegeven whirpool/ligbad, douchegelegenheid en hangcloset. Op de vloer treft u een plavuizenvloer aan. Bovendien is deze badkamer voorzien van een design-radiator.
2e verdieping: op de 2e verdieping treft u op de voorzolder de HR CV combiketel aan. Daarnaast kunt u hier prima uw wasmachine- en wasdrogeropstelling kwijt. Op deze zolderverdieping heeft u een fijne verwarmde zolderkamer tot uw beschikking. De slaapkamer is keurig afgewerkt en u kunt hier prima een tweepersoonsbed plaatsen. U zult op deze verdieping ook extra bergruimte aantreffen.
Tuin: de fijne terras/tuin op het westen zal u de gehele dag voorzien van heerlijke zonnige temperaturen. Wanneer het te zonnig is, kunt u fijn beschut in de schaduw onder het terrasscherm plaatsnemen. De sierbestrating maakt dat de tuin onderhoudsarm is. Een heerlijke tuin om gezellig met het gezin, vrienden of familie een feestje te vieren! Wanneer u komt kijken, let u dan eens op de privacy dat u in deze tuin zult ervaren. U heeft ook de beschikking over doorgaand vaarwater aan de achterzijde van de woning waar u lekker uw bootje kunt aanmeren. Van hieruit kunt u heerlijke vaartochten maken inclusief een tocht door de binnenstad van Alkmaar! Een bijzondere locatie dus.
Berging: de berging aan de voorzijde is een ideale plek om uw fietsen en gereedschappen te stallen of op te bergen.
Bijzonderheden:
De woning ligt direct aan het doorgaand vaarwater. Winkelcentrum de Mare is op loopafstand gelegen. Een fijne woning voor starters. De woning is voorzien van een bouwkundig rapport, dat bij de bezichtiging wordt meegegeven.
De woning wordt verkocht bij inschrijving onder gunning met vraagprijs van € 350.000,--.
RE/MAX makelaar Han van Wijk begeleidt u graag bij de bezichtiging.
De inschrijving eindigt op maandag 31 maart 2025 om 17.00 uur.
Iedereen wordt op deze wijze in de gelegenheid gesteld om een bieding uit te kunnen brengen.
Bouwjaar: 1983
Inhoud: ca. 340 m³
Woonoppervlakte: ca. 97 m²
Externe bergruimte: ca. 5 m²
Gebouwgebonden buitenruimte: ca. 3 m²
Perceeloppervlakte: 85 m²