** Kom en Kijk **
Op maandag 9 februari van 17.00 tot 18.00 uur en zaterdag 14 februari van 15.00 tot 16.00 uur kunt u vrijblijvend en zonder afspraak de woning bezichtigen.
RE/MAX makelaar Han van Wijk begeleidt u graag bij de bezichtiging.
STARTERSWONING OP FIJNE LOCATIE!
Deze STARTERSWONING met BERGING ligt op een fijne locatie met een tuin op het westen en parkeergelegenheid achter de woning! Een keurige woning met een functionele keuken met zicht op de straat, ruime living en 2 slaapkamers over de volle breedte van de woning. De woning heeft een centrale ligging, overdekt winkelcentrum, scholen en recreatie gebied liggen op loopafstand.
De woning wordt verkocht bij inschrijving onder gunning met vraagprijs van € 325.000,--.
Op maandag 9 februari van 17.00 tot 18.00 uur en zaterdag 14 februari van 15.00 tot 16.00 uur kunt u vrijblijvend en zonder afspraak de woning bezichtigen.
RE/MAX makelaar Han van Wijk begeleidt u graag bij de bezichtiging.
De inschrijving eindigt op maandag 2 maart 2026 om 17.00 uur.
Iedereen wordt op deze wijze in de gelegenheid gesteld om een bieding uit te kunnen brengen.
Beelden vertellen u meer dan tekst. Wij verwijzen u dan ook graag naar onze video, de Matterport presentatie én de interactieve video op onze site. U krijgt hierbij een video introductie, een videovlucht om én door de woning en maar liefst meer dan 75 foto’s van het object. U kunt de woning ook op een virtuele wijze bekijken. Dit kan met een VR bril, die wij bij de bezichtiging aan u zullen verstrekken, voor de ultieme beleving!
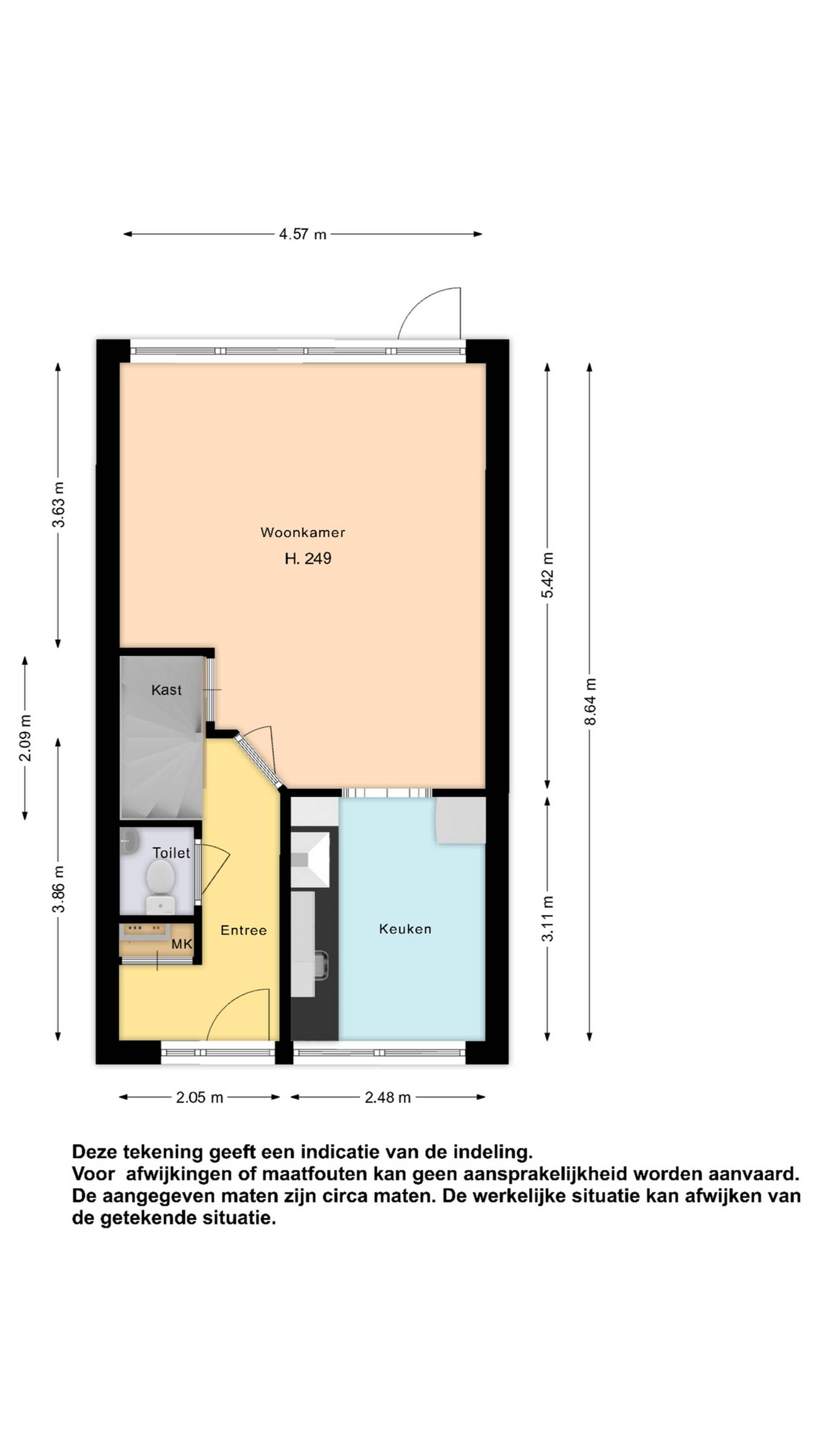
Begane grond: via de entree komt u in de hal met garderobe, meterkast en toiletruimte met closet en fonteintje. Vanuit deze hal kunt u ook de 1e verdieping bereiken.
De tuingerichte woonkamer geeft u met de openslaande tuindeur direct toegang tot de achtergelegen terrastuin op het westen. Door de vormgeving van de living kunt u op diverse wijzen uw interieur inrichten. Vanaf de bank heeft u ook een heerlijk uitzicht op de tuin. Door de gunstige ligging van deze woning heeft u veel privacy in uw living. Op de vloer treft u een laminaatvloer, de wanden en het plafond zijn keurig netjes afgewerkt. In de ruimte heeft u een ruime trapkast tot uw beschikking. Altijd handig om uw spulletjes een plekje te geven.
Middels een toog kunt u de functionele open keuken bereiken. Deze keuken is aan de voorzijde van de woning gelegen. Vanuit de keuken heeft u zicht op de straat en openbaar groen. De keuken is in rechte optelling geplaatst. Aan apparatuur heeft u een 4 pits gaskookplaat, vaatwasser en een afzuigkap tot uw beschiking. U heeft hier eenvoudig de mogelijkheid om een keuken in een L- of U-opstelling te plaatsen.
1e verdieping: via de overloop heeft u toegang tot 2 slaapkamers over de volle breedte van de woning en een flinke badkamer. Beide kamers zijn keurig afgewerkt. In alle twee de slaapkamers kunt u eenvoudig een 2-persoonsbed plaatsen.
Op de overloop treft u een separate kast waar zich onder meer de CV combiketel en mechanische ventilatie unit zich bevinden.
De badkamer is betegeld in een lichte kleurstelling met deels stucwerk op de wanden. Verder is deze functionele badkamer voorzien van een douchegelegenheid, wastafelmeubel met kast en closet. Bovendien kunt u in deze badkamer prima uw wasmachine een plaatsje geven.
Tuin: de fijne terras/tuin op het westen zal u de gehele dag voorzien van heerlijke zonnige temperaturen. Wanneer het te zonnig is, kunt u fijn beschut in de schaduw onder het terrasscherm plaatsnemen. De sierbestrating maakt dat de tuin onderhoudsarm is. Een heerlijke tuin om gezellig met het gezin, vrienden of familie een feestje te vieren! Wanneer u komt kijken, let u dan eens op de privacy dat u in deze tuin zult ervaren. Via een poort kunt u het parkeerterrein bereiken. Zo kunt u ook met uw boodschappen achterom. U heeft hier voldoende parkeergelegenheid.
Berging: de berging aan de achterzijde is een ideale plek om uw fietsen en gereedschappen te stallen of op te bergen. De berging is voorzien van een betonvloer. U kunt prima achterom komen met uw motor om deze in uw berging of bij uw huis te stallen.
Bijzonderheden:
De woning ligt nabij doorgaand vaarwater. Hier kunt u uw bootje aanmeren en dan heerlijke vaartochten maken inclusief een tocht door de binnenstad van Alkmaar! Een bijzondere locatie dus. Winkelcentrum de Mare is op loopafstand gelegen. Een fijne woning voor starters. De woning is voorzien van een bouwkundig rapport, dat bij de bezichtiging wordt meegegeven.
De woning wordt verkocht bij inschrijving onder gunning met vraagprijs van € 325.000,--.
Op maandag 9 februari van 17.00 tot 18.00 uur en zaterdag 14 februari van 15.00 tot 16.00 uur kunt u vrijblijvend en zonder afspraak de woning bezichtigen.
RE/MAX makelaar Han van Wijk begeleidt u graag bij de bezichtiging.
De inschrijving eindigt op maandag 2 maart 2026 om 17.00 uur.
Iedereen wordt op deze wijze in de gelegenheid gesteld om een bieding uit te kunnen brengen.
Bouwjaar: 1983
Inhoud: ca. 262 m³
Woonoppervlakte: ca. 75 m²
Externe bergruimte: ca. 6 m²
Perceeloppervlakte: 95 m²