Let op, we hebben weer een parel van een woning die u niet vaak tegenkomt in Andijk. Bent u op zoek naar een ruime, instapklare, goed afgewerkte, volledig geïsoleerde eindwoning met tuin op het zuiden en oprit naar uw eigen garage met vliering? Een woning die dichtbij alle voorzieningen is gelegen, van boven tot beneden is voorzien van (elektrische) vloerverwarming, zonnepanelen, nieuw stucwerk, nagenoeg nieuwe keuken met lichtkoepel en aluminium overkapping die pas dit jaar geplaatst is? Dan zou ik niet verder zoeken en direct bellen voor een afspraak of langskomen op een van de Kom en Kijk-momenten.
***KOM EN KIJK***
Op zaterdag 29 November 2025 van 15:00 uur tot 16:00 uur kunt u tijdens de KOM en KIJK vrijblijvend zonder afspraak de woning komen bezichtigen.
INDELING:
BEGANE GROND:
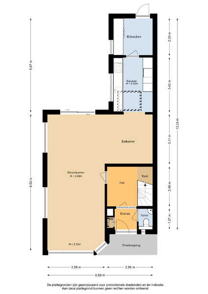
Als we de voortuin in komen lopen, valt het al gelijk op: strakke bestrating, verzorgde planten, luxe erker, dit is een woning met een hoog afwerkingsniveau. De juiste materialen zijn gebruikt en u voelt gelijk een warme, moderne, luxe sfeer die u normaal alleen in woningmagazines tegenkomt. Als we de woning betreden via de voordeur, komen we uit in een vestibule waar zich de in 2024 vernieuwde meterkast en toiletruimte met vrijhangend wandcloset en fonteintje bevindt. Vervolgens komen we uit in de grote hal met kapstok en slimme opbergplek voor alle schoenen, weggewerkt onder de trapopgang naar boven. In de hal bevindt zich ook de entree naar de zonnige doorzonwoonkamer, waar zelfs genoeg ruimte is voor de stijlvolle zwarte piano. Er valt veel licht in de woonkamer doordat er aan de voorzijde van de woning een erker geplaatst is, het een eindwoning betreft met aan de oostkant van de woning 2 ramen en aan de achterzijde hebben we nog een royale schuifpui naar de op het zuiden gelegen zonnige tuin met nieuw geplaatste aluminium overkapping waar u 's morgens heerlijk met een kopje koffie in de hand uw favoriete krantje leest.
Lopen we richting de nagenoeg nieuwe keuken, dan valt gelijk de massieve eetkamertafel met luxe zitbank op, waar we recht in de ogen kijken van een Schotse hooglander in de vorm van een volledige muurbekleding van wand tot wand, een noemenswaardig detail waar iedereen u tijdens de heerlijke etentjes met familie of vrienden u zeker mee zal complimenteren.
De volledig in 2024/2025 vernieuwde, in wit met zwart uitgevoerde keuken is voorzien van een luxueuze lichtkoepel en de nieuwste moderne inbouwapparatuur, zoals een Bora-inductiekookplaat met ingebouwd afzuigsysteem, een vaatwasser, een magnetron/combi-oven en een aparte koelkast en vriezer. De huidige eigenaren hebben hier ook een heuse koffiecorner gecreëerd waar u een heerlijke cappuccino of espresso kunt maken.
We kunnen de tuin betreden door de zojuist genoemde schuifpui, maar ook via de aan de keuken grenzende bijkeuken, waar momenteel de was- en drooggelegenheid is geplaatst onder een werkblad waar u fluitend de was op kunt vouwen.
De op het zuiden gerichte tuin met achterom voelt als een oase van rust en kalmte door de gebruikte lichte kleuren, planten, fruit en palmbomen. We treffen hier ook de grote garage met vliering aan, waar u uw auto met gemak in kwijt kunt. Doordat de garage straatgericht is aan de oostzijde van de woning, kunt u uw auto ook op de inrit voor uw garage parkeren en blijft de garage vrij voor andere stalling/opbergmogelijkheden, of kunt u klusjes uitvoeren aan de werkbank die hierin achterblijft.
1e VERDIEPING:
Als we in de hal op de 1e verdieping aankomen, doet deze ruim aan en biedt deze toegang tot 3 slaapkamers die allemaal verschillend van formaat zijn, waarbij de grootste slaapkamer ook toegang biedt tot het op het zuiden gerichte compacte balkon en waar in alle kamers met gemak een tweepersoonsbed geplaatst kan worden. Over de gehele bovenverdieping ligt een laminaatvloer in een warme kleurstelling die prima bij de rest van het interieur past en een luxe uitstraling heeft.
De badkamer is voorzien van een vrijhangend wandcloset, inloopdouche met regen- en losse handdouche en een modern badkamermeubel met spiegel. Door de gekozen kleur van de wandtegels i.c.m. sierstenen als wandbekleding in de douche waant u zich bijna in een luxe spa of wellness.
2e VERDIEPING:
Als we de trap opgaan naar de 2e verdieping, komen we op de ruime voorzolder uit, waar u achter de knieschotten nog genoeg ruimte heeft om alle spulletjes die u weinig gebruikt uit het zicht op te ruimen.
Hier bevindt zich ook de Intergas Kombi Kompakt HRE 36/36A cv-combiketel uit 2019, die het gehele huis snel van warm water of verwarming kan voorzien.
Als laatste, maar zeker niet het minste, hebben we nog een zeer royale 4e slaapkamer van bijna 12m² met aan beide kanten opbergmogelijkheden en er is hier zelfs een aparte wastafel gemonteerd.
Op het dak liggen nog 9 zonnepanelen die in 2020 zijn geplaatst en voldoende energie leveren om uw verbruikskosten aanzienlijk te verlagen.
Omgeving:
Andijk voorziet volop in de dagelijkse behoeften: 2 supermarkten, slager, bakker, basisscholen, kinderopvang, restaurants, horeca, diverse sportfaciliteiten, buitenzwembad, een rijk verenigings- en ondernemersleven en niet te vergeten de jachthaven en het recreatiegebied de Vooroever met zijn strand. Via het fietspad op de West-Friese Omringdijk bent u binnen 10 minuten in de omliggende steden en dorpen met extra voorzieningen. Verkeersader A7 richting Amsterdam of Groningen en de binnenstad van Hoorn zijn binnen 15 autominuten te bereiken.
***KOM EN KIJK***
Op zaterdag 29 November 2025 van 15:00 uur tot 16:00 uur kunt u tijdens de KOM en KIJK vrijblijvend zonder afspraak de woning komen bezichtigen.
RE/MAX-makelaar Wesley Boode begeleidt u graag bij de bezichtiging.
De woning wordt verkocht onder gunning met een bieden-vanaf-prijs van € 435.000,--.
Iedereen wordt op deze wijze in de gelegenheid gesteld om zijn of haar interesse kenbaar te maken en een bieding uit te kunnen brengen.
Beelden vertellen u meer dan tekst. Wij verwijzen u dan ook graag naar onze foto-, video- en 360°-gradenpresentatie op onze site. U krijgt hierbij een video-introductie, een videovlucht om én door de woning en maar liefst meer dan 65 foto’s van het object.
Bouwjaar: 1970
Inhoud: ca. 451 m³
Woonoppervlakte: ca. 134 m²
Externe bergruimte: ca. 28 m²
Perceeloppervlakte: 206 m²
Energielabel B