Op zoek naar een zeer ruime 2-onder-1-kapwoning met 4 slaapkamers, dakterras, tuin op het zuiden met achterom en een garage? En dat allemaal gelegen in de buurt van alle voorzieningen in een rustige omgeving? Dan heeft u uw droomwoning nu gevonden! Bourgondiëweg 195 in Grootebroek kan binnenkort van u worden. Maak daarom snel een afspraak voor een bezichtiging of kom langs op een van de KOM en KIJK momenten om geheel vrijblijvend zonder afspraak de woning te bezichtigen.
***KOM EN KIJK***
Op dinsdag 9 september 2025 van 16:00 uur tot 17:00 uur en zaterdag 13 september van 15:00 uur tot 16:00 uur kunt u tijdens de KOM en KIJK vrijblijvend zonder afspraak de woning komen bezichtigen.
INDELING BEGANE GROND:
Bij binnenkomst in de hal treffen we de trapopgang naar boven, de meterkast met voldoende groepen, een ruime trapkast voor de nodige wegzet van bijvoorbeeld schoonmaakspullen, de stofzuiger of de lege flessen aan en tevens vinden we hier de toiletruimte met toilet en fonteintje.
Bij het betreden van de Z-vormige woon- en eetkamer valt gelijk op hoeveel licht er eigenlijk in de woning valt. Dit komt door de grote raampartijen voor en achter. De woonkamer is voorzien van een heerlijke houtgestookte allesbrander met riante schouw, welke door de huidige eigenaresse tot de dag van verhuizing is gebruikt en waarbij een deel van het rookkanaal een kleine 2 jaar geleden is vervangen en trouw elk jaar door de schoorsteenveger geveegd wordt.
De woonkamer is buiten de radiatoren verder voorzien van een tegelvloer in warme kleurstelling met vloerverwarming als bijverwarming, zodat u in de wintermaanden nooit koude voeten hoeft te hebben.
De keuken met houtlookkastjes in een warme kersen kleur is misschien wat gedateerd, maar nog steeds prima functioneel en voorzien van een gaskookplaat, afzuigkap, oven met grill, keukenboiler voor het warme water en zelfs een vaatwasser. In de aansluitende bijkeuken met toegang naar de tuin en garage ligt een tegelvloer met neutrale grijze kleur, waar de was- en droogopstelling heeft gestaan en die tevens voorzien is van diverse opbergmogelijkheden voor uw wasmiddelen en schoonmaakproducten in de aanwezige kastjes.
De ruime inpandig bereikbare garage met houten deuren is voorzien van een betonvloer, kast en een werkbankje waar u heerlijk op kunt klussen. U kunt prima uw auto op uw eigen oprit of in de garage parkeren, zodat u droog de boodschappen uit de achterbak van uw auto zo de keuken in loopt.
1e VERIEPING:
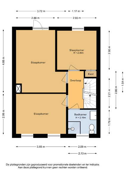
Op de 1e verdieping treffen we 3 ruime slaapkamers van verschillend formaat aan, waarbij u met gemak in elke kamer een 2-persoonsbed kunt plaatsen. De grootste slaapkamer is tevens voorzien van vaste inbouwkasten en van een deur naar het tuingerichte dakterras, uiteraard ook gelegen op het zonnige zuiden. De badkamer is voorzien van een douche, toilet en vrijhangend badkamermeubel met spiegel erboven.
2e VERDIEPING:
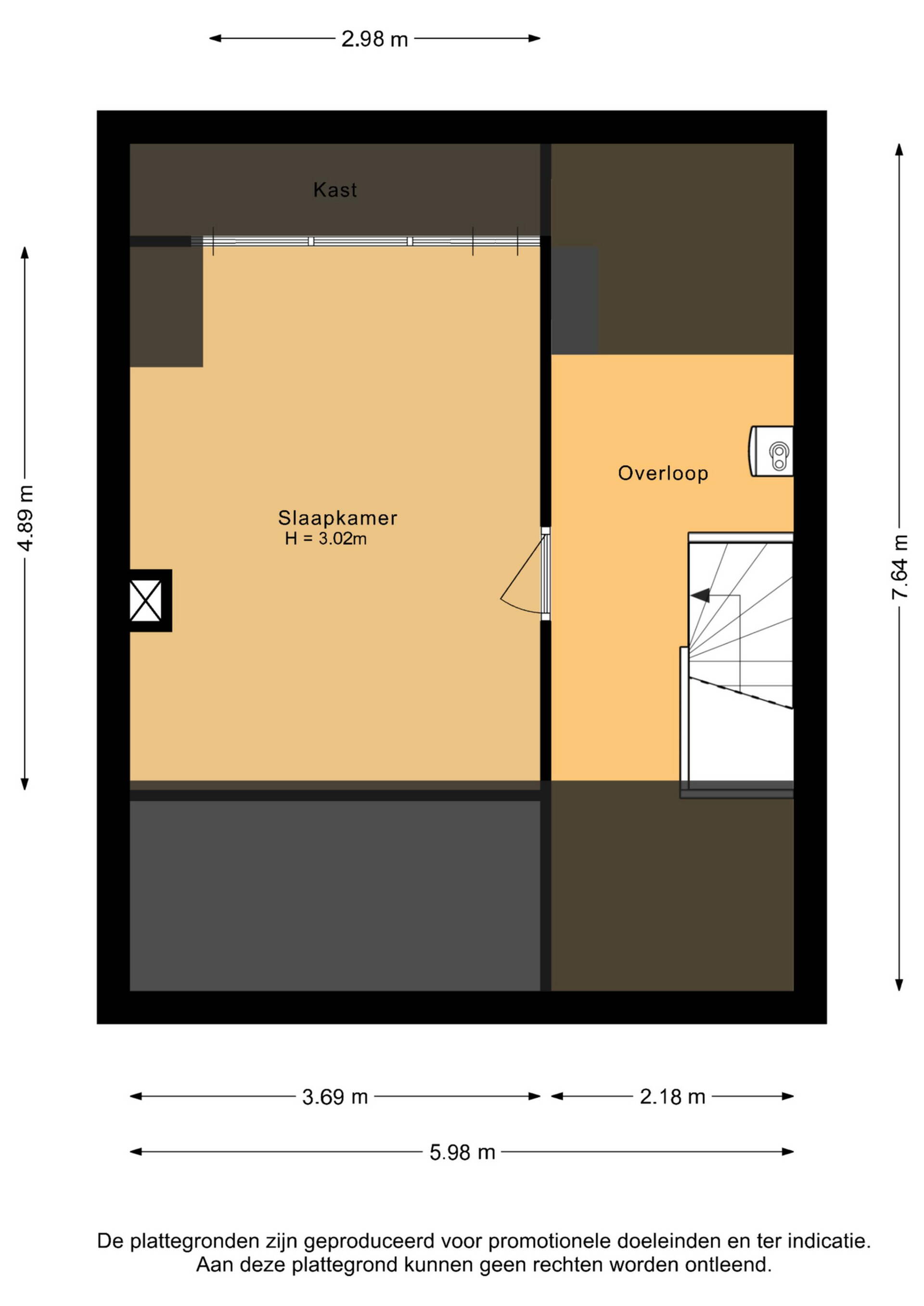
Als we op de bovenste etage komen, treffen we eerst de voorzolder aan met ontzettend veel ruimte om spullen weg te zetten onder de schuine gedeelten van het dak, een Velux-dakraam voor de ventilatie en de Remeha CV-combiketel uit 2015 die zorgdraagt voor het warme water en de verwarming. Maar dat is nog niet alles; we hebben namelijk nog een zeer grote 4e slaapkamer met dakkapel, voorzien van kunststof ramen op zolder, die ideaal zou zijn voor een tiener om zich terug te trekken van de dagelijkse stress van school of juist in alle rust te kunnen studeren of te gamen.
TUIN:
De bijna 100m² grote op het zuiden gelegen achtertuin met achterom is niet voorzien van 1, niet van 2, maar zelfs 3 bergingen voor opslag van spullen. één van de bergingen wordt momenteel gebruikt als droge opslag van al het haardhout voor in de allesbrander, maar zou ook prima dienst kunnen doen voor het wegzetten van de fietsen of de tuinmeubelen. Een grasmaaier hoeft u niet te kopen, de gehele tuin is bestraat met fraaie tegels.
OMGEVING EN VOORZIENINGEN:
De woning is gelegen in een rustige en geliefde groene wijk met diverse voorzieningen op loopafstand, Ik heb het dan over de Lidl-supermarkt op zo'n 300 meter, het grote overdekte winkelcentrum "het Streekhof" met alle denkbare mogelijke winkels op hemelsbreed een afstand van ongeveer 700 meter, diverse scholen voor het basis-, voortgezet en speciaal onderwijs, kinderopvang en diverse speeltuintjes en graspartijen waar kinderen heerlijk kunnen spelen of voetballen. Treinstation Bovenkarspel-Grootebroek ligt hemelsbreed ook op zo'n 600 meter van de woning, waar nagenoeg ieder half uur een trein vertrekt of aankomt en u al met ruim 45 minuten in hartje Amsterdam op het Centraal Station staat. Als u liever per auto reist, bent u ook binnen 10 minuten op de snelweg A7 richting Amsterdam of richting Groningen. Kortom, verbindingsmogelijkheden genoeg!
Bijzonderheden:
De woning wordt verkocht bij inschrijving onder gunning met een bieden vanaf prijs van € 375.000,--.
RE/MAX-makelaar Wesley Boode begeleidt u graag bij de bezichtiging.
De inschrijving eindigt op vrijdag 19 september 2025 om 17.00 uur.
Iedereen wordt op deze wijze in de gelegenheid gesteld om een bieding uit te kunnen brengen.
Beelden vertellen u meer dan tekst. Wij verwijzen u dan ook graag naar onze foto-, video- en 360°-gradenpresentatie op onze site. U krijgt hierbij een video-introductie, een videovlucht om én door de woning en maar liefst meer dan 65 foto’s van het object. Deze woning is ook voorzien van een bouwkundige keuring, die wij bij de bezichtiging zullen verstrekken.
Bouwjaar: 1973
Woonoppervlakte: ca. 133 m²
Overige inpandige ruimte: ca. 23 m²
Externe bergruimte: ca. 15 m²
Perceeloppervlakte: 256 m²
Inhoud: ca. 518 m³