HOEKWONING met KUNSTSTOF KOZIJNEN!
Deze aantrekkelijke HOEKWONING met BIJKEUKEN en BERGING is gelegen op een aantrekkelijk stek en heeft veel binnenruimte. De woning is voorzien van een luxe keuken, luxe badkamer en 3 ruime slaapkamers. De ligging is zeer centraal bij winkelcentrum, NS station en scholen. De woning heeft een zonnige tuin gelegen op het westen en is volledig voorzien van KUNSTSTOF kozijnen!
De woning wordt verkocht bij inschrijving onder gunning met vraagprijs € 350.000,--.
RE/MAX makelaar Han van Wijk begeleidt u graag bij de bezichtiging.
De inschrijving eindigt op dinsdag 22 oktober 2024 om 17.00 uur.
Iedereen wordt op deze wijze in de gelegenheid gesteld om een bieding uit te kunnen brengen.
Beelden vertellen u meer dan tekst. Wij verwijzen u dan ook graag naar onze video, de Matterport presentatie én de interactieve video op onze site. U krijgt hierbij een video introductie, een videovlucht om én door de woning en maar liefst meer dan 75 foto’s van het object. U kunt de woning ook op een virtuele wijze bekijken. Dit kan met een VR bril, die wij bij de bezichtiging aan u zullen verstrekken, voor de ultieme beleving!
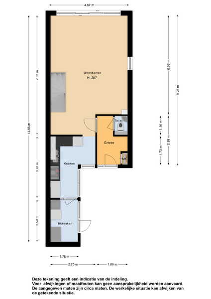
Begane grond: via de entree aan de voorzijde van de woning bereikt u de hal met garderoberuimte, meterkast, toiletruimte met hangcloset en fonteintje en de toegang naar de woonkamer.
De speels vormgegeven woonkamer is door de dubbele schuifdeuren aan de achterzijde van de woning zeer licht en zonnig. De wanden zijn keurig afgewerkt en er is strak stucwerk op het plafond aangebracht. Op de vloer zijn moderne plavuizen met comfortabele CV vloerverwarming aanwezig. Het zicht op de tuin maakt het geheel helemaal af. De kamer heeft praktische afmetingen en een handige vormgeving, waardoor u op diverse wijze uw interieur kunt inrichten.
De luxe keuken is aan de voorzijde van de woning geplaatst. De keuken in L-vorm is in een strakke stijl uitgevoerd en voorzien van een afzuigkap, inductie kookplaat, stoom/heteluchtoven en vaatwasser. Uiteraard is de keuken afgewerkt met een granieten werkblad. U heeft de beschikking over veel werk- en kastruimte. Via de keuken kunt u de achtergelegen bijkeuken bereiken.
Achter de keuken is de praktische bijkeuken gelegen. U heeft de mogelijkheid om hier uw wasmachine en wasdroger te plaatsen. Daarnaast is er nog voldoende ruimte voor een grote koel/vriescombinatie. Bovendien is deze bijkeuken in dagelijks gebruik de ingang van de woning: “Immers goed volk komt achterom”.
Tuin: precies wat u zoekt! Een heerlijke tuin met een fijne zonligging! Voor een stuk schaduwvorming is een elektrisch terrasscherm gemonteerd. De tuin op het westen is leuk aangelegd met sierbestrating, een houten vlonder, een graspartij en borders met vaste beplantingen. Het geheel ziet er zeer verzorgd uit! Achter in de tuin heeft u een extra berging tot uw beschikking. Hier kunt u prima uw fietsen, tuingereedschap of tuinmeubels een plekje geven. Tevens is er een functionele veranda geplaatst waar u prima uw lounge set kunt positioneren. Naast de woning loopt de overkapping een stukje door, zodat ook de tuinkussens een droog stallingsplekje kunnen krijgen. Via een poort aan de achterzijde kunt u de tuin eveneens bereiken. Aan de achterzijde van de woning treft u parkeergelegenheid aan.
1e verdieping: op de 1e verdieping zijn 2 zeer ruim bemeten slaapkamers aanwezig. De kamers zijn keurig verzorgd en zowel de slaapkamer aan de voor- als de achterzijde zijn voorzien van vaste kasten. U kunt in alle 3 de slaapkamers in de woning een 2-persoonsbed kwijt. Door de architectuur van de woning zijn op de 1e verdieping recht opgetrokken wanden aanwezig. Lekker ruim dus! De elektrisch bedienbare rolluiken zorgen ervoor dat u zowel in de winter als in de zomer de temperatuur in de slaapkamers kunt beheersen.
De luxe badkamer is volledig betegeld in een warme kleurstelling en voorzien van een douchegelegenheid, dubbele wastafel, hangcloset en een design-radiator.
2e verdieping: via een vaste trap bereikt u de 2e verdiepingsvloer. Naast een praktische bergkast met CV- opstelling is hier een extra en ook verwarmde slaapkamer gerealiseerd. Deze slaapkamer is voorzien van een dakkapel. Bovendien is in deze slaapkamer een elektrisch bedienbaar rolluik geïnstalleerd, maar ook als extra een airco systeem! Geen plakkerige nachten dus!
Bijzonderheden:
De woning wordt verkocht bij inschrijving onder gunning met vraagprijs € 350.000,--.
RE/MAX makelaar Han van Wijk begeleidt u graag bij de bezichtiging.
De inschrijving eindigt op dinsdag 22 oktober 2024 om 17.00 uur.
Iedereen wordt op deze wijze in de gelegenheid gesteld om een bieding uit te kunnen brengen.
Bouwjaar: 1974
Inhoud: ca. 404 m³
Woonoppervlakte: ca. 119 m²
Externe bergruimte: ca. 4 m²
Perceeloppervlakte: 157 m²