Droomkans aan doorgaand vaarwater!
Droomt u ook van een UITGEBOUWDE geschakelde 2/1 KAPWONING met GARAGE aan DOORGAAND VAARWATER? Dan is dit uw kans! In deze aantrekkelijke wijk vlakbij het centrum ligt deze leuke woning met 3 tot 4 slaapkamers en een zonnige tuin. Op loopafstand van NS station en overdekt winkelcentrum. De woning is tijdens de bouw aan de achterzijde uitgebouwd, waardoor er een woon/leefkeuken aanwezig is. Bovendien is de woning voorzien van energielabel A. Een heerlijke plek om te wonen!
Beelden vertellen u meer dan tekst. Wij verwijzen u dan ook graag naar onze video, de Matterport presentatie én de interactieve video op onze site. U krijgt hierbij een video introductie, een videovlucht om én door de woning en maar liefst meer dan 50 foto’s van het object. U kunt de woning ook op een virtuele wijze bekijken. Dit kan met een VR bril, die wij bij de bezichtiging aan u zullen verstrekken, voor de ultieme beleving!
Begane grond: via de zijentree komt u in de hal met garderobe, meterkast, volledig betegelde keurige toiletruimte met closet en fonteintje en de toegang tot de bovenliggende etages en woonkamer.
De lichte woonkamer is straatgericht en u kunt hier op diverse wijzen uw zitgedeelte inrichten. De gehele parterre is voorzien van een PVC vloer met CV-vloerverwarming en een schuurplafond. De vloer kunt u goed combineren met zowel een klassiek, modern, maar ook een koloniaal interieur. Leuk detail is de erker aan de voorzijde van de living. Het zorgt, met name aan de binnenzijde, voor een ruim gevoel. Het zitgedeelte is een heerlijke plek om een grote hoek/loungebank te plaatsen en ook voor een groot TV scherm is alle ruimte!
Aan de achterzijde treft u de uitbouw met een woon/leefkeuken. De keurige keuken is in een L- opstelling geplaatst. De keuken is uitgevoerd in een lichte kleurstelling gecombineerd met een houtkleurig werkblad. Aan inbouwapparatuur zijn een afzuigkap, 4 pits gaskookplaat, combimagnetron, vaatwasser en een koel/vriescombinatie aanwezig. Uiteraard heeft u diverse lades en kastjes tot uw beschikking. U heeft hier voldoende werkruimte tot uw beschikking.
U kunt in deze woon/leefkeuken prima een grote eettafel plaatsen. Vanaf deze eettafel heeft u fijn zicht op de achtergelegen tuin. Middels de openslaande tuindeuren kunt u deze tuin dan ook bereiken. Door de aangebouwde overkapping kunt u, tijdens de zomerse regenbuien, de deuren toch heerlijk open laten staan. Via de keuken kunt u op inpandige wijze de garage bereiken.
Garage: direct naast én achter de woning is de garage gelegen. Het betreft namelijk een L-vormige garage. Een ruimte waar u prima uw auto kunt stallen. Aan de voorzijde heeft u een elektrisch bedienbare sectionaaldeur tot uw beschikking. U heeft voldoende plek voor uw fietsen, gereedschappen en tuinmeubelen. De garage is voorzien van een plavuizenvloer. In de garage treft u een aansluiting voor uw wasmachine. Bovendien heeft u aan de achterzijde een raam tot uw beschikking, zodat hier extra daglicht aanwezig is. Handig als u ook uw klusruimte hier heeft! Verder treft u aan de achterzijde een extra loopdeur naar de tuin toe. U kunt ook, indien gewenst, een deel van de extra grote garage indelen als een soort van bijkeuken. Op het garagepad aan de voorzijde kunt u bovendien twee auto’s kwijt.
Tuin: aan de achterzijde is de goed onderhouden en zonnige tuin gelegen. De fraaie veranda met glas geeft een fijne beschutting bij regenachtige dagen. Met warme dagen kunt u de, aan de onderzijde aanwezige, zonwering uitdraaien. Met een lekkere buitentafel of loungebankjes geeft het geheel een zeer knus effect! De tuin is verder voorzien van sierbestrating, borders met vaste beplantingen, maar een stukje gras ontbreekt hier ook niet. Het is een heerlijke groene tuin. Fijn voor mensen die groene vingers hebben. Aan de achterzijde treft u nog extra een chaletberging. Hier kunt u prima uw tuingereedschap kwijt. Deze woning is fijn gelegen aan doorgaand vaarwater, waardoor u aan uw eigen steiger heerlijk een bootje kunt aanmeren. Gezellig met het hele gezin varen naar de binnenstad van Enkhuizen of het Streekbos bijvoorbeeld.
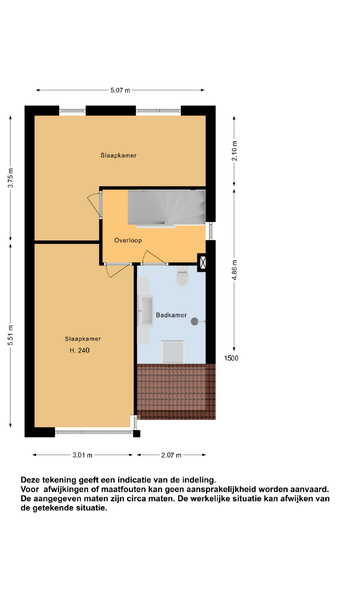
1e verdieping: op de 1e etage zijn thans twee ruime slaapkamers aanwezig. Indien gewenst kunt u hier eenvoudig weer 3 slaapkamers van maken. Met de slaapkamer op de 2e etage komt u in totaal op 3 slaapkamers. De hoofdslaapkamer is riant, voorzien van een vaste kastenwand en uitgevoerd met rolluiken, zodat u met warme dagen deze kamer toch heerlijk koel kunt houden. De slaapkamers zijn keurig afgewerkt. De slaapkamer aan de achterzijde is voorzien van screens.
Badkamer: de volledig betegelde, functionele badkamer is voorzien van een ruim wastafelmeubel met kasten, waardoor u prima al uw badkamerspullen een plekje kan geven. Verder is de badkamer voorzien van een douchegelegenheid en een 2e toilet. U heeft een ruime badkamer tot uw beschikking. U kunt hier prima ook een ligbad plaatsen. Het geheel ziet er netjes uit!
Uiteraard ontbreekt hier de design-radiator ook niet.
2e verdieping: op de ruime zolderetage treft u de HR CV combiketel en de WTW unit aan. Bovendien is deze kamer voorzien van een kunststof dakkapel met een elektrisch bedienbaar rolluik. Met de extra verkregen ruimte is hier ook een flinke 3 of 4e slaapkamer gerealiseerd. Daarnaast zijn op deze etage diverse bergruimtes aanwezig voor de opslag van spulletjes.
Bijzonderheden:
Een zeer leuke woning. Goed onderhouden en met tal van fraaie details. Voorzien van alle comfort en met een fijne tuinligging. Komt u maar kijken en overtuig u zelf!
Bouwjaar: 2000
Inhoud: ca. 515 m³
Woonoppervlakte: ca. 122 m²
Gebouwgebonden buitenruimte: ca. 12 m²
Overige inpandige ruimte: ca. 28 m²
Externe bergruimte: ca. 5 m²
Perceeloppervlakte: 240 m²