FRAAIE TUSSENWONING AAN VISWATER VOOR STARTERS!
Deze FRAAIE TUSSENWONING met BERGING aan viswater is dè ideale woning voor diegene die niet zoveel meer aan een woning willen doen en er zo in willen! De woning is voorzien van een luxe moderne keuken, moderne badkamer, enorme dakkapel op de 1e verdieping, 4 slaapkamers én voorzien van een onderhoudsvriendelijke tuin! Bovendien is deze woning voorzien van 8 zonnepanelen en energielabel A. Gelegen in een gezellig opgezette wijk, vlakbij scholen, overdekt winkelcentrum en het NS station.
De woning wordt verkocht bij inschrijving onder gunning vanaf € 365.000,--.
RE/MAX makelaar Han van Wijk begeleidt u graag bij de bezichtiging.
De inschrijving eindigt op vrijdag 12 september 2025 om 17.00 uur.
Iedereen wordt op deze wijze in de gelegenheid gesteld om een bieding uit te kunnen brengen.
Beelden vertellen u meer dan tekst. Wij verwijzen u dan ook graag naar onze video, de Matterport presentatie én de interactieve video op onze site. U krijgt hierbij een video introductie, een videovlucht om én door de woning en maar liefst meer dan 50 foto’s van het object. U kunt de woning ook op een virtuele wijze bekijken. Dit kan met een VR bril, die wij bij de bezichtiging aan u zullen verstrekken, voor de ultieme beleving!
Begane grond: de hal aan de voorzijde van de woning geeft u direct al een goede indruk. De hal is extra vergroot en voorzien van een garderoberuimte, meterkast en een moderne volledig betegelde toiletruimte met hangcloset en fonteintje. Tevens treft u hier de trapopgang naar de bovenliggende etages. Parkeerruimte voor een kinderwagen nodig? Geen probleem hier!
De fraaie afwerking van de woonkamer springt direct in het oog! De combinatie tussen strak stucwerk op de wanden gecombineerd met een PVC-vloer met CV vloerverwarming en het strak gestuukte plafond met inbouwspots maken het een zeer smaakvol geheel. Door de grote raampartij en de openslaande tuindeur heeft veel lichtinval in de woning. Via de tuindeur kunt u de achtergelegen tuin op het zuiden bereiken.
De moderne luxe keuken uit 2024, aan de voorzijde van de woning, is in een L-vorm uitgevoerd. De moderne keuken heeft een witte kleurstelling in combinatie een houtkleurig kunststof werkblad. Het geheel ziet er smaakvol uit! De straatgerichte keuken is voorzien van een afzuigkap, inductiekookplaat, combimagnetron, vaatwasser en koel/vriescombinatie. De keuken heeft voldoende bergruimte en is een heerlijke plek om te kokkerellen!
Tuin: de tuin is onderhoudsvriendelijk door de sierbestrating dat in de tuin aanwezig is. Na het werk kunt u nog heerlijk van het zonnetje genieten! Deze diepe tuin is namelijk gelegen op het Zuiden. Aan de gevel treft u dan ook, voor de warme dagen, een groot zonnescherm, maar u kunt uiteraard ook fijn verkoeling zoeken onder de overdekte veranda achter in de tuin. In de ruime veranda is voldoende plaats voor een loungebankje of een buitentafel. Heerlijk na het werk genieten van een kop koffie onder deze veranda. Aan de veranda is een bijbehorende berging ingericht. Hier kunt u prima uw tuinspullen een plaatjes geven. Achter in de tuin bevindt zich een poort naar het achtergelegen viswater. Voor de hengelaars onder ons: “een fijne steiger om uw hengeltje even uit te gooien”.
Berging: de berging is aan de voorzijde van de woning en biedt u de mogelijkheid om uw fiets een plekje te geven. De berging is voorzien van elektriciteit en een betonvloer.
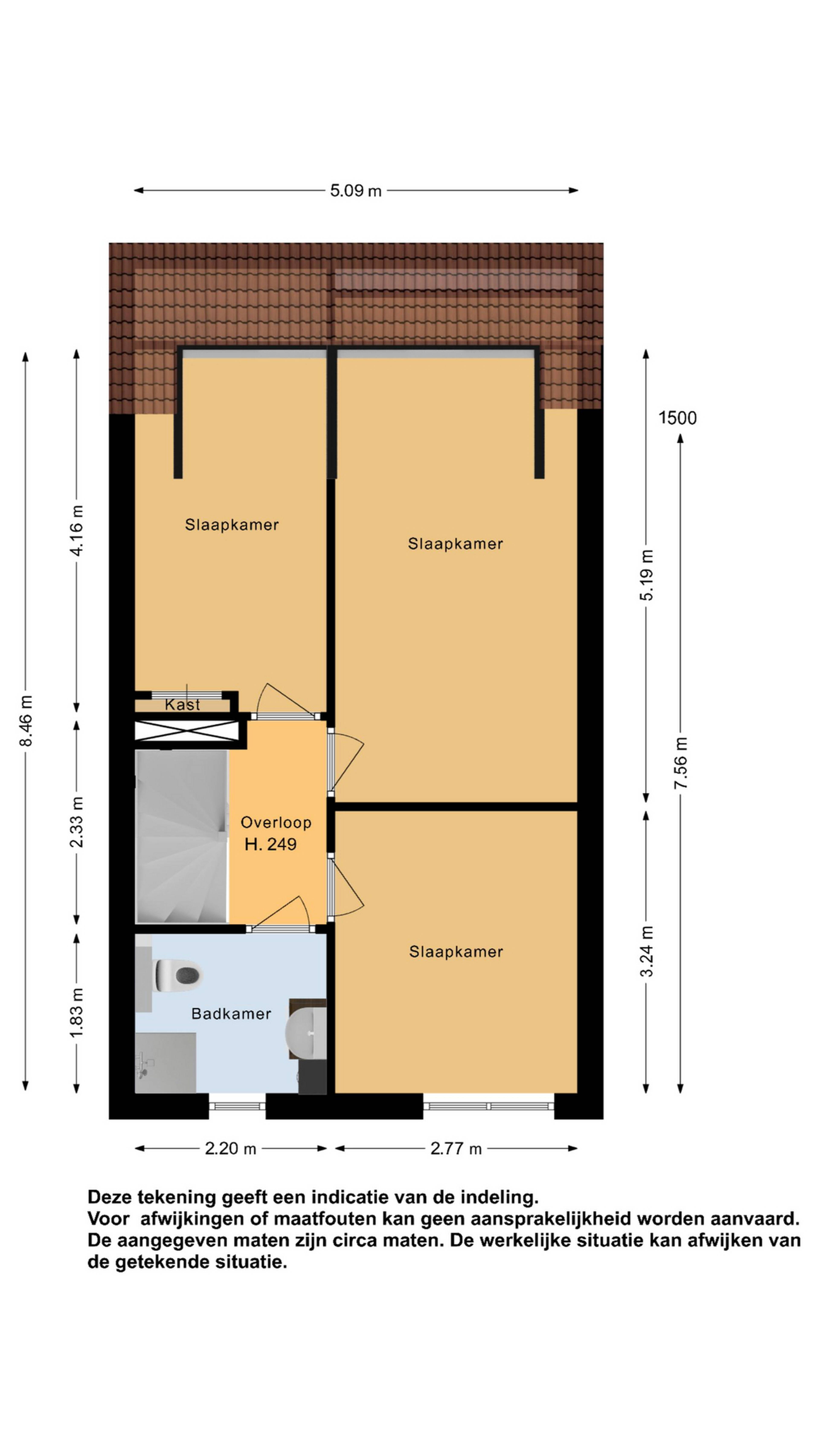
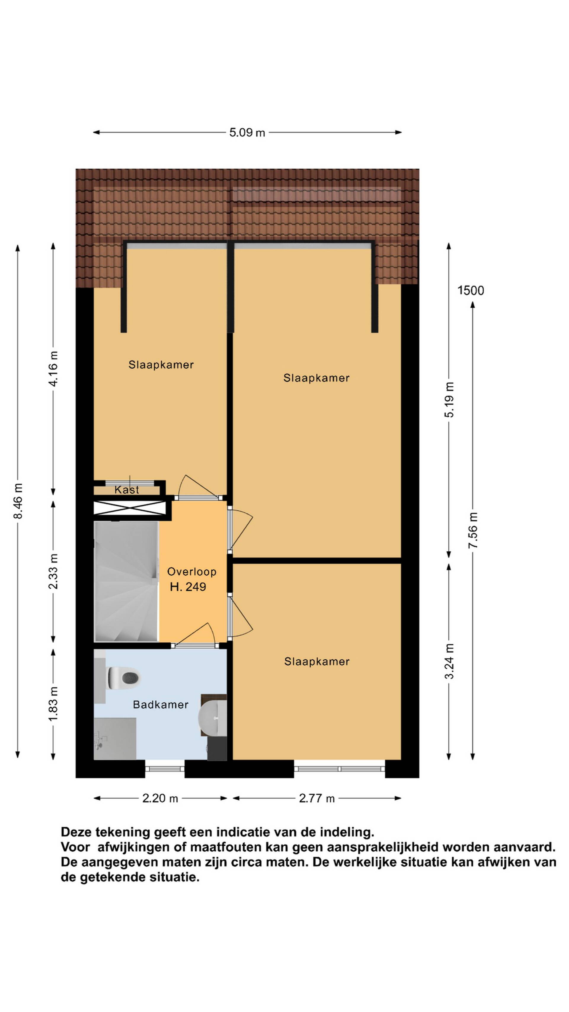
1e verdieping: via de ruime hal komt u op de overloop van de 1e etage met toegang naar de 2e verdieping. Op deze 1e verdieping zijn 3 slaapkamers van verschillende afmetingen aanwezig. De slaapkamers zijn allen uitgevoerd met strak gestuukte wanden en een laminaatvloer. Samen met de 2e verdieping heeft u 4 slaapkamers tot uw beschikking. Door de enorme dakkapel over nagenoeg de volle breedte van de woning kunt u in 3 van de 4 slaapkamers prima een tweepersoonsbed plaatsen!
U heeft de beschikking over een ruime badkamer! De moderne badkamer is volledig betegeld in een lichte kleurstelling met een houtdesign plavuizenvloer. De badkamer is uitgerust met een inloopdouche, wastafeltafelmeubel, hangcloset en uiteraard een design-radiator. Het geheel ziet er verzorgd uit.
2e verdieping: op de 2e verdieping heeft u een 4e slaapkamer tot uw beschikking. Op de overloop heeft u ruimte voor het plaatsen van een wasmachine. U treft hier tevens de CV-combiketel en de mechanische ventilatie aan. Door het grote dakvenster heeft u hier voldoende lichtinval tot uw beschikking. De ruime 4e slaapkamer is aan beide zijden voorzien van een groot dakvenster, waardoor u fijn veel lichtinval in deze kamer heeft. De gehele 2e verdieping is eveneens keurig afgewerkt met een laminaatvloer. De slaapkamer is voorzien van strak gestuukte wanden en plafond. In de slaapkamer en ook boven de slaapkamer treft u ook extra bergruimte voor het stallen van uw overtollige spulletjes aan.
Bijzonderheden:
Deze fijne tussenwoning kunt u zo betrekken. De woning is extra voorzien van zonnepanelen. Verder heeft u een lekkere diepe achtertuin gelegen aan viswater. De woning is, zoals u van ons gewend bent, uitgevoerd met een bouwkundige keuring. De overdracht van de woning dient plaats te vinden bij WFO Netwerknotarissen te Grootebroek, hier heeft de koper geen vrije keuze in. Wij leggen u vanzelfsprekend graag uit waarom dat is.
De woning wordt verkocht bij inschrijving onder gunning vanaf € 365.000,--.
RE/MAX makelaar Han van Wijk begeleidt u graag bij de bezichtiging.
De inschrijving eindigt op vrijdag 12 september 2025 om 17.00 uur.
Iedereen wordt op deze wijze in de gelegenheid gesteld om een bieding uit te kunnen brengen.
Bouwjaar: 1995
Inhoud: ca. 388 m³
Woonoppervlakte: ca. 110 m²
Externe bergruimte: ca. 7 m²
Overige inpandige ruimte: ca. 3 m²
Perceeloppervlakte: 159 m²