Een appartement op niveau!
Dit leuke HOEKAPPARTEMENT, met gezamenlijke FIETSENBERGING, BALKON op het zuiden én PARKEERPLAATS, heeft een mooie ligging en is keurig afgewerkt! Het appartement bevindt zich in een voormalig kantoorgebouw dat in 2019 getransformeerd is in een luxe appartementencomplex vlakbij de binnenstad van Hoorn! Het appartement is voorzien 1 slaapkamer, een keurige badkamer en een keurige keuken. Voor diegene die minder goed ter been zijn hebben wij positief nieuws: “het appartement is volledig gelijkvloers en er is een liftinstallatie aanwezig”.
De woning wordt verkocht bij inschrijving onder gunning met vraagprijs € 250.000,--.
RE/MAX makelaar Han van Wijk begeleidt u graag bij de bezichtiging.
De inschrijving eindigt op dinsdag 22 juli 2025 om 17.00 uur.
Beelden vertellen u meer dan tekst. Wij verwijzen u dan ook graag naar onze video, de Matterport presentatie én de interactieve video op onze site. U krijgt hierbij een video introductie, een videovlucht om én door de woning en maar liefst meer dan 75 foto’s van het object. U kunt de woning ook op een virtuele wijze bekijken. Dit kan met een VR bril, die wij bij de bezichtiging aan u zullen verstrekken, voor de ultieme beleving!
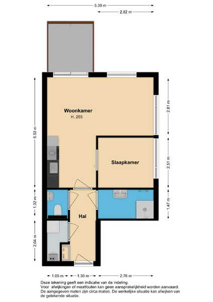
Centrale hal: via de centrale hal kunt u middels de lift uw appartement op de 1e verdieping bereiken. Hier bevinden zich ook de brievenbussen van de woningen. U heeft ook de mogelijkheid om het appartement via de zijkant te betreden. Hier kunt u dan buiten uw fiets plaatsen en de trap nemen dat toegang geeft tot uw appartement.
Woonlaag: wanneer u het appartement binnentreedt, komt u in de hal. Vanuit deze hal kunt u naast de badkamer en het toilet met hangcloset en fonteintje ook de CV ruimte met wasmachine aansluiting bereiken. Bovendien is de meterkast in de hal gesitueerd.
De volledig betegelde en ruime badkamer is in een moderne witte kleurstelling uitgevoerd. De badkamer is verder voorzien van een ruime inloopdouche, wastafel en designradiator.
In het appartement zelf is ook een berging aanwezig. Hier is de CV opstelling geplaatst en vindt u de positie van de wasmachine en wasdroger. U kunt hier ook prima nog extra spulletjes bewaren, die u direct bij de hand wenst te hebben. De gezamenlijke 2e berging bevindt zich op de begane grond.
Het appartement is voorzien van 1 slaapkamer. In deze slaapkamer kunt u een 2-persoonsbed plaatsen. De slaapkamer is keurig afgewerkt met strak gestuukte wanden en een laminaatvloer. Een kledingkast is reeds aanwezig.
Deze woonkamer geeft u een heerlijk ruimtelijk woongevoel. Door de hoekligging heeft u namelijk ook de beschikking over ramen aan de zijkant van het appartement. Hiermee heeft u dus die heerlijke extra lichtinval te pakken! De woonkamer is voorzien van glad stucwerk op de wanden en een trendy laminaatvloer.
Bovendien heeft u een balkon op het zuiden tot uw beschikking.
Via de openslaande balkondeuren heeft u direct toegang dit balkon. Heerlijk van het zonnetje genieten hier!
De keurige keuken is in een rechte opstelling geplaatst. De keuken is in een moderne stijl uitgevoerd in een lichte kleurstelling met een antraciet grijs werkblad. Aan apparatuur zijn een afzuigkap, 4 pits gaskookplaat, losse combi magnetron, losse koel/vriescombinatie en een inbouwvaatwasser aanwezig.
U heeft bij dit appartement een heerlijk balkon tot uw beschikking!
Door de zonnige ligging op het zuiden kunt u fijn van de warmte genieten. Het balkon biedt meer dan voldoende gelegenheid om hier bijvoorbeeld een tuin- of lounge set te plaatsen.
Berging: op de begane grond van het appartementencomplex is een separate gezamenlijke berging aanwezig. Deze berging is voorzien van elektra.
Bijzonderheden: een heerlijk appartement! De aanwezigheid van extra ramen en een balkon op het zuiden zijn fijne extra’s! Bovendien is het complex voorzien van een liftinstallatie.
De woning wordt verkocht bij inschrijving onder gunning met vraagprijs € 250.000,--.
RE/MAX makelaar Han van Wijk begeleidt u graag bij de bezichtiging.
De inschrijving eindigt op dinsdag 22 juli 2025 om 17.00 uur.
Bouwjaar: 217
Inhoud: ca. 154 m³
Woonoppervlakte: ca. 42 m²
Gebouwgebonden buitenruimte: ca. 6 m²