Ruime EINDWONING met GARAGE en 4 (!) woonlagen!
In het gezellige en historische stadje Medemblik hebben wij voor u een ruime eengezinswoning met GARAGE in de verkoop gekregen! Heel bijzonder is dat u maar liefst 4 woonlagen in de woning heeft! Deze fijne ruime woning heeft een ruime woonkamer met serre effect, functionele keuken, 4 slaapkamers, functionele badkamer en een flink dakterras op het zuiden! Ideaal voor een gezin! Gelegen naast de binnenstad van Medemblik met havens, winkels en gezellige restaurants.
De woning wordt verkocht bij inschrijving onder gunning vraagprijs € 325.000,--.
RE/MAX makelaar Han van Wijk begeleidt u graag bij de bezichtiging.
De inschrijving eindigt op maandag 14 oktober 2024 om 17.00 uur.
Beelden vertellen u meer dan tekst. Wij verwijzen u dan ook graag naar onze video, de Matterport presentatie én de interactieve video op onze site. U krijgt hierbij een video introductie, een videovlucht om én door de woning en maar liefst meer dan 50 foto’s van het object. U kunt de woning ook op een virtuele wijze bekijken. Dit kan met een VR bril, die wij bij de bezichtiging aan u zullen verstrekken, voor de ultieme beleving!
Begane grond: de inpandig bereikbare garage is heerlijk ruim en u kunt hier prima uw auto stallen. Naast de garage heeft u extra bergruimte om uw fietsen een plekje te geven. Vanuit de garage kunt u, met een kleine aanpassing, via de trap de woonlaag betreden. Bij regenachtig weer kunt u vanuit uw auto in de garage dan heerlijk droog op inpandige wijze de woning bereiken. Aan de voorzijde van de woning heeft u parkeergelegenheid voor uw auto.
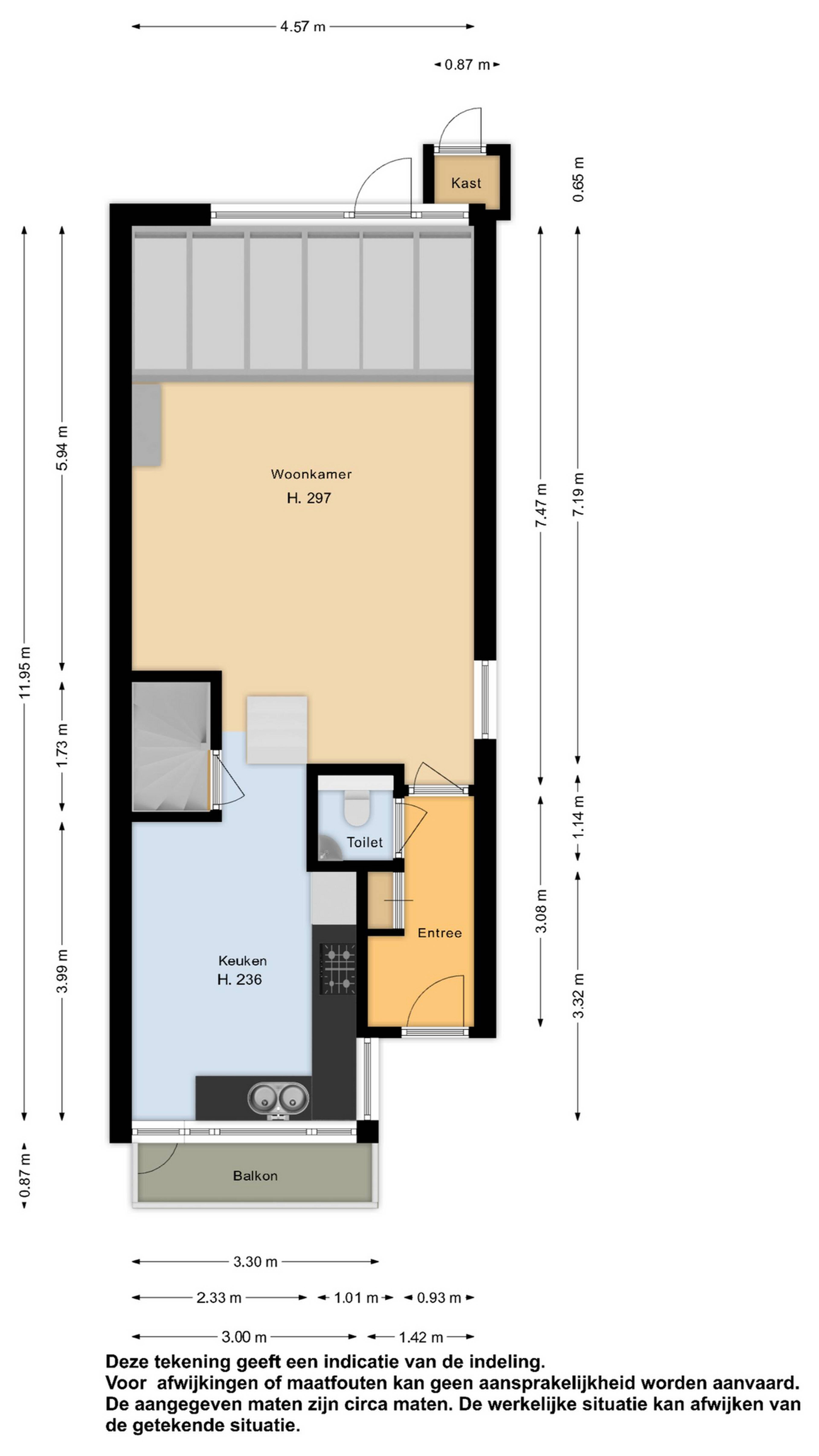
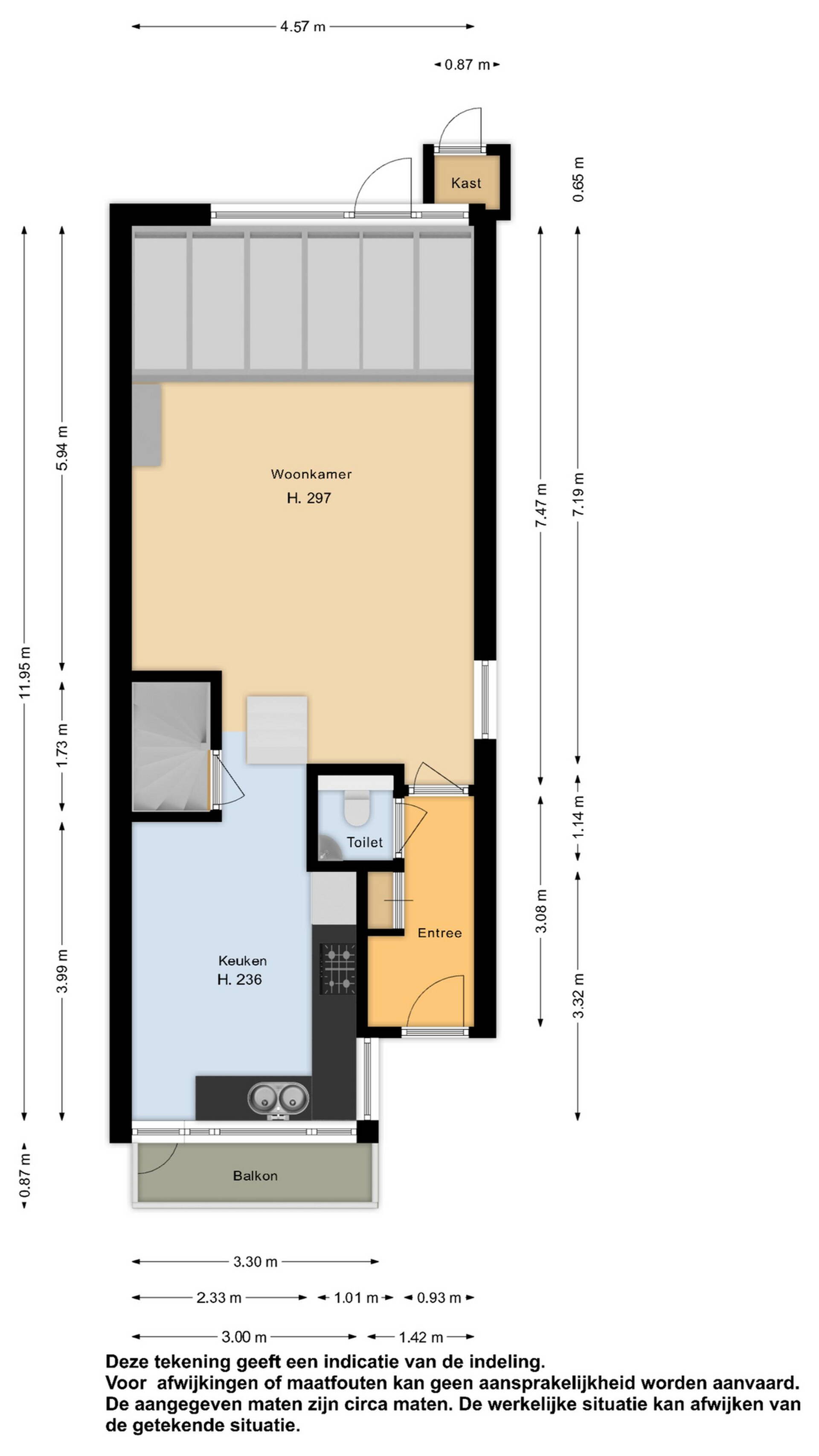
1e woonlaag: via de overdekte entree aan de voorzijde komt u middels een betonnen trap in de hal met garderobe, volledig betegelde toiletruimte met hangcloset en fonteintje en de meterkast.
De ruime woonkamer heeft een fijne kijk naar de achtergelegen tuin. Door de praktische indeling kunt u op diverse wijzen uw interieur inrichten. De woonkamer is voorzien van een serre-achtige glaspartij, waardoor u veel lichtinval in de woning heeft. Voor de koude wintermaanden heeft u een haard, dat naar een gashaard is aangepast, tot uw beschikking. Fijn om voor het vlammenspel met een glas wijn even de dag door te nemen. Via een openslaande tuindeur kunt u de achtergelegen tuin bereiken. De woonkamer is met een splitlevel trapje van de woon/leefkeuken gescheiden.
De ruime, functionele woon/leefkeuken biedt u genoeg ruimte om hier een extra eettafel te plaatsen. De keuken in L-vorm is uitgevoerd in eikenhout en voorzien van een 5-pits gaskookplaat, dubbele spoelbak, elektrische oven en een koel/vriescombinatie. Een heerlijke plek om te kokkerellen, terwijl u contact met uw dinergasten aan de extra eettafel kunt houden. Vanuit de keuken heeft u via een openslaande tuindeur toegang tot het balkon aan de voorzijde. U kunt deze ruimte ook betrekken bij de keuken, waardoor een ruime woon/leefkeuken ontstaat. Vele buurtgenoten hebben deze wijziging inmiddels doorgevoerd. Komt u maar kijken naar de resultaten. Vanuit de keuken kunt u middels een tussenhal de bovenliggende etage bereiken.
Via de openslaande tuindeur kunt u de achtergelegen tuin bereiken. Middels een trapje komt u in de onderhoudsvriendelijke tuin dat volledig voorzien is van de sierbestrating. De ligging van de tuin is op het zuiden, maar de westenzon komt ook om de hoek kijken. In de tuin heeft u een extra opbergkast voor wat tuingereedschap.
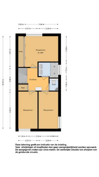
2e woonlaag: op de 2e etage treft u naast de ruime overloop een fijne inbouwkast aan voor het bergen van extra spullen. U heeft een separate toiletruimte op de overloop tot uw beschikking. Deze toiletruimte is voorzien van een hangcloset met een fonteintje. Op deze verdieping zijn een 3-tal slaapkamers van diverse afmetingen gesitueerd. Door de recht opgetrokken wanden heeft u veel ruimte tot uw beschikking.
De functionele badkamer in lichte kleurstelling is volledig betegeld en uitgerust met een inloopdouche met dubbele douche, dubbele wastafel en een designradiator.
3e woonlaag: op de 3e verdieping komt u via een vaste trap op de overloop met toegang naar een flinke bergruimte. In deze ruimte treft u de CV-combiketel aan. Hier kunt u ook uw wasmachine een plaatsje geven. Bovendien heeft u op deze verdieping een ruime 4e slaapkamer met toegang via een schuifpui naar een zeer riant dakterras op het zuiden. De slaapkamer kunt u prima als ouderslaapkamer inrichten. Vanuit deze kamer heeft u fraai uitzicht aan de achterzijde. Bovendien heeft u door de vrije ligging veel privacy tot uw beschikking.
Het dakterras heeft een fijne zuiden zonligging en u heeft vanaf het terras zicht op openbaar groen en de achtergelegen singel. De westenzon pakt u hier ook fijn mee, zodat u ’s avonds na het werk nog heerlijk van de zon kunt genieten.
Bijzonderheden: een woning met veel inhoud door de diverse woonlagen! Gelegen naast het gezellige centrum van Medemblik, dus op loopafstand van de diverse winkels, restaurants en terrasjes. De woning is voorzien van een bouwkundige keuring, dat wij bij een bezichtiging aan u zullen verstrekken.
De woning wordt verkocht bij inschrijving onder gunning vraagprijs € 325.000,--.
RE/MAX makelaar Han van Wijk begeleidt u graag bij de bezichtiging.
De inschrijving eindigt op maandag 14 oktober 2024 om 17.00 uur.
Bouwjaar: 1978
Inhoud: ca. 513 m³
Woonoppervlakte: ca. 124 m²
Overige inpandige ruimte: ca. 24 m²
Gebouwgebonden buitenruimte: ca. 18 m²
Perceeloppervlakte: 106 m²