RUIME UITGEBOUWDE 2/1 KAPWONING IN EEN PITTORESK DORP!
Deze uitgebouwde 2/1 KAPWONING met BERGING en BIJKEUKEN zal u qua ruimte zeker verrassen! Deze zeer ruime woning is werkelijk keurig bewoond en fraai afgewerkt! De locatie is bovendien zeer geliefd! U heeft naast een ruime badkamer, 4 tot 5 slaapkamers, een luxe keuken en een ruime living tot uw beschikking! Op deze rustige locatie met de tuin op het zuiden kunt u heerlijk en maximaal van de zon genieten. De veranda achter in de tuin biedt u een relaxed uitzicht op de fraai aangelegde tuin! Bovendien is de woning uit gevoerd met zonnepanelen!
De woning wordt verkocht bij inschrijving onder gunning met vraagprijs € 499.000,--.
RE/MAX makelaar Han van Wijk begeleidt u graag bij de bezichtiging.
De inschrijving eindigt op dinsdag 9 december 2025 om 17.00 uur.
Beelden vertellen u meer dan tekst. Wij verwijzen u dan ook graag naar onze video, de Matterport presentatie én de interactieve video op onze site. U krijgt hierbij een video introductie, een videovlucht om én door de woning en maar liefst meer dan 75 foto’s van het object. U kunt de woning ook op een virtuele wijze bekijken. Dit kan met een VR bril, die wij bij de bezichtiging aan u zullen verstrekken, voor de ultieme beleving!
Begane grond: via de overkapping komt u aan de zijkant van de woning in de hal met meterkast, garderoberuimte en moderne toiletruimte met hangcloset en fonteintje.
De woonkamer is door de vormgeving heerlijk praktisch. Op de gehele parterre is een laminaatvloer gelegd. Aan de voorzijde heeft u door de erker een ruime living, waar u prima een grote loungebank kunt plaatsen. Aan de achterzijde van de woning is een heerlijke woon/leefkeuken aanwezig. Vanaf uw eetkamertafel heeft fijn zicht op de fraai aangelegde tuin. Middels de openslaande tuindeuren kunt u deze mooie tuin bereiken. De wanden zijn keurig afgewerkt en het plafond is strak gestuukt en afgewerkt met plafondlijsten.
De fraaie luxe keuken is in een L-vorm geplaatst. De keuken is in een in een antraciet kleurstelling uitgevoerd en afgewerkt met een granieten werkblad. Aan inbouwapparatuur zijn naast de koelkast, een combimagnetron, 5 pits gaskookplaat, afzuigschouw, en een vaatwasser aanwezig. De brede lades zorgen voor veel opbergruimte. Het is een heerlijke plek om uw kookkunsten te etaleren. Via de keuken kunt u de ruime bijkeuken bereiken.
Bijkeuken: de bijkeuken is naast extra opbergruimte ook voorzien van een afzuigkap. Dat is handig als u voor oud en nieuw oliebollen wilt bakken. Bovendien treft u in deze bijkeuken de wasmachine en drogeropstelling aan. U kunt hier ook een extra koelkast en/of diepvries plaatsen. Door de aanwezigheid van werkbladen heeft u extra werkruimte tot uw beschikking. Via de bijkeuken kunt u via een openslaande tuindeur ook de tuin bereiken. De bijkeuken wordt fijn verwarmd door een design-radiator.
Berging: de inpandig bereikbare berging is voorzien van vaste kasten en biedt u ruimte voor de stalling van (motor-) fietsen. Deze berging wordt door de huidige bewoners als entree gebruikt. Hier kunt u dan ook prima uw jassen en/of schoenen een plekje geven. Op de ruime oprit met carport kunt u meerdere voertuigen parkeren.
Tuin: een sierlijke, brede tuin met een zalige zuiden zonligging. Dit betekent dat u de gehele dag de zon in de tuin heeft staan! Door de verschillende terrassen in de tuin kunt u ook optimaal genieten van deze fraai aangelegde tuin. De tuin heeft diverse borders met een diversiteit aan beplantingen. Dit geldt uiteraard ook voor de vrijstaande veranda achter in de tuin. Een heerlijke loungeplek! U heeft hier eveneens opbergruimte voor uw tuinmeubelen. Voor enige schaduw is ook gezorgd. Aan de achterzijde van de woning bevindt zich heerlijk een zonnescherm.
1e verdieping: op de 1e verdieping zijn naast de ruime overloop een 2-tal slaapkamers van verschillende afmetingen gesitueerd. Door de recht opgetrokken wanden heeft u hier veel ruimte tot uw beschikking. Het geheel ziet er zeer verzorgd uit! Een van de slaapkamers is fijn uitgevoerd met een inloopkast, waar u vanzelfsprekend genoeg ruimte heeft om uw kleding een plekje te geven. Indien gewenst kunt u op deze etage weer de oorspronkelijke 3 slaapkamerts terugbrengen. Dan heeft u er in totaal 5 slaapkamers te pakken! Tezamen met de slaapkamers op de 2e etage kunt u thans in 3 slaapkamers een 2 persoons bed kwijt.
De luxe badkamer is volledig betegeld in een warme kleurstelling gecombineerd met een antraciet grijze vloer. In de badkamer vindt u een wastafelmeubel met dubbele spoelbak, hangcloset en een ruime douchegelegenheid met stortdouche en handdouche aan. In de handige kast kunt u prima uw handdoeken een plaatsje geven of uw toiletartikelen opbergen. Uiteraard is de badkamer voorzien van een design-radiator.
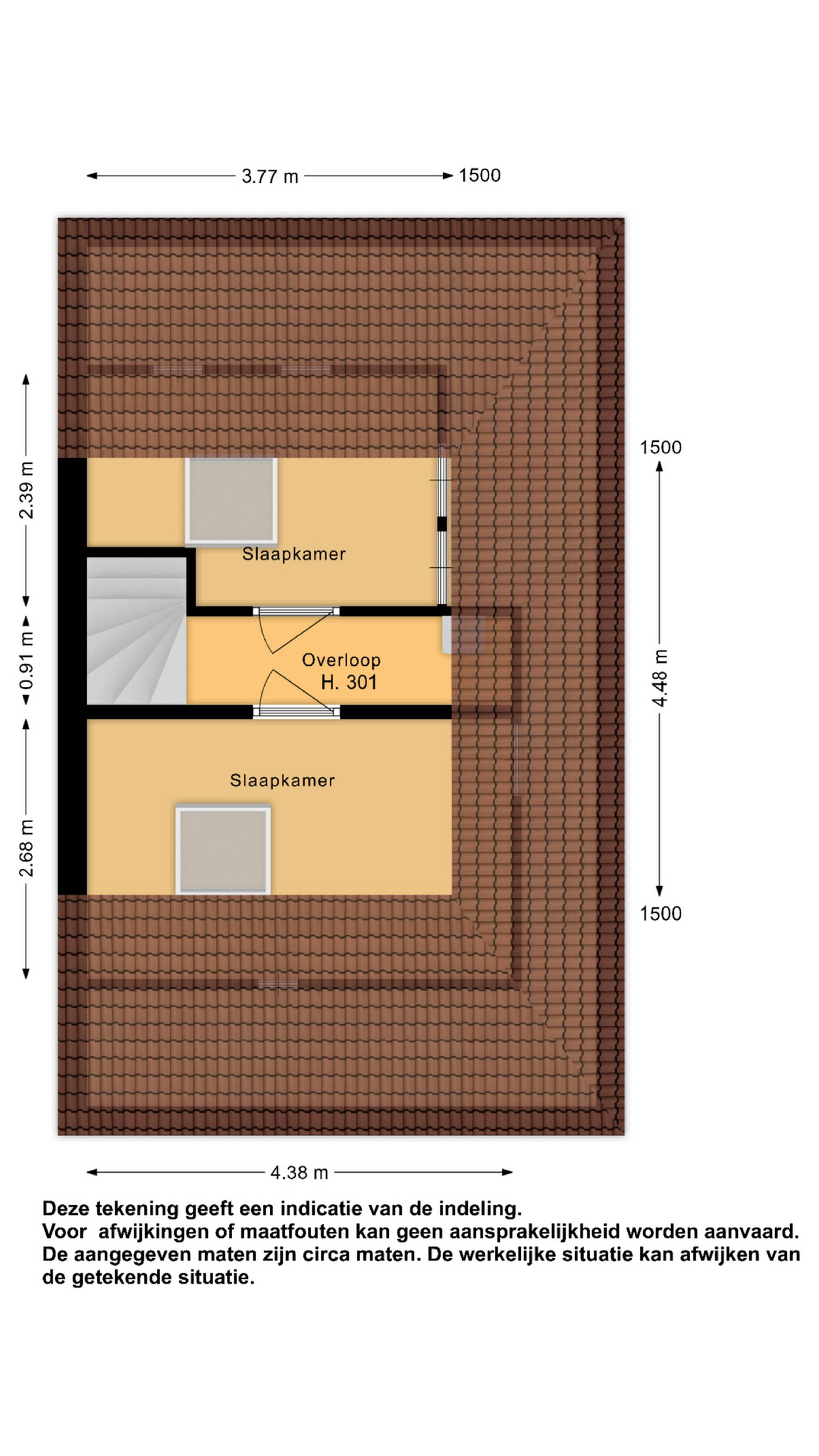
2e verdieping: de 2e verdieping is met een vaste trap bereikbaar en hier zijn 2 extra slaapkamers gesitueerd. Beide slaapkamers zijn voorzien van een dakraam. De opstelling van de HR CV Combiketel treft u in de CV-ruimte. Deze verdiepingsvloer is afgewerkt met laminaatvloer. Achter de knieschotten heeft u extra opbergruimte.
Bijzonderheden:
De woning wordt verkocht bij inschrijving onder gunning met vraagprijs € 499.000,--.
RE/MAX makelaar Han van Wijk begeleidt u graag bij de bezichtiging.
De inschrijving eindigt op dinsdag 9 december 2025 om 17.00 uur.
Bouwjaar: 1995
Inhoud: ca. 522 m³
Woonoppervlakte: ca. 140 m²
Overige inpandige bergruimte: ca. 9 m²
Gebouwgebonden buitenruimte: ca. 19 m²
Perceeloppervlakte: 293 m²