Algemeen
Omschrijving
*****Für den deutschen Text siehe unten***** *****Für den deutschen Text siehe unten*****
***KOM EN KIJK***
U bent van harte welkom tijdens het Kom en Kijk moment op zaterdag 20 September tussen 15:00 en 16:00 uur, u kunt dan de bungalow vrijblijvend zonder afspraak komen bezichtigen.
RE/MAX makelaar Wesley Boode begeleidt u graag bij een bezichtiging.
Royale uitgebouwde bungalow met een groot aan het water gelegen perceel op vakantiepark "Het Grootslag" in Andijk te koop!. Deze stenen bungalow is in 2015 uitgebouwd met maar liefst 16m², hierdoor behoord het tot een van de grotere bungalows van het hele park. De ligging is ook ideaal met ruime parkeergelegenheid voor de deur en dicht bij de toegang tot het park, maar wel voorzien van een tuin met volledige privacy zodat u in alle rust na een drukke werkweek kunt genieten in uw grote tuin of op het terras,
Of u zich nu in de weekenden voor een korte energie boost van het toch al gehaaste leven wilt terug trekken of juist de hele zomer hier wilt verblijven, u zal zich hier niet snel vervelen. Om maar eens wat op te noemen bezigheden die u zou kunnen gaan ontdekken hier: Tuinieren, zonnen, zwemmen in het overdekte binnenzwembad of lekker in het Ijsselmeer. Hier kunt u uiteraard ook voor alle watersporten terecht zoals zeilen, surfen en misschien wilt u wel een (zeil)bootje in de jachthaven stallen, het kan hier allemaal.
Ook als u of uw kinderen van dieren houden is het hier ideaal vertoeven met een kinderboerderij, de schaapjes op de dijk, de ponyranch op het park of de manege verderop in de straat. Bovendien bevindt het recreatie en natuurgebied De Vooroever met stranden en vele wandelgebieden zich op loopafstand, dus ook voor wandelen fietsen of natuurliefhebbers is dit de ultieme spot.
De schitterende omgeving van Andijk in West Friesland, met zijn eigen haven en rijke historie, ligt dicht bij de haven steden Medemblik, Hoorn en Enkhuizen. Hier kunt u genieten van rust, ruimte en vrijheid of juist lekker winkelen en shoppen.
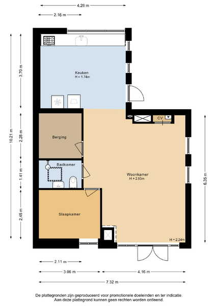
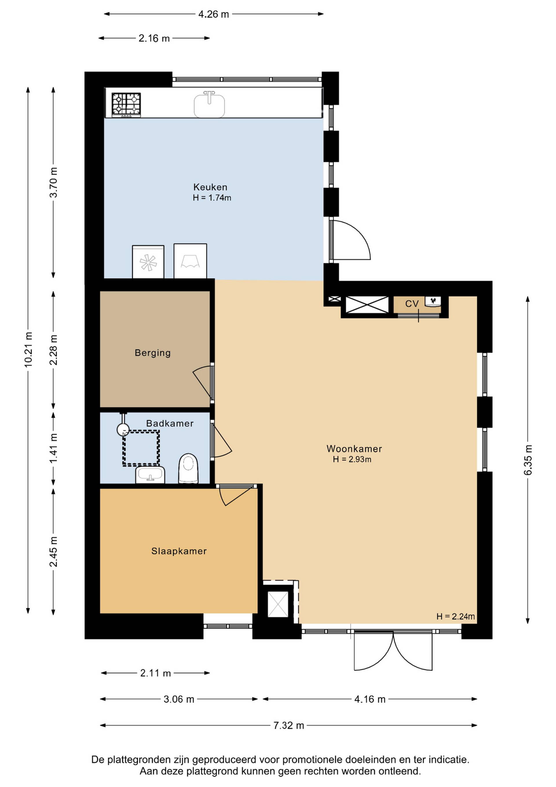
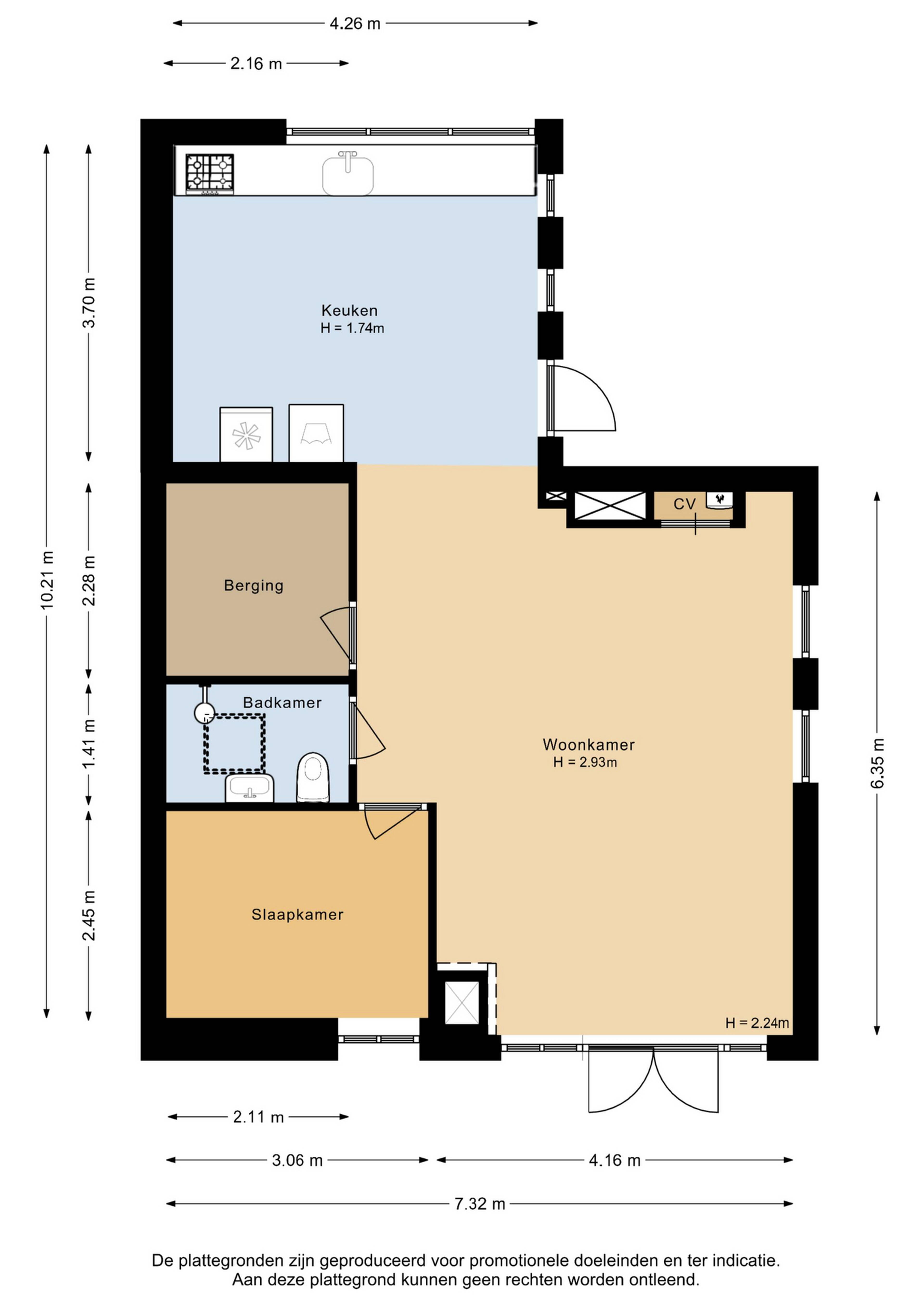
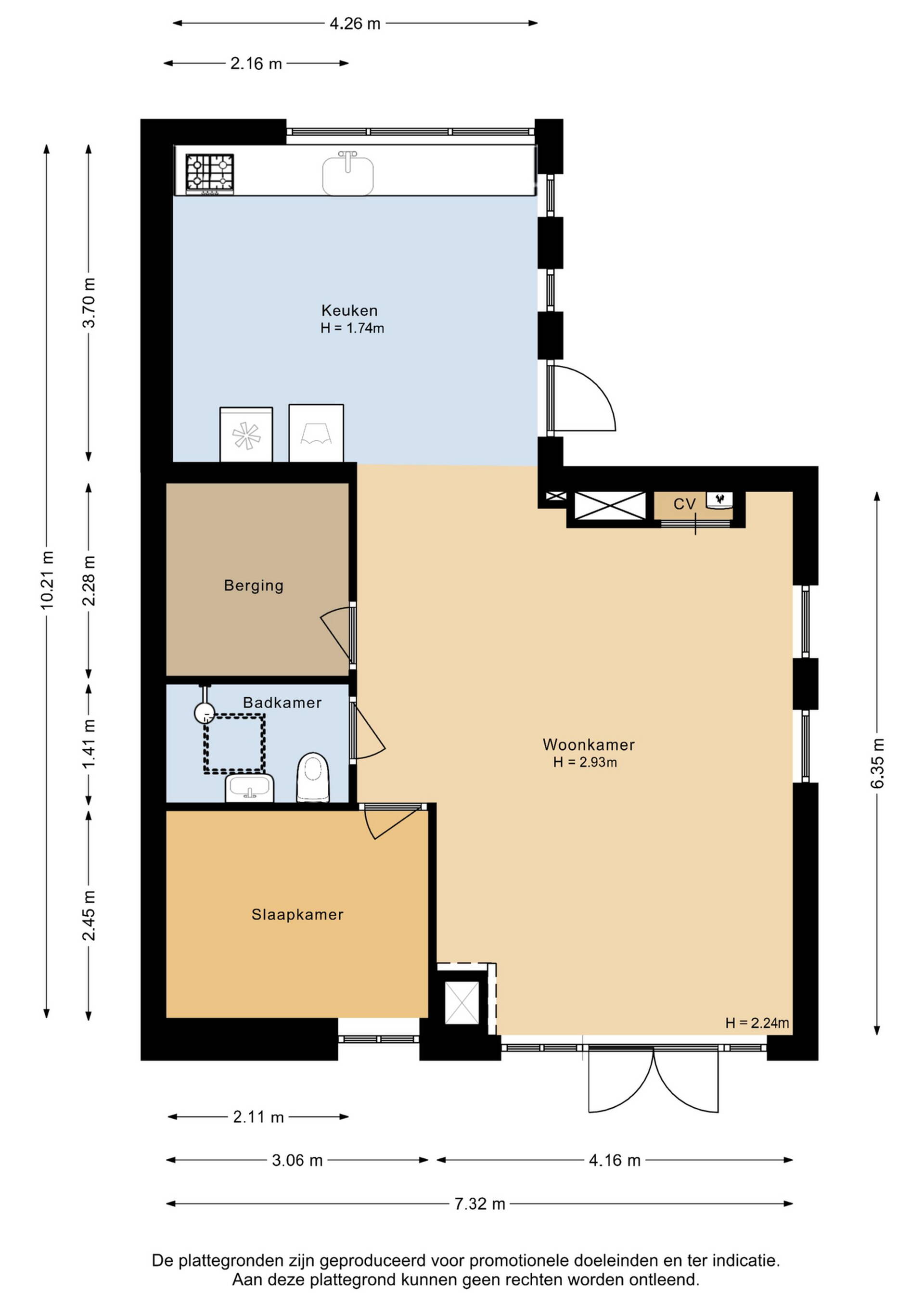
De uitgebouwde bungalow met nummer 369 is goed geïsoleerd te noemen en voorzien van dubbel glas, zonnepanelen, geïsoleerde muren en plafonds, vandaar ook het voortreffelijke energielabel B!
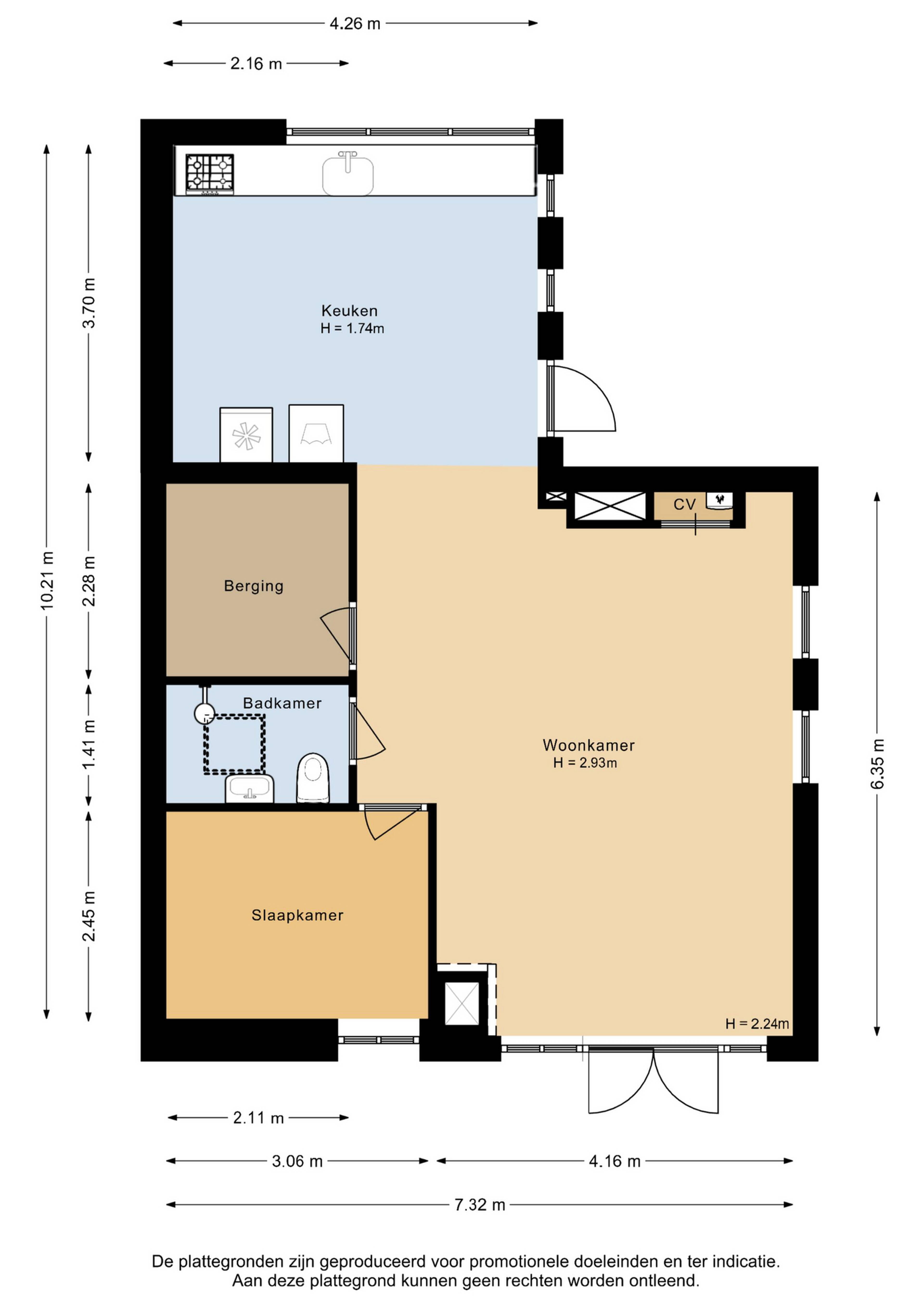
De bungalow heeft een grote woonkamer en 2 slaapkamers, die voorzien zijn van laminaat op de vloer en zijn geschilderd in vrolijke warme mediterraanse kleuren. De grote keuken is voorzien van inbouw apparatuur van kwalitatief hoogwaardige merken en een natuurstenen werkblad van ruim 4 meter.
Een open haard/allesbrander zorgt bij de wat guurdere Nederlandse voorzomer dagen voor voldoende warmte of u kunt juist gezellig genieten bij de openhaard tijdens de nazomer met een lekker glas wijn.
De badkamer is recentelijk voorzien van een nieuwe thermostaatkraan en douchekop van het top merk Grohe en gaat nog vele jaren mee. De badkamer is tevens voorzien van een toilet, een wastafelmeubel met grote spiegel en vloertegels met een Portugees motief.
Er valt ook veel licht in de bungalow door de openslaande deuren die toegang bieden naar het overdekte zonneterras, waar u met een heerlijk kopje koffie s 'morgens in alle rust de krant kunt lezen of genieten van uw tuin met vele klimplanten aan de omheining die voor de nodige privacy zorgen.
Vele fruit struiken en klimplanten zoals 2 soorten zoete druiven, Hollandse zoete kiwi 2x, zwarte en 4x rode bessen, vele geraniums, stokrozen, rozen voor en achter, cranberry struiken 2x, Indische kers maken de tuin helemaal af.
De bungalow wordt verwarmd en voorzien van warm water door een in 2018 geplaatste zuinige Remeha Tzerra Ace 28c CV-combiketel en de elektrische installatie heeft voldoende groepen om al uw apparatuur goed te laten functioneren en daar helpen de 9 zonnepanelen met 300 Wp vermogen die in 2021 en 2022 geplaatst zijn zeker aan mee. De huidige bewoner betaald momenteel nog maar ongeveer €50,- per maand aan gas en licht.
Op het park zijn uitgebreide voorzieningen, zoals een overdekt zwembad, 2 tennisbanen, bowlingbanen, diverse visstekken, pony ranch, midgetgolf en fiets- en skelterverhuur (tegen betaling) aanwezig.
Voor deze faciliteiten en andere diensten, zoals de groen voorziening, parkonderhoud en vuilafvoer, betaalt u een bijdrage van ongeveer €861,43 per kwartaal.
Het park is tevens voorzien van maar liefst 3 horeca gelegenheden om lekker te kunnen eten, van lekker makkelijk in het pannenkoeken restaurant of friettent tot culinaire smakelijkheden in het a la carte restaurant.
Ook is er een park supermarkt aanwezig waar u uw dagelijkse boodschappen of heerlijke broodjes voor het ontbijt kunt halen.
De bungalow staat op erfpachtgrond welke momenteel tot 2026 is uitgegeven, maar in de afgelopen ledenvergadering van 16 November 2024 is het voorstel om de erfpachtsituatie met 50 jaar te verlengen door een ruime meerderheid van de leden aangenomen en zal nog verder worden uitgewerkt.
Ook is hierbij gesproken over om het in de toekomst mogelijk te maken om de nu nog in erfpacht zijnde grond in eigendom te verkrijgen.
Deze bungalow is niet alleen een heerlijke plek om zelf van te genieten, maar biedt ook uitstekende verhuurmogelijkheden via de verhuurorganisatie van Het Grootslag.
De bungalow wordt aangeboden inclusief meubilair en de (grotendeels) inventaris, een kwestie van zwembroek in de kast leggen en u bent klaar voor het nieuwe seizoen.
Lijkt het u wat als vakantiewoning, verhuurobject of investering, maak dan snel een afspraak voor een bezichtiging en laat deze kans niet aan u voorbij gaan.
RE/MAX makelaar Wesley Boode begeleidt u graag bij een bezichtiging.
De woning wordt verkocht onder gunning met een bieden vanaf prijs van € 115.000,-.
Beelden vertellen u meer dan tekst. Wij verwijzen u dan ook graag naar onze foto, video en 360° graden presentatie op onze site.
U krijgt hierbij een video introductie, een videovlucht om én door de woning en maar liefst meer dan 35 foto’s van het object.
Bouwjaar: 1981
Woonoppervlakte: ca. 62 m²
Externe berging ca. 9m²
Inhoud: ca. 232 m³
Perceeloppervlakte: 275 m²
Energielabel B
*****Deutschen Text*****
Geräumiger ausgebauter Bungalow mit großem Grundstück am Wasser im Ferienpark "Het
Grootslag" in Andijk zu verkaufen! Dieser Steinbungalow wurde 2015 um ganze 16m² erweitert
und gehört damit zu den größeren Bungalows im gesamten Park. Die Lage ist ideal mit ausreichend Parkplätzen vor der Tür und nahe am Parkeingang, aber dennoch mit einem nahezu uneinsehbaren Garten, sodass Sie sich nach einer stressigen Arbeitswoche in Ihrem großen Garten oder auf der Terrasse in aller Ruhe erholen können.
Ob Sie sich nun an den Wochenenden für einen kurzen Energieschub vom hektischen Leben zurückziehen oder den ganzen Sommer hier verbringen möchten, langweilig wird es Ihnen hier nicht. Um nur einige Aktivitäten zu nennen, die Sie hier entdecken können: Gärtnern, Sonnenbaden, Schwimmen im überdachten Hallenbad oder im Ijsselmeer. Hier können Sie sich natürlich auch an allen Wassersportarten beteiligen, wie Segeln, Surfen, oder vielleicht möchten Sie sogar ein (Segel-)Boot im Yachthafen unterstellen - hier ist alles möglich. Auch wenn Sie oder Ihre Kinder Tiere lieben ist dies mit einem Streichelzoo, Schafen auf dem Deich, einer Ponyranch im Park oder der Reitschule am Ende der Strasse ein idealer Aufenthaltsort. Darüber hinaus be?ndet sich das Erholungs- und Naturschutzgebiet De Vooroever mit Stränden und vielen Wanderwegen in Laufnähe, also ist dies auch für Wanderer, Radfahrer oder Naturliebhaber der
ultimative Ort.
Die wunderschöne Umgebung von Andijk in Westfriesland mit eigenem Hafen und reicher Geschichte liegt in der Nähe der Hafenstädte Medemblik, Hoorn und Enkhuizen. Hier können Sie Ruhe, Raum und Freiheit genießen oder shoppen Gehen.
Der ausgebaute Bungalow mit der Nummer 369 ist gut isoliert und verfügt über Doppelverglasung, Photovoltaikanlage mit Sonnenkollektoren, isolierte Wände und Decken, daher auch das hervorragende Energielabel B!
Der Bungalow hat ein großes Wohnzimmer und 2 Schlafzimmer, die mit Laminatboeden ausgestattet und in fröhlichen, warmen mediterranen Farben gestrichen sind. Die große Küche ist mit Einbaugeräten hochwertiger Marken und einer über 4 Meter langen Naturstein-Arbeitsplatte ausgestattet. Ein o?ener Kamin/Allesbrenner sorgt an den kühleren niederländischen Fruehsommertagen für ausreichend Wärme oder Sie können im Spätsommer gemütlich am o?enen Kamin mit einem guten Glas Wein entspannen.
Das Badezimmer wurde kürzlich mit einer neuen Thermostatarmatur und einem Duschkopf der Spitzenmarke Grohe ausgestattet und wird noch viele Jahre funktionieren. Das Badezimmer verfügt außerdem über eine Toilette, ein Waschbecken mit großem Spiegel und Boden?iesen mit portugiesischem Muster.
Viel Licht fällt auch durch die Terrassentüren in den Bungalow, die Zugang zur überdachten Sonnenterrasse bieten, wo Sie morgens in aller Ruhe bei einer köstlichen Tasse Ka?ee die Zeitung lesen oder Ihren Garten mit den vielen Kletterp?anzen an der Umzäunung genießen können, die für die nötige Privatsphäre sorgen.
Viele Obststraeucher und Kletterp?anzen wie 2 Sorten süße Weintrauben, 2x holländische süße Kiwi, schwarze und 4x rote Johannisbeeren, viele Geranien, Stockrosen, Rosen vorne und hinten, 2x Cranberry-Sträucher, Kapuzinerkresse runden den Garten ab.
Der Bungalow wird beheizt und mit Warmwasser versorgt durch einen 2018 installierten sparsamen Remeha Tzerra Ace 28c Kombi-Heizkessel, und die elektrische Installation hat genügend Gruppen, um all Ihre Geräte gut funktionieren zu lassen, wobei die 9 Sonnenkollektoren mit 300 Wp Leistung, die 2021 und 2022 installiert wurden, sicherlich helfen.
Der derzeitige Bewohner zahlt momentan nur noch etwa 50,- € pro Monat für Gas und Strom. Der Park verfügt über umfangreiche Einrichtungen wie ein Hallenbad, 2 Tennisplätze, Bowlingbahnen, verschiedene Angelplätze, eine Ponyranch, Minigolf und Fahrrad- und Gokartverleih (gegen Gebühr). Für diese Einrichtungen und andere Dienstleistungen wie Grünp?ege, Parkunterhalt und Müllabfuhr zahlen Sie einen Beitrag von etwa 861,43 € pro Quartal.
Der Park verfügt auch über 3 Gastronomiebetriebe, in denen Sie gut essen können, von einfach im pfannkuchenrestaurant oder Imbiss bis hin zu kulinarischen Köstlichkeiten im À-la-carte-Restaurant.
Es gibt auch einen Parksupermarkt, in dem Sie Ihre täglichen Einkäufe erledigen oder leckere Brötchen zum Frühstück holen können.
Der Bungalow steht auf Erbpachtgrund, der derzeit bis 2026 ausgegeben ist, aber in der letzten Mitgliederversammlung am 16. November 2024 wurde der Vorschlag, die Erbpachtsituation um 50 Jahre zu verlängern, von einer großen Mehrheit der Mitglieder angenommen und wird noch weiter ausgearbeitet. Dabei wurde auch darüber gesprochen, in Zukunft die Möglichkeit zu scha?en, das derzeit noch in Erbpacht be?ndliche Grundstück als Eigentum zu erwerben.
Dieser Bungalow ist nicht nur ein herrlicher Ort zum Selbstgenießen, sondern bietet auch ausgezeichnete Vermietungsmöglichkeiten über die Vermietungsorganisation von Het Grootslag.
Der Bungalow wird inklusive Möbel und (größtenteils) Inventar angeboten. Es ist also nur eine Frage um die Badehose in den Schrank zu legen und Sie sind bereit für die neue Saison.
Wenn Sie dies als Ferienhaus, Mietobjekt oder Investition interessiert, vereinbaren Sie schnell einen Besichtigungstermin und lassen Sie sich diese Chance nicht entgehen.
*** KOMMEN UND SEHEN ***
Sie sind herzlich willkommen zum Besichtigungstermin am Samtag, den 20. September, zwischen 15:00 und 16:00 Uhr. Anschließend können Sie den Bungalow unverbindlich und ohne Terminvereinbarung besichtigen.
RE/MAX Makler Wesley Boode begleitet Sie gerne bei einer Besichtigung.
Das Haus wird unter Vertrag mit einem Startpreis von 115.000 € verkauft.
Bilder sagen mehr als Worte. Wir verweisen Sie daher gerne auf unsere Foto-, Video- und 360-Grad-Präsentation auf unserer Website. Sie erhalten hier eine Video-Einführung, einen Video?ug um und durch die Wohnung und sogar
mehr als 35 Fotos des Objekts.
Baujahr: 1981
Wohn?äche: ca. 62 m²
Externe Lagerung ca. 9m²
Inhalt: ca. 232 m³
Grundstücks?äche: 275 m²
Energielabel B
Kenmerken
Adres
1619 EH ANDIJK
Prijs
Details
Indeling
Tuin
Garage
Bergruimte
Energielabel
Uw makelaar
Wesley Boode
Geïnteresseerd in deze woning? Vul dit formulier in voor een bezichtiging van deze woning of voor meer informatie. Dan nemen wij zo snel mogelijk contact met u op.
















