EXTRA UITGEBOUWDE TUSSENWONING MET GARAGE!
Deze EXTRA UITGEBOUWDE TUSSENWONING met GARAGE is gelegen op een aantrekkelijke stek in deze ruim opgezette wijk. Deze woning is op de begane grond uitgebouwd met een erker aan de voorzijde en een ruime aanbouw aan de achterzijde, waardoor u veel leefruimte op de begane grond heeft! De woning is voorzien van een functionele keuken, keurige en ruime badkamer en 4 slaapkamers. Een zeer aantrekkelijke gezinswoning met veel leefruimte! Bovendien deels voorzien van kunststof kozijnen! De woning is in de nabijheid gelegen van winkelcentrum, scholen, NS station, park en sportfaciliteiten.
De woning wordt verkocht bij inschrijving onder gunning vanaf € 290.000,--.
U kunt zich daarvoor AANMELDEN via ons kantoortelefoonnummer.
RE/MAX makelaar Han van Wijk begeleidt u graag bij de bezichtiging.
In verband met het Corona virus (voor uw en onze veiligheid) doen wij geen bezichtigingen zonder afspraak en volgens de RIVM richtlijnen.
De inschrijving eindigt op woensdag 1 december 2021 om 17.00 uur.
Iedereen wordt op deze wijze in de gelegenheid gesteld om een bieding uit te kunnen brengen.
De speciale inschrijfformulieren worden u tijdens een vrijblijvende bezichtiging uitgereikt.
Wij leiden u graag rond in deze keurige woning.
Beelden vertellen u meer dan tekst. Wij verwijzen u dan ook graag naar onze video én Matterport presentatie ( interactieve video) op deze site. U krijgt hierbij een video introductie, een videovlucht om én door de woning en maar liefst meer dan 75 foto’s van het object. U kunt de woning ook op een virtuele wijze bekijken. Dit kan ook met een VR bril voor de ultieme beleving!
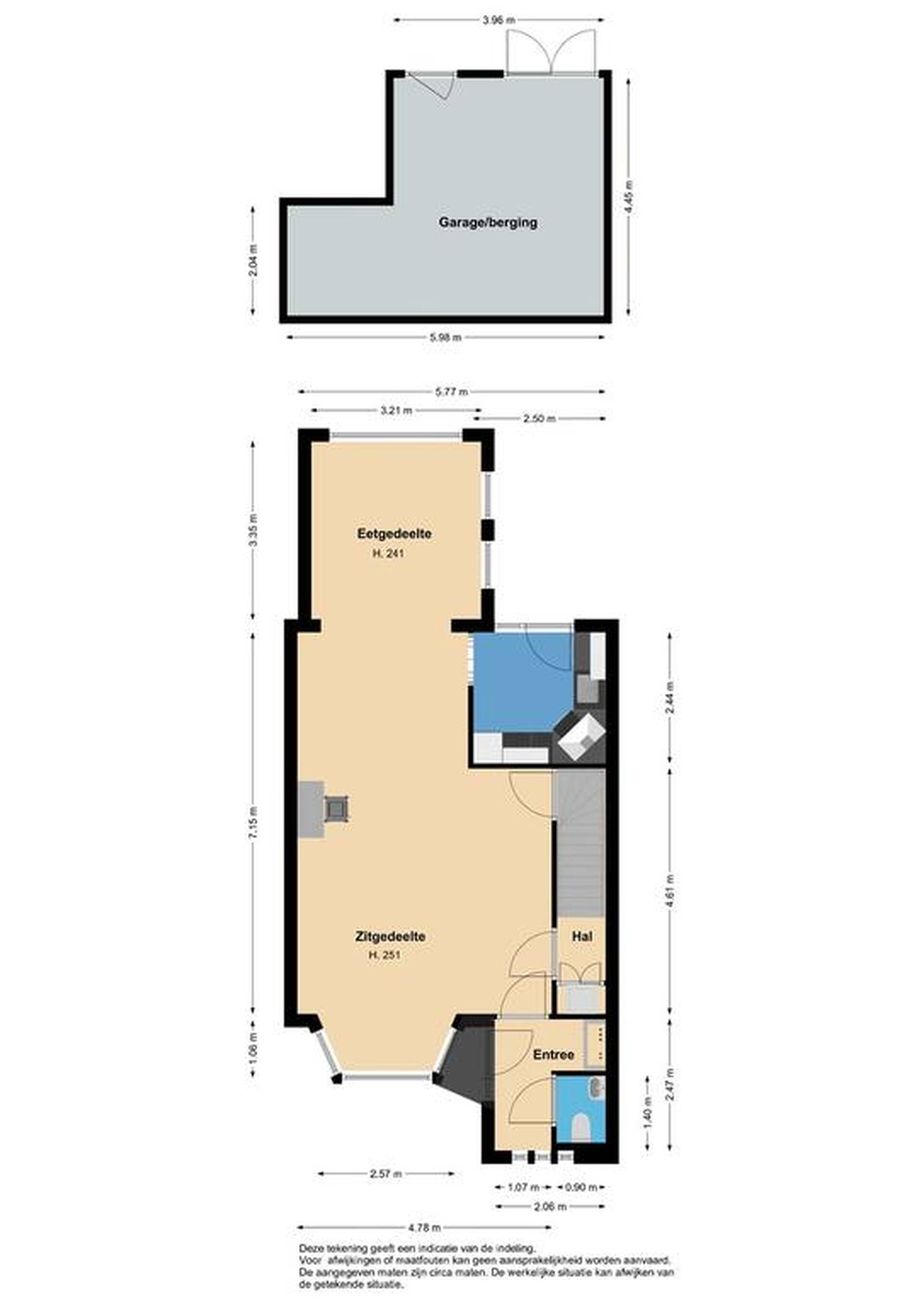
Begane grond: via de entree komt u in de hal met betegelde toiletruimte met hangcloset en fonteintje, meterkast en toegang tot de woonkamer.
Door de vormgeving is het fijn vertoeven in de woonkamer van deze woning. Aan de voorzijde heeft u een erker met een leuke kijk de straat in. U heeft hier volop de ruimte om een gezellige zithoek te creëren. Aan de achterzijde heeft een ruime aanbouw, waar u prima een grote stamtafel kunt plaatsen. Door de ramen heeft u veel lichtinval in deze ruimte ter beschikking en uitzicht op de achtergelegen tuin. Zowel aan de voorzijde als aan de achterzijde heeft u geen direct zicht van buren in de woning. Het woonkamergedeelte is voorzien van een moderne laminaatvloer. De wanden en het plafond zijn gestuukt. In de woonkamer heeft u een trapkast ter beschikking voor het opbergen van uw spulletjes.
De functionele keuken is in een L-vorm uitgevoerd met een kunststof werkblad en voorzien van een afzuigkap, 4 pits gaskookplaat, elektrische oven, vaatwasser en een koel/vriescombinatie. Door de positie van de keuken en het leefgedeelte in de woonkamer heeft u niet gelijk zicht op de keuken. U heeft mede door de bovenkastjes van de keuken voldoende bergruimte tot uw beschikking. Vanuit de keuken kunt u middels de tuindeur de achtertuin bereiken.
Tuin: de onderhoudsvriendelijke tuin is voorzien van sierbestrating en u heeft de beschikking over een leuk vijvertje. Door de ligging van de tuin en doordat er geen directe bebouwing om u heen is kunt u toch heerlijk van de zon genieten. Aan de achterzijde treft u de garage met toegang naar een achtergelegen pleintje.
Garage / berging: de berging/garage is voorzien van een betonvloer en een betontegelvloer. Bovendien is er elektra en water aanwezig. Aan de achterzijde van de berging treft u openslaande deuren en een extra loopdeur. U kunt met veel gemak uw (motor-) fietsen, tuinmeubelen en gereedschappen bergen. Bovendien is het een heerlijk klusruimte! Bovendien biedt de garage ruimte voor het stallen van een auto van ca. 4.40 lang. Een VW golf, BMW 1 serie, Citroen C4 of Porsche Boxter passen er dus prima in!
1e verdieping: via de hal in de woonkamer kunt u de 1e verdieping bereiken. In deze hal is een extra kast aanwezig, waar op dit moment de wasmachine/droger staat opgesteld, maar u kunt deze kast uiteraard ook gebruiken voor het stallen van extra spulletjes. Op de 1e verdieping merkt u echt het ruimteverschil tussen een woning van deze architectuur en een woning met schuine dakvlakken op de 1e verdieping. Door de recht opgetrokken wanden heeft u veel ruimte in de 3 slaapkamers. De slaapkamers zijn keurig afgewerkt en allen voorzien van kunststof kozijnen. In 2 van de 3 slaapkamers kunt u prima een 2-persoonsbed kwijt!
De zeer ruime badkamer is volledig in een gebroken wit/beige gemêleerde kleurstelling betegeld. Op de vloer treft u eveneens een gemêleerde tegel aan. In de badkamer heeft u een verlaagd kunststof ligbad met douche, inloopdouche en een 2e hangcloset. Verder is de badkamer voorzien van een wastafelmeubel met kasten voor het opbergen van uw handdoeken en toiletspullen. Door het grote dakraam is er veel licht in deze badkamer aanwezig.
2e verdieping: u kunt de 2e verdieping eenvoudig met een vaste trap bereiken. Op de voorzolder treft u in een aparte ruimte de CV-ketel. Verder is hier een aparte ruimte gemaakt voor het opslaan van uw spulletjes. De zeer ruime 4e slaapkamer is een heerlijke tienerkamer! Er is meer dan voldoende ruimte om vriendjes of vriendinnetjes fijn een nachtje te laten logeren. Door de aanwezigheid van 2 dakramen is in deze ruimte veel daglicht aanwezig. Het spreekt vanzelf dat op deze zolder ook veel bergruimte tot uw beschikking staat.
Bijzonderheden:
Een heerlijke uitgebouwde tussenwoning met veel leefruimte op de begane grond, 4 slaapkamers en een fijne privacy volle tuinligging. De supermarkt en de lagere school zijn zeer dichtbij. Bovendien heeft u de beschikking over een garage!
De woning wordt verkocht bij inschrijving onder gunning vanaf € 290.000,--.
U kunt zich daarvoor AANMELDEN via ons kantoortelefoonnummer.
RE/MAX makelaar Han van Wijk begeleidt u graag bij de bezichtiging.
In verband met het Corona virus (voor uw en onze veiligheid) doen wij geen bezichtigingen zonder afspraak en volgens de RIVM richtlijnen.
De inschrijving eindigt op woensdag 1 december 2021 om 17.00 uur.
Iedereen wordt op deze wijze in de gelegenheid gesteld om een bieding uit te kunnen brengen.
De speciale inschrijfformulieren worden u tijdens een vrijblijvende bezichtiging uitgereikt.
Wij leiden u graag rond in deze keurige woning.
Beelden vertellen u meer dan tekst. Wij verwijzen u dan ook graag naar onze video én Matterport presentatie ( interactieve video) op deze site. U krijgt hierbij een video introductie, een videovlucht om én door de woning en maar liefst meer dan 75 foto’s van het object. U kunt de woning ook op een virtuele wijze bekijken. Dit kan ook met een VR bril voor de ultieme beleving!
Bouwjaar: 1973
Inhoud: ca. 395 m³
Woonoppervlakte: ca. 113 m²
Externe bergruimte: ca. 22 m²
Perceeloppervlakte: 184 m²