Geliefde locatie dichtbij alle voorzieningen!
Deze fijne TUSSENWONING met BERGING is gelegen op een aantrekkelijke stek in deze ruim opgezette wijk. De goed onderhouden woning biedt u veel woongenot! De woning is voorzien van een splinternieuwe moderne keuken, keurige badkamer en 4 slaapkamers. U heeft zelfs de mogelijkheid voor 5 slaapkamers! Een zeer aantrekkelijke gezinswoning met veel leefruimte! De woning is in de nabijheid gelegen van winkelcentrum, scholen, NS station, park en sportfaciliteiten.
Beelden vertellen u meer dan tekst. Wij verwijzen u dan ook graag naar onze video, de Matterport presentatie én de interactieve video op onze site. U krijgt hierbij een video introductie, een videovlucht om én door de woning en maar liefst meer dan 75 foto’s van het object. U kunt de woning ook op een virtuele wijze bekijken. Dit kan met een VR bril, die wij bij de bezichtiging aan u zullen verstrekken, voor de ultieme beleving!
Begane grond: via de entree komt u in de hal met functionele toiletruimte met closet en fonteintje, meterkast en toegang tot de bovenliggende etages.
Door de speelse vormgeving is het fijn vertoeven in de woonkamer van deze woning. Door de ligging en de grote raampartijen van deze woning heeft u veel licht in uw woonkamer. Vanuit het zitgedeelte aan de voorzijde heeft u een fijne kijk de straat in. Het woonkamergedeelte is voorzien van een laminaatvloer en de wanden en plafond zijn gestuukt. Aan de achterzijde van de woning bevindt zich het eetgedeelte met uitzicht op de achtergelegen tuin.
De moderne open keuken is in een L-vorm uitgevoerd met een kunststof werkblad en voorzien van een afzuigkap, 4 pits gaskookplaat, elektrische oven, vaatwasser en een losse koel/vriescombinatie. De keuken is hagelnieuw en is nog nooit gebruikt! U kunt in deze keuken direct aan de slag. Vanuit de keuken kunt u de achtertuin bereiken.
Tuin: u zult heerlijk kunnen relaxen in deze fijne tuin op het westen! De tuin is voorzien van sierbestrating, een vijverpartij en de borders bieden u diverse soorten beplantingen. Door de ligging op het westen kunt u vrijwel de gehele dag van de zon genieten. Aan de achterzijde treft u de ruime berging en heeft u middels een poort toegang tot de tuin.
Op warme dagen kunt u fijn de schaduw opzoeken onder het zonnescherm.
Berging: de extra ruime stenen berging is voorzien van elektra en wateraansluiting. Er is naast een uitstortgootsteen ook aansluiting voor uw wasmachine aanwezig. U kunt met veel gemak uw fietsen, tuinmeubelen en gereedschappen bergen. Naast de berging vindt u een afgesloten overkapping. Ook hier kunt u nog extra spulletjes bergen of bijvoorbeeld uw motorfiets stallen.
1e verdieping: op de 1e verdieping merkt u echt het ruimteverschil tussen een woning van deze architectuur en een woning met schuine dakvlakken op de 1e verdieping. Door de recht opgetrokken wanden heeft u veel ruimte in de hier aanwezige 3 slaapkamers. De grote slaapkamer aan de voorzijde van de woning geeft toegang naar het balkon. De slaapkamers zijn keurig afgewerkt en alle kamers zijn voorzien van een laminaatvloer. In 2 van de 3 slaapkamers kunt u met gemak een 2-persoonsbed plaatsen.
De flinke badkamer is volledig betegeld in een licht beige kleurstelling. In de badkamer heeft u een ligbad met douchegelegenheid, een wastafelmeubel en een 2e toilet ter beschikking. Uiteraard ontbreekt de design-radiator ook niet.
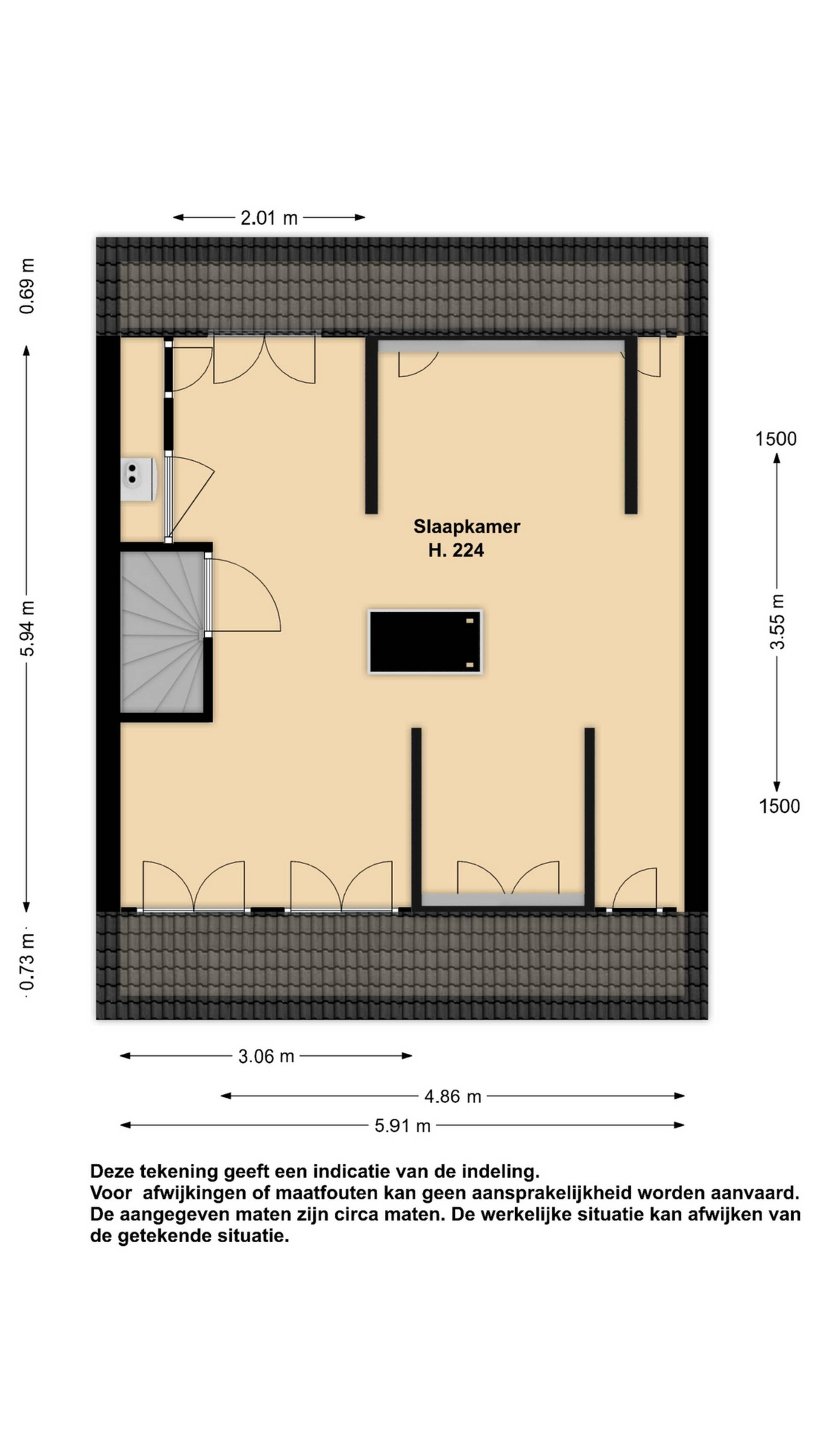
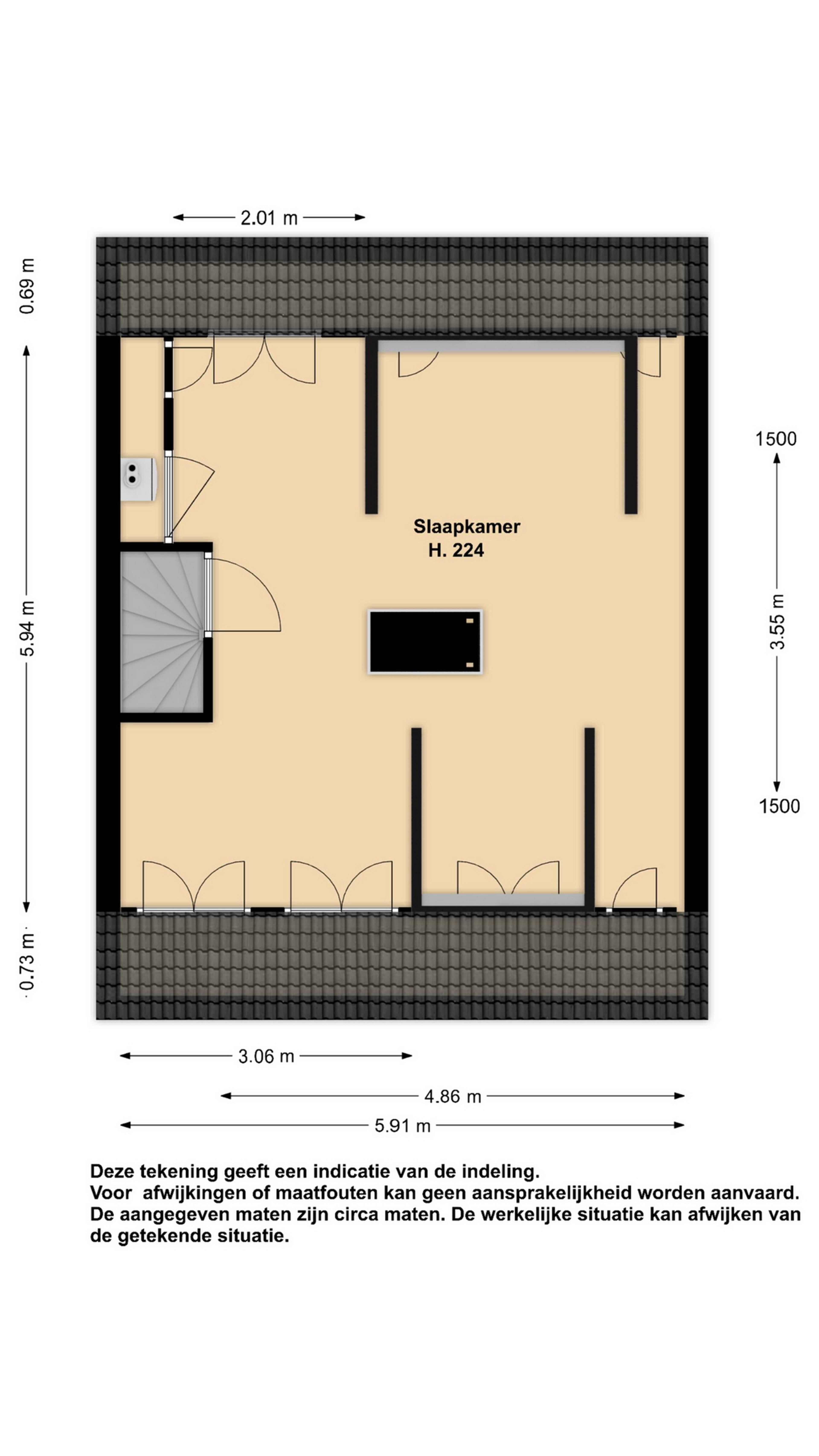
2e verdieping: u kunt de 2e verdieping eenvoudig met een vaste trap bereiken. Op deze etage treft u een dakkapel aan de voorzijde alsmede aan de achterzijde aan. Hierdoor is een zeer ruime 4e slaapkamer aanwezig! Een heerlijke tienerkamer! Deze kamer is eveneens keurig afgewerkt met stucwerk en een laminaatvloer. Verder is hier, in een vaste kast, de CV opstelling geplaatst. Het spreekt vanzelf dat op deze zolder, achter de knieschotten, ook veel bergruimte tot uw beschikking staat. Bovendien is in deze kamer een extra vlizotrap aanwezig, zodat u een bergzolder kunt bereiken, waar u extra spulletjes een plaatsje kunt geven. Desgewenst kunt u deze etage zelfs voorzien van 2 slaapkamers. Daarmee heeft u dan 5 slaapkamers in de woning!
Bijzonderheden:
Een heerlijke tussenwoning met ruime berging, 4 slaapkamers en een westen tuinligging. Het park is vlakbij en de diverse voorzieningen als scholen, winkels, NS station en het IJsselmeer liggen op loopafstand!
Bouwjaar: 1974
Inhoud: ca. 412 m³
Woonoppervlakte: ca. 120 m²
Externe bergruimte: ca. 14 m²
Gebouwgebonden buitenruimte: ca. 4 m²
Perceeloppervlakte: 166 m²