Geliefde locatie bij Nassaupark!
Deze fijne TUSSENWONING met BERGING is gelegen op een aantrekkelijke stek in deze ruim opgezette wijk. De goed onderhouden woning biedt u veel woongenot! De woning is bovendien deels voorzien van KUNSTSTOF KOZIJNEN, een erker aan de voorzijde, keurige keuken, keurige badkamer en 4 slaapkamers. Een zeer aantrekkelijke gezinswoning met veel leefruimte! De woning is in de nabijheid gelegen van DOORGAAND VAARWATER, winkelcentrum, scholen, NS station, park en sportfaciliteiten.
De woning wordt verkocht bij inschrijving onder gunning met vraagprijs € 285.000,--.
RE/MAX makelaar Han van Wijk begeleidt u graag bij de bezichtiging.
De inschrijving eindigt op dinsdag 28 november 2023 om 17.00 uur.
Iedereen wordt op deze wijze in de gelegenheid gesteld om een bieding uit te kunnen brengen.
Beelden vertellen u meer dan tekst. Wij verwijzen u dan ook graag naar onze video, de Matterport presentatie én de interactieve video op onze site. U krijgt hierbij een video introductie, een videovlucht om én door de woning en maar liefst meer dan 75 foto’s van het object. U kunt de woning ook op een virtuele wijze bekijken. Dit kan met een VR bril, die wij bij de bezichtiging aan u zullen verstrekken, voor de ultieme beleving!
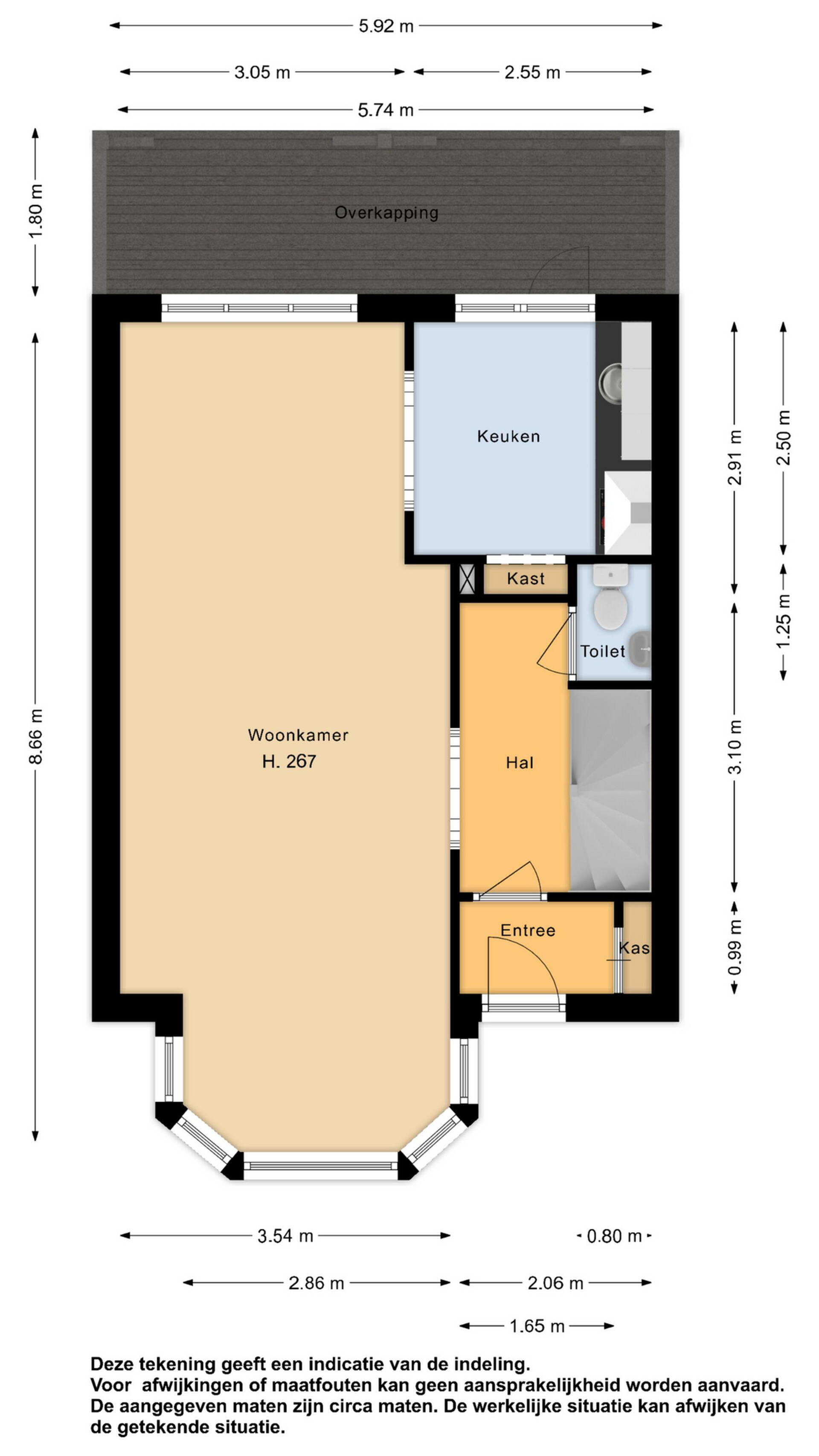
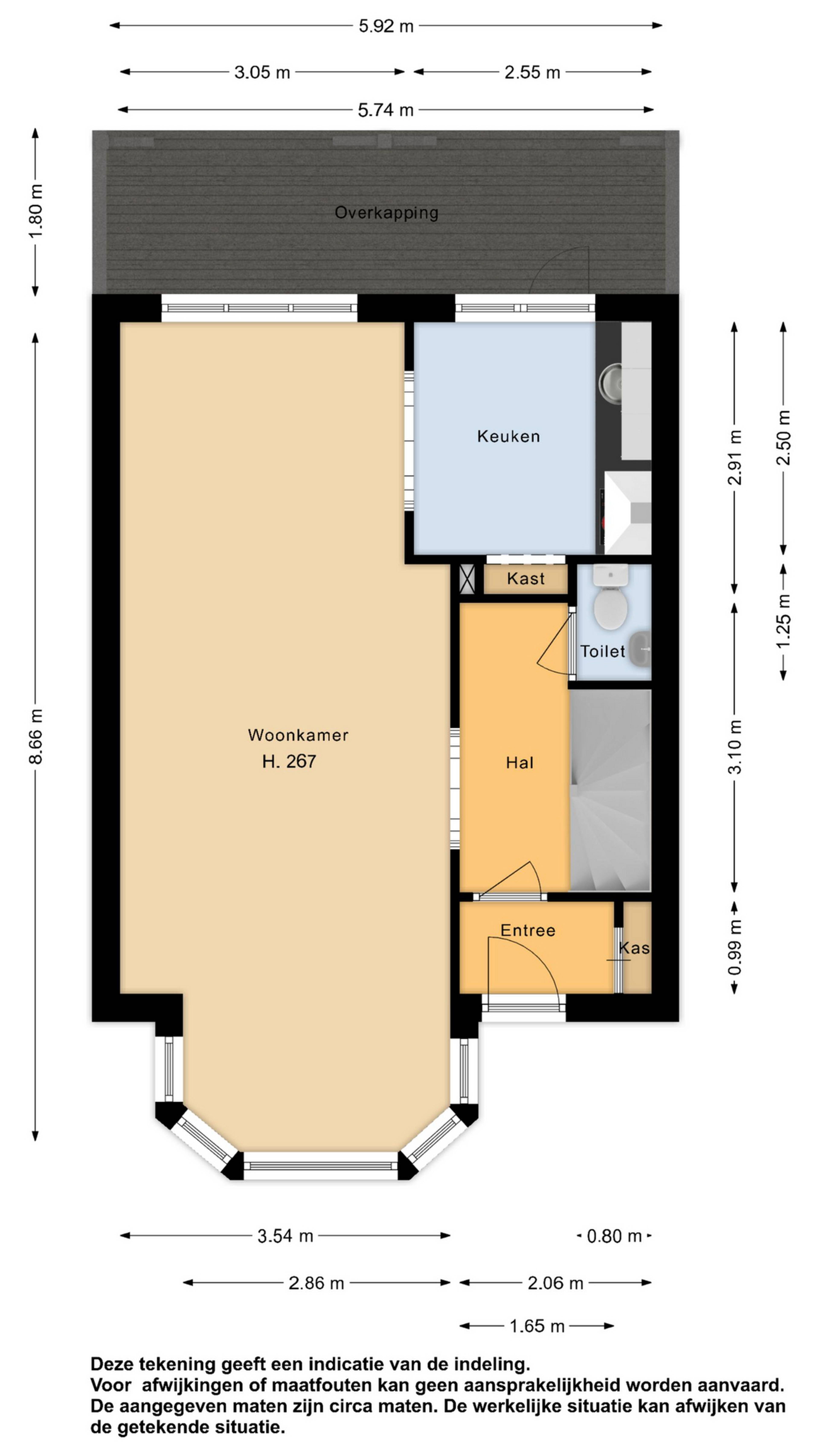
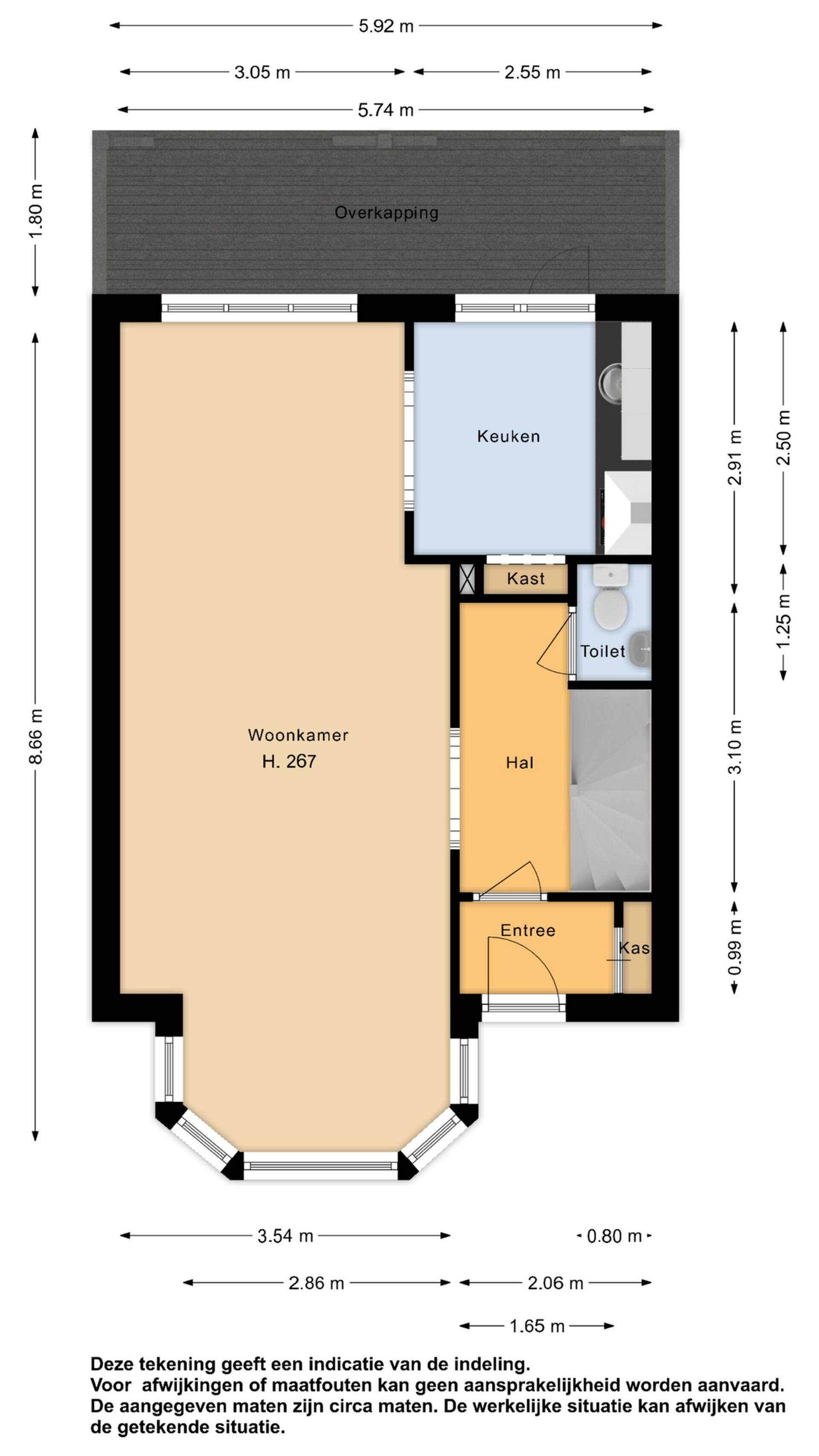
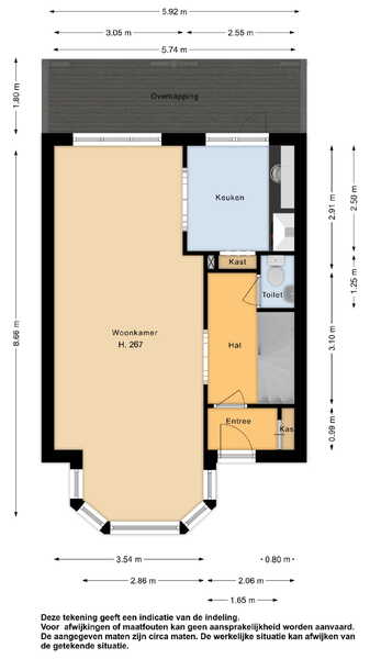
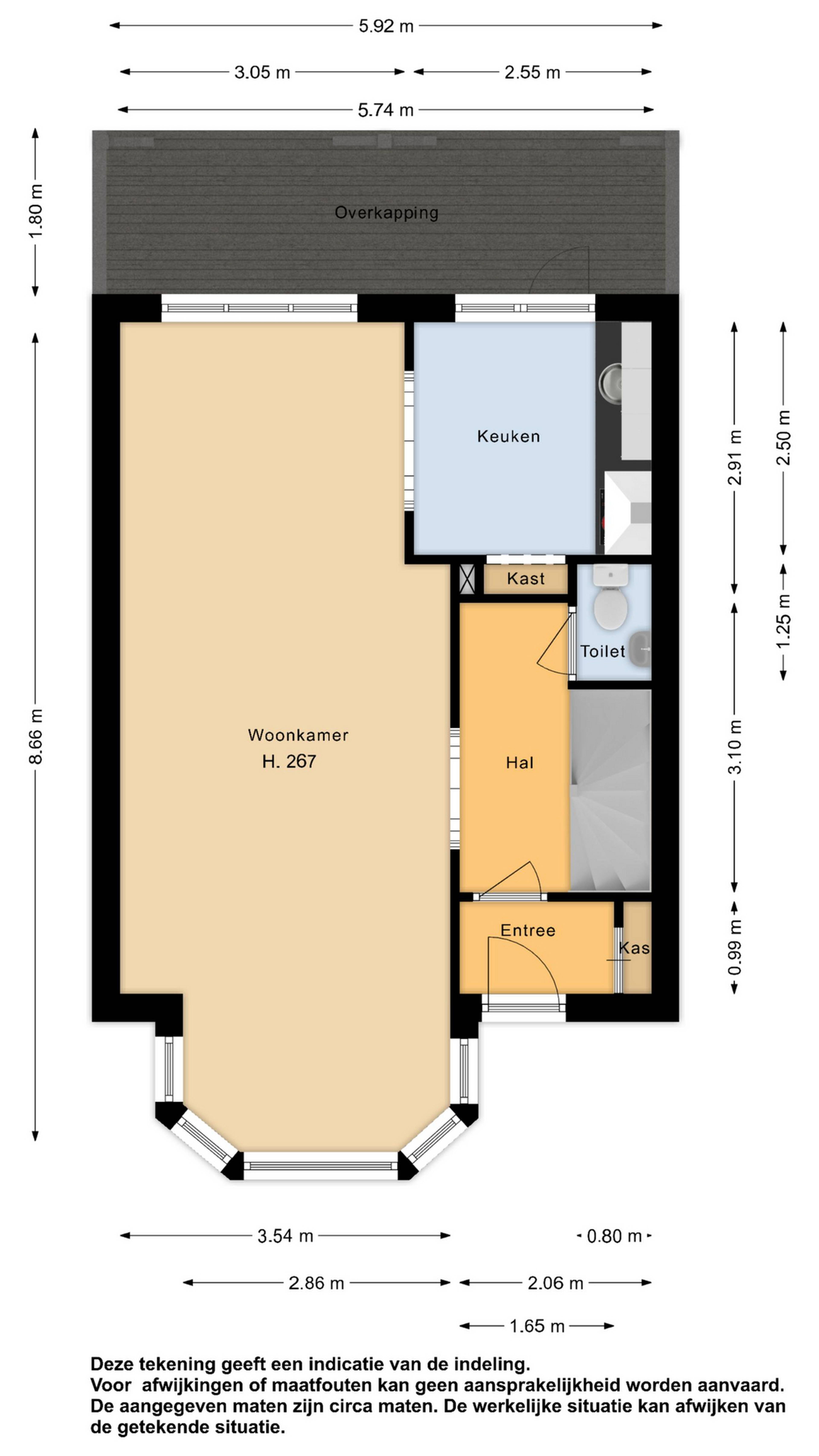
Begane grond: via de entree komt u in de tussenhal met meterkast en garderoberuimte. In de centrale hal treft u een volledig betegelde toiletruimte met closet en fonteintje en toegang tot de bovenliggende etages.
Door de speelse vormgeving is het fijn vertoeven in de woonkamer van deze woning. Door de extra ruime erker aan de voorzijde heeft u veel leefruimte op de begane grond. Vanuit het zitgedeelte aan de voorzijde heeft u een fijne kijk de straat in. Het woonkamergedeelte is voorzien van een laminaatvloer en de wanden zijn keurig afgewerkt. Aan de achterzijde van de woning bevindt zich het eetgedeelte met uitzicht op de achtergelegen tuin.
De keurige half open keuken is in een rechte vorm uitgevoerd met een kunststof werkblad en voorzien van een afzuigkap, inductie kookplaat en hete luchtoven. U heeft mede door de bovenkastjes van de keuken veel bergruimte tot uw beschikking. In de keuken heeft u eveneens een vaste kast, waar u prima extra spulletjes kwijt kunt, maar ook een koel/vriescombinatie kunt plaatsen. Verder is de keuken uitgevoerd met een kleine eetbar voor een snel ontbijtje. Vanuit de keuken kunt u via de tuindeur de achtertuin bereiken.
Tuin: u zult heerlijk kunnen relaxen in deze fijne tuin! Direct aan de gevel heeft u een leuke veranda tot uw beschikking, waar u heerlijk “droog” uw kopje koffie ’s morgens kunt nuttigen. De tuin is voorzien van sierbestrating, siergrind en de borders bieden u diverse soorten beplantingen. Aan de achter in de tuin treft u de ruime berging aan.
Berging: de ruime stenen berging is voorzien van elektra. U kunt met veel gemak uw fietsen, tuinmeubelen en gereedschappen bergen omdat de berging over de volle breedte van het perceel is gesitueerd. Vanuit de berging heeft u toegang naar de achtergelegen steeg.
1e verdieping: op de 1e verdieping merkt u echt het ruimteverschil tussen een woning van deze architectuur en een woning met schuine dakvlakken op de 1e verdieping. Door de recht opgetrokken wanden heeft u veel ruimte in de 3 slaapkamers. De grote slaapkamer aan de voor- en achterzijde van de woning zijn voorzien van een flinke kastenwanden. De slaapkamers zijn keurig afgewerkt. De slaapkamers aan de achterzijde zijn voorzien van een parketvloer en de slaapkamer aan de voorzijde is voorzien van een laminaatvloer. Bovendien is de deze slaapkamer extra uitgevoerd met een elektrisch bedienbaar rolluik. Fijn om bij warme dagen de slaapkamer koel te houden. In 2 van de 3 slaapkamers kunt u eenvoudig een 2-persoonsbed plaatsen. Op de overloop is tevens een vaste kast aanwezig waar u de wasmachineopstelling kwijt kunt.
De functionele badkamer is volledig in een lichte kleurstelling uitgevoerd. Op de vloer treft u een grijze plavuizenvloer aan. In de badkamer heeft u een douchegelegenheid en een wastafelmeubel ter beschikking. Uiteraard ontbreekt de design-radiator ook niet. Het geheel ziet er keurig uit.
2e verdieping: u kunt de 2e verdieping eenvoudig met een vaste trap bereiken. Verder is hier de CV opstelling geplaatst. Op deze etage is een 4e slaapkamer aanwezig! Het dakraam is recent vervangen en geeft u veel lichtinval. De kamer is voorzien van een parketvloer. Het spreekt vanzelf dat op deze zolder ook veel bergruimte tot uw beschikking staat.
Bijzonderheden:
Een heerlijke tussenwoning met ruime berging en 4 slaapkamers. Het Nassaupark is nabij de woning gelegen en biedt u de gelegenheid om bijvoorbeeld uw hond even fijn te laten rennen! Hier treft u eveneens doorgaand vaarwater aan!
De woning wordt verkocht bij inschrijving onder gunning met vraagprijs € 285.000,--.
RE/MAX makelaar Han van Wijk begeleidt u graag bij de bezichtiging.
De inschrijving eindigt op dinsdag 28 november 2023 om 17.00 uur.
Iedereen wordt op deze wijze in de gelegenheid gesteld om een bieding uit te kunnen brengen.
Bouwjaar: 1972
Inhoud: ca. 337 m³
Woonoppervlakte: ca. 107 m²
Gebouwgebonden buitenruimte: ca.10 m²
Externe bergruimte: ca. 12 m²
Perceeloppervlakte: 158 m²