Kunnen we u ook “overhalen” om op een eiland te wonen?
Deze zeer speciale VILLA met BIJGEBOUW is onder architectuur ontworpen en heeft ideale mogelijkheden als u behoefte heeft aan KANTOOR- of PRAKTIJKRUIMTE, CHILLRUIMTE voor de kids of op kamers bij je ouders wonen! De speelse indeling van het hoofdgebouw zal u een plezierige woonbeleving bezorgen! De locatie ligt op loopafstand van het NS station en in de directe omgeving van scholen, overdekt winkelcentrum, sportfaciliteiten en het Streekbos. De directe ligging aan doorgaand vaarwater én het IJsselmeer via Broekerhaven met de binnen- én buitenhaven en de speciale overhaal maakt het plaatje geheel compleet! De tuin met fraai uitzicht over de weilanden geeft u een permanent vakantiegevoel! Als u langs komt voor een vrijblijvende rondleiding zult u het met ons eens zijn dat dit werkelijk een pracht stek is! Wonen op uw eigen eiland!
Beelden vertellen u meer dan tekst. Wij verwijzen u dan ook graag naar onze video, de Matterport presentatie én de interactieve video op onze site. U krijgt hierbij een video introductie, een videovlucht om én door de woning en maar liefst meer dan 50 foto’s van het object. U kunt de woning ook op een virtuele wijze bekijken. Dit kan met een VR bril, die wij bij de bezichtiging aan u zullen verstrekken, voor de ultieme beleving! Iedereen wordt op deze wijze in de gelegenheid gesteld om een bieding uit te kunnen brengen.
Entree hoofdgebouw: via de entree aan de voorzijde komt u in de ruime hal met garderoberuimte, toiletruimte en meterkast. Via deze hal kunt u de 1e verdieping bereiken en een slaapkamer/bijkeuken op de begane grond. De moderne toiletruimte is volledig betegeld en voorzien van een hangcloset en een fonteintje.
Bijkeuken / slaapkamer: op de parterre kunt u een bijkeuken bereiken, dat thans in gebruik is als slaapkamer. In deze ruimte is reeds een wastafelmeubel aanwezig. U kunt deze ruimte uiteraard ook als kantoor/salon aan huis in gebruik nemen. U heeft namelijk via de zijkant een eigen toegangsdeur tot deze ruimte.
Woonkamer: Via de hal komt u middels openslaande deuren in de ruime woonkamer met aan de voorzijde een ruime zitgelegenheid. In deze ruimte kunt u prima een loungebank plaatsen. Voor de romantische avondjes is de fijne, strak vormgegeven gashaard aanwezig. Een fijn muziekje opzetten of lekker Netflixen op de bank met het surroundsysteem vol aan ( lekker nietwaar, vrijstaand wonen..) en genieten maar! Centraal in deze ruimte vindt u de zeer ruime luxe keuken.
Keuken: de luxe moderne keuken is de centrale plaats in deze woning en voorzien van veel RVS accenten. U heeft van alle kanten vanuit deze bijzondere keuken fijn contact met uw huisgenoten of met vrienden/familie als u een heerlijke maaltijd voor ze kookt. Een heerlijke plek om samen met de kids de dag door te nemen onder het genot van een kopje thee of om samen met familie of vrienden een heerlijk dineravondje te organiseren. Als het volgende gerecht wordt voorbereid, hoeft de kok immers niets te missen van het gesprek aan tafel! Deze keuken is werkelijk van alle gemakken voorzien. De keuken is in een rechte opstelling geplaatst met een handige eetbar. Deze uitgebreide keuken is voorzien van 4 afzuigsystemen, inductiekookplaat, Boretti gas/ovencombinatie met wokbrander, een Amerikaanse koel/vriescombinatie, combimagnetron, koffiezetapparaat, stoomoven, cooker en een vaatwasser.
Serre: aan de achterzijde van de woonkamer heeft u een ruime serre met veel lichtinval tot uw beschikking. Via deze serre kunt u aan beide zijden de tuin bereiken. Hier kunt u fijn een ruime eettafel plaatsen, waar u heerlijk met de familie of vrienden kunt natafelen.
U heeft vanuit hier fraai zicht over de weilanden. Vanuit de serre heeft u ook toegang naar de overdekte veranda. Het geeft u een zeer gezellig (vakantie-) gevoel. U zult daarom ook veel gebruik maken van deze “buiten-woonkamer”. Zeker als u hier een fijne lounge-set plaatst! Via de veranda kunt u de achterliggende tuin bereiken.
1e verdieping: op de 1e verdieping zijn er thans 2 slaapkamers tot uw beschikking. De etage is zo ruim, dat u hier prima 3 slaapkamers van kunt maken, waardoor het totaal inclusief de slaapkamer op de parterre op 4 slaapkamers komt. De grote slaapkamer is naast een ruim balkon ook uitgevoerd met een walk-in-closet. In deze walk-in-closet kunt u verdwalen. In de 2e slaapkamer kunt u prima een 2-persoonsbed plaatsen. Deze slaapkamer is uitgevoerd met een dakkapel. Beide slaapkamer zijn direct verbonden met de badkamer.
De zeer ruime en luxe badkamer is volledig betegeld en een ware relaxruimte, waar u na een drukke werkdag heerlijk kunt ontspannen. De badkamer is voorzien van een whirlpool ligbad, separate inloopdouche, hangcloset en een fraai wastafelmeubel.
2e verdieping: Via een vlizotrap op de overloop kunt u de bergzolder bereiken. Op deze bergzolder kunt u prima uw extra spulletjes een plaatsje geven.
Bijgebouw
In het bijgebouw kunt prima een kantoor of praktijkruimte inrichten. Op de parterre is een ruime woonkamer en een open moderne keuken met inbouwapparatuur aanwezig. De moderne lichte keuken in L-vorm is extra voorzien van een kookeiland. Via de keuken kunt u het naastgelegen kantoor bereiken. Op de begane grond treft u eveneens een moderne badkamer met inloopdouche, hangcloset en een apart wastafelmeubel. In deze ruimte is tevens de mogelijkheid voor een wasmachine en drogeropstelling. De 1e verdieping is via een vaste trap te bereiken. Hier is een ruime slaapkamer aanwezig. Het bijgebouw is zeer smaakvol afgewerkt en met airco’s uitgevoerd.
Tuin: het terrein kunt u via een brug aan de voorzijde bereiken. U heeft verschillende terrassen tot uw beschikking. Door de grootte van de tuin heeft u diverse mogelijkheden om lekker van de zon te genieten. Het doorgaand vaarwater is natuurlijk een leuke extra! Fijn van huis uit met een bootje vertrekken naar de binnenstad van Enkhuizen, het streekbos of het natuurgebied de Weelen.
In de tuin, achter het woonhuis, treft u een flinke zwemspa, zodat u uw conditie op peil kunt houden. Na de nodige inspanning nog even fijn relaxen in de jacuzzi (ook lekker in de winter!). Heerlijk relaxen in uw eigen tuin, wat wilt u nog meer? Op uw eigen terrein heeft u de mogelijkheid voor het parkeren van diverse auto’s, busjes, caravan en camper. Geen probleem, hier is voldoende ruimte voor.
Garage / schuur: achter in de tuin is een grote garage van zo’n 60 m² aanwezig. De garage is uitgevoerd met dubbele deuren. Bovendien is de garage ook voorzien van daglicht. Houdt u van klussen, dan heeft u de perfecte plek te pakken. In deze garage heeft u voldoende ruimte om uw werkzaamheden te verrichten. Daarnaast is de garage groot genoeg voor het stallen van uw auto’s, motoren, fietsen. Uiteraard blijft er nog voldoende ruimte over voor uw tuingereedschap en tuinmeubelen.
Bijzonderheden:
In het totale woonoppervlakte van de woning is het woonoppervlakte van het bijgebouw ook opgenomen. Er is van de woning en het bijgebouw een bouwkundig rapport opgesteld. Hierdoor krijgt u een goede indruk van de bouwkundige staat van het geheel!
Separaat kunt u een brochure van het bijgebouw aanvragen.
Bouwjaar: 2010
Inhoud woning: ca. 545 m³
Inhoud bijgbeouw: ca. 373 m³
Woonoppervlakte woning: ca. 155 m²
Woonnoppervlakte bijgebouw: ca. 100 m²
Woonoppervlakte totaal: 255 m²
Externe bergruimte: ca. 60 m²
Gebouwgebonden buitenruimte: ca. 21 m²
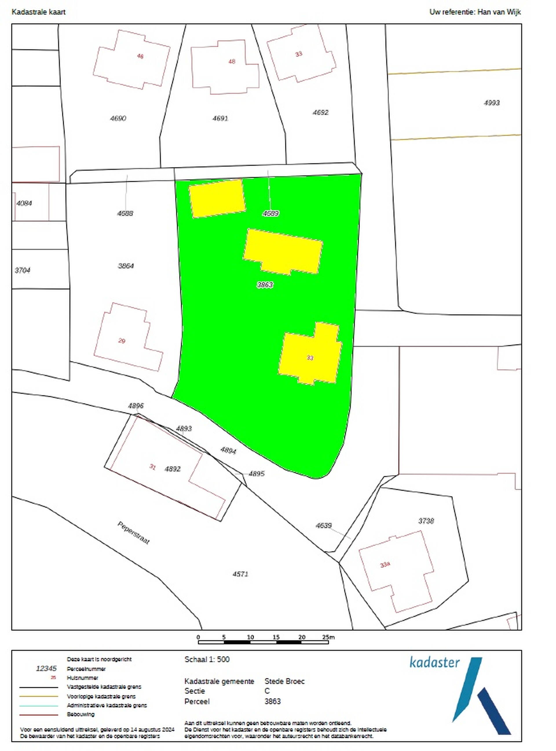
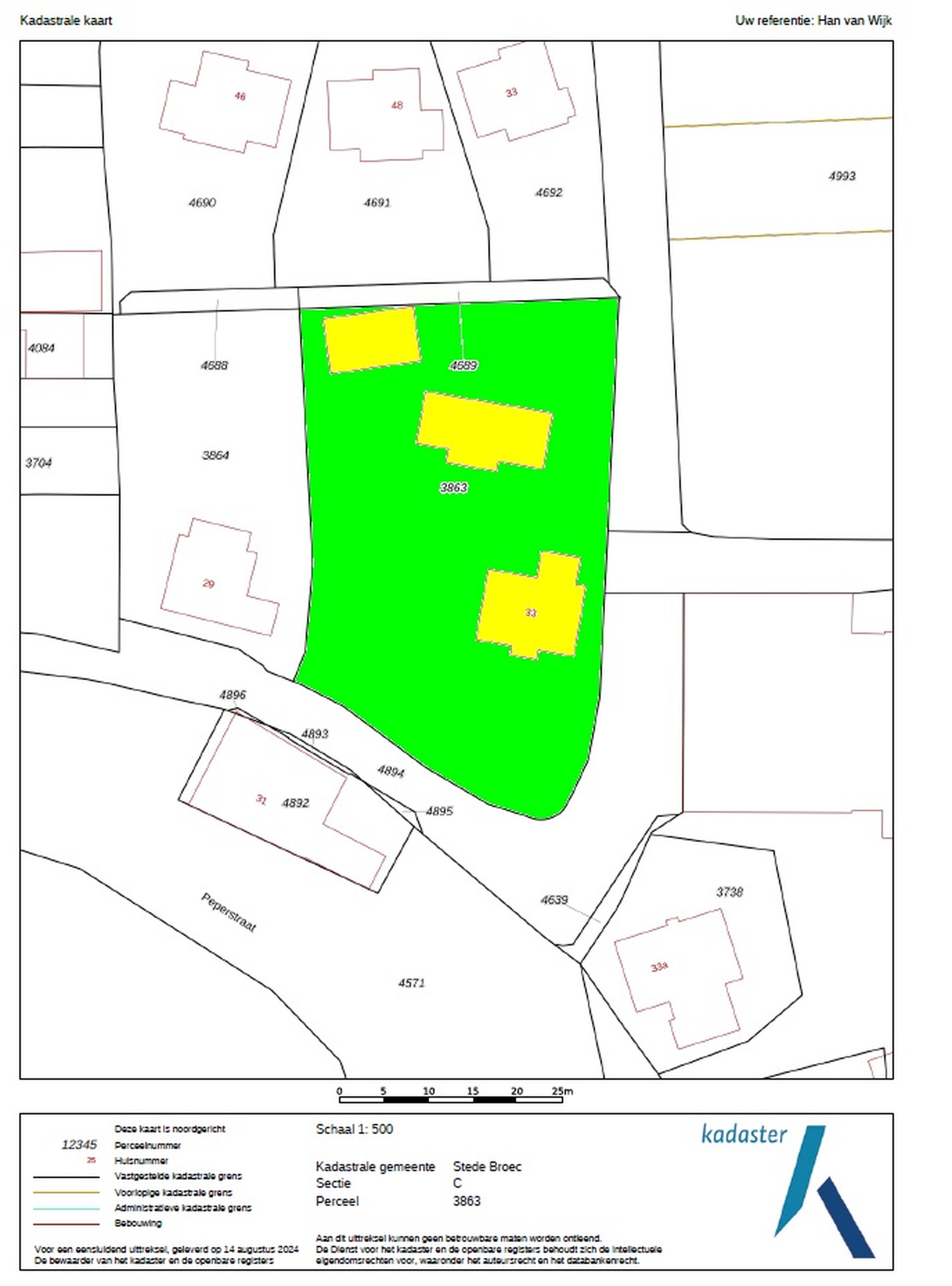
Perceeloppervlakte: 1.834 m²