STARTERSWONING!
Deze fijne TUSSENWONING met BERGING is gelegen op een aantrekkelijke stek in deze ruim opgezette wijk. Door de recht opgetrokken wanden op de 1e verdieping heeft u veel ruimte tot uw beschikking! De woning is bovendien voorzien van dakisolatie en muurisolatie en op de voordeur na overal dubbel glas. Een zeer aantrekkelijke gezinswoning met veel leefruimte! De woning is in de nabijheid gelegen van winkelcentrum, scholen, NS station, park en sportfaciliteiten.
De woning wordt verkocht bij inschrijving onder gunning vanaf € 225.000,--.
Op donderdag 15 december van 17.00 uur tot 18.00 uur en zaterdag 17 december van 13.00 uur tot 14.00 uur kunt u de woning zonder afspraak bezichtigen.
RE/MAX makelaar Han van Wijk begeleidt u graag bij de bezichtiging.
De inschrijving eindigt op donderdag 22 december 2022 om 17.00 uur.
Iedereen wordt op deze wijze in de gelegenheid gesteld om een bieding uit te kunnen brengen.
De speciale inschrijfformulieren worden u tijdens een vrijblijvende bezichtiging uitgereikt.
Beelden vertellen u meer dan tekst. Wij verwijzen u dan ook graag naar onze video, de Matterport presentatie én de interactieve video op onze site. U krijgt hierbij een video introductie, een videovlucht om én door de woning en maar liefst meer dan 75 foto’s van het object. U kunt de woning ook op een virtuele wijze bekijken. Dit kan met een VR bril, die wij bij de bezichtiging aan u zullen verstrekken, voor de ultieme beleving!
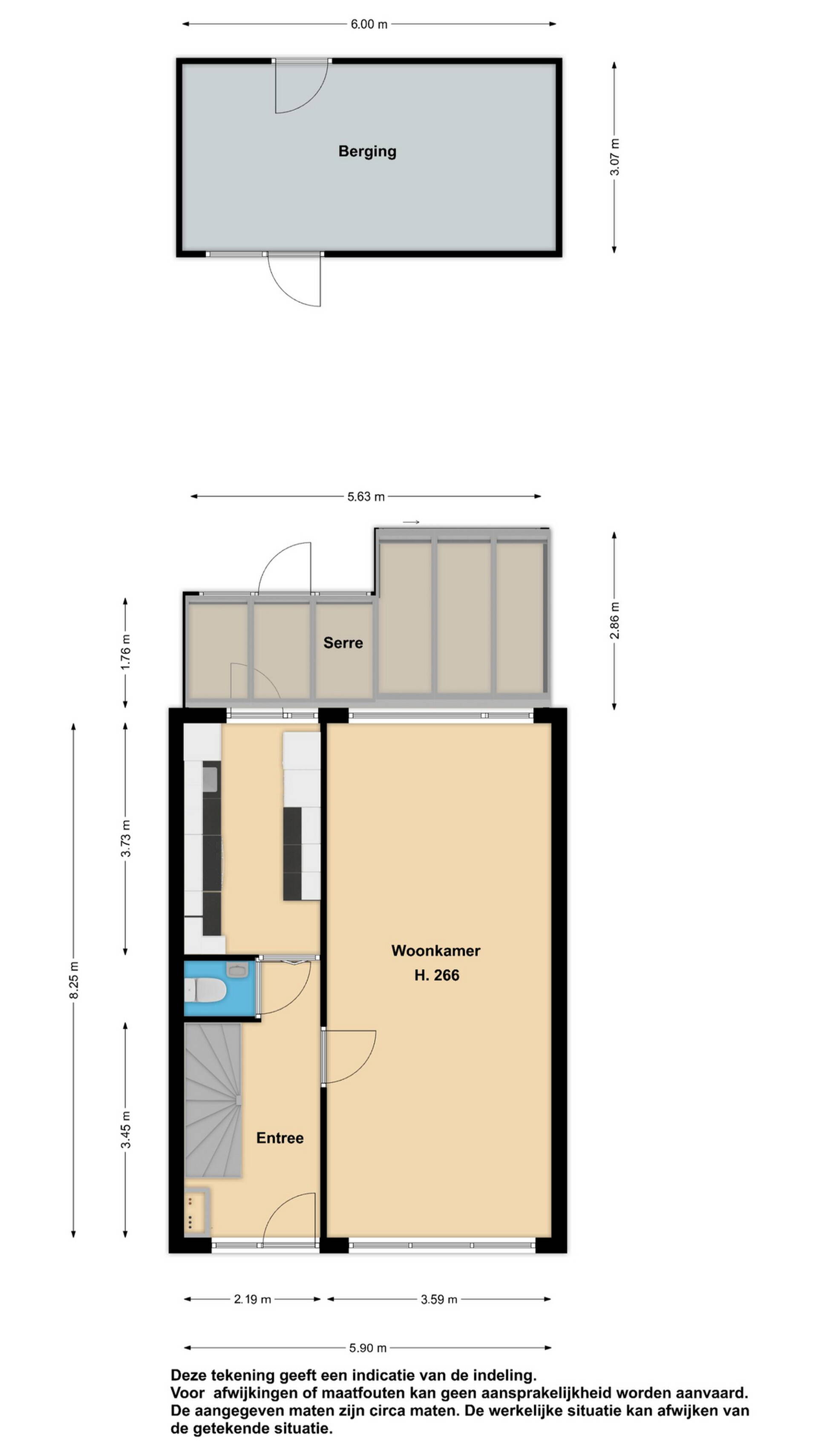
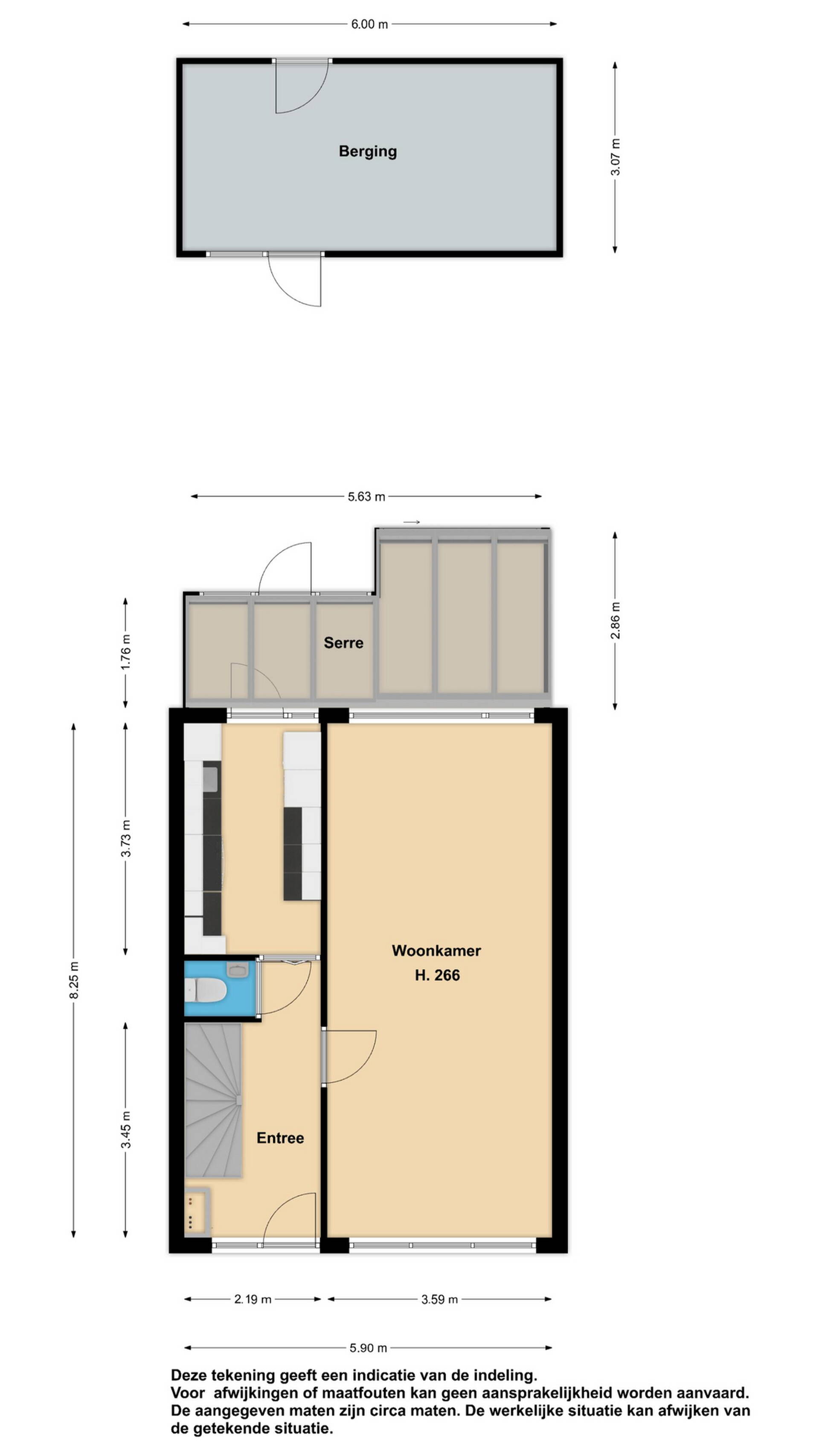
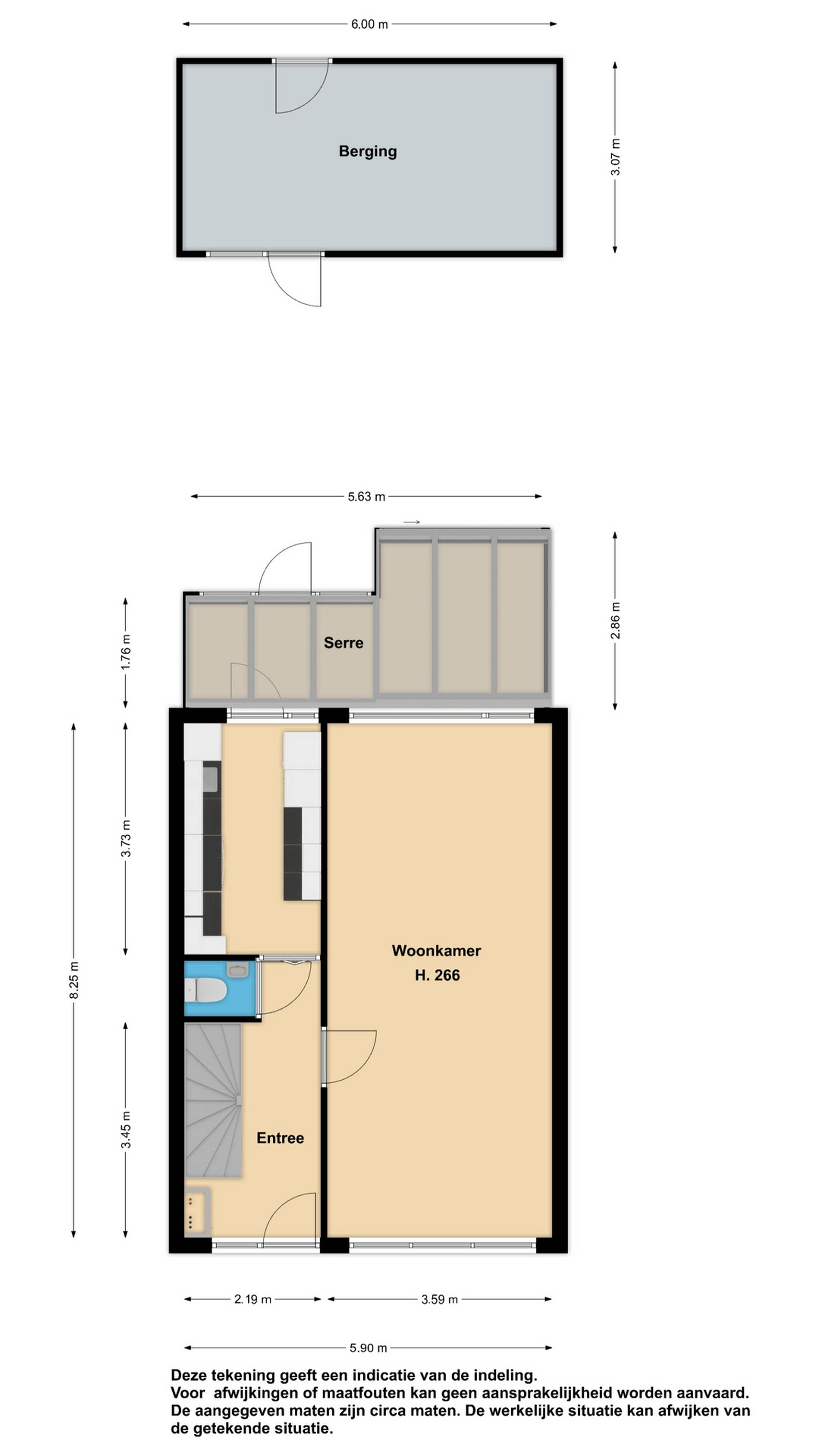
Begane grond: via de entree komt u in de hal met functionele toiletruimte met closet en fonteintje, meterkast en toegang tot de bovenliggende etages.
Door de vormgeving is het fijn vertoeven in de woonkamer van deze woning. Door de ligging van de woning heeft u zowel aan de voorzijde als de achterzijde van de woning geen directe inkijk. Vanuit het zitgedeelte aan de voorzijde heeft u een fijne kijk op een rustige straat en openbaar groen. Het woonkamergedeelte is voorzien van een plavuizenvloer en het plafond is voorzien van sierbalken. Aan de achterzijde van de woning bevindt zich het eetgedeelte met uitzicht op de achtergelegen tuin.
De besloten keuken is aan beide zijden geplaatst. De functionele keuken is uitgevoerd met een kunststof werkblad en voorzien van een afzuigkap, 5 pits gaskooktoestel met oven, elektrische oven, vaatwasser, magnetron en een koel/vriescombinatie. In de keuken kunt u tevens uw wasmachine een plaatsje geven. U heeft mede door de bovenkastjes van de keuken veel bergruimte tot uw beschikking. Vanuit de keuken kunt u de aangebouwde veranda bereiken.
Veranda: de verwarmde veranda is een extra toevoeging aan uw woning. Hier kunt u in het voor- of najaar nog heerlijk vertoeven voor een kopje koffie in de ochtend of ’s avonds na uw werk voor een glaasje wijn.
Tuin: u zult heerlijk kunnen relaxen in deze fijne tuin! De tuin is voorzien van siergrind en diverse vaste beplantingen. Door de ligging heeft u in de zomer ook heerlijk de zon in de tuin staan. Aan de achterzijde treft u de ruime berging aan.
Berging: de ruime stenen berging is voorzien van elektra. U kunt met veel gemak uw fietsen, tuinmeubelen en gereedschappen bergen. Via de berging kunt u ook de achtergelegen steeg bereiken.
1e verdieping: op de 1e verdieping merkt u echt het ruimteverschil tussen een woning met deze architectuur en een woning met schuine dakvlakken op de 1e verdieping. Door de recht opgetrokken wanden heeft u namelijk veel ruimte in de 3 slaapkamers op deze etage. De grote slaapkamer aan de voorzijde is extra voorzien van een wastafel. Samen met de slaapkamer op de 2e etage kunt u in 3 van de 4 slaapkamers eenvoudig een 2-persoonsbed plaatsen. Op de overloop is naast een vaste kast tevens een separate 2e toiletruimte met fonteintje aanwezig.
De functionele badkamer is volledig voorzien van kunststof panelen. Op de vloer treft u een plavuizenvloer aan. In de badkamer heeft u een halfrond hoekligbad met douchegelegenheid en een wastafel met meubel ter beschikking. Ook ontbreekt de design-radiator niet.
2e verdieping: u kunt de 2e verdieping eenvoudig met de vaste trap bereiken. Op de zolder kunt u uiteraard ook uw wasmachine een plaatsje geven. Verder is hier de CV opstelling geplaatst. Op deze etage heeft u een 4e slaapkamer tot uw beschikking. Een dakraam is ook in deze slaapkamer aanwezig. Het spreekt vanzelf dat op deze zolder ook veel bergruimte tot uw beschikking staat.
Bijzonderheden:
Een heerlijke starterswoning met ruime berging, 4 slaapkamers en een fijne tuinligging. Aan de voorzijde heeft u een fijn speelveld waar de kinderen heerlijk kunnen ravotten!
De woning wordt verkocht bij inschrijving onder gunning vanaf € 225.000,--.
Op donderdag 15 december van 17.00 uur tot 18.00 uur en zaterdag 17 december van 13.00 uur tot 14.00 uur kunt u de woning zonder afspraak bezichtigen.
RE/MAX makelaar Han van Wijk begeleidt u graag bij de bezichtiging.
De inschrijving eindigt op donderdag 22 december 2022 om 17.00 uur.
Iedereen wordt op deze wijze in de gelegenheid gesteld om een bieding uit te kunnen brengen.
De speciale inschrijfformulieren worden u tijdens een vrijblijvende bezichtiging uitgereikt.
Bouwjaar: 1975
Inhoud: ca. 413 m³
Woonoppervlakte: ca. 121 m²
Externe bergruimte: ca. 18 m²
Gebouwgebonden buitenruimte: ca. 13 m²
Perceeloppervlakte: 160 m²