RUIME HOEKWONING!
Deze riante HOEKWONING met stenen inpandig bereikbare berging en tuin op het zuiden is gelegen op een kindvriendelijke stek in de directe nabijheid van alle voorzieningen, zoals winkelcentra, scholen, NS station, park en sportfaciliteiten. De woning heeft een ruime woonkamer met functionele keuken, keurige badkamer en 4 slaapkamers, waar in iedere slaapkamer prima een 2-persoonsbed in past! De woning is deels voorzien van kunststof gevelbekleding én kunststof kozijnen!
De woning wordt verkocht bij inschrijving onder gunning vanaf € 315.000,--.
RE/MAX makelaar Han van Wijk begeleidt u graag bij de bezichtiging.
De inschrijving eindigt op dinsdag 11 februari 2025 om 17.00 uur.
Beelden vertellen u meer dan tekst. Wij verwijzen u dan ook graag naar onze video, de Matterport presentatie én de interactieve video op onze site. U krijgt hierbij een video introductie, een videovlucht om én door de woning en maar liefst meer dan 50 foto’s van het object. U kunt de woning ook op een virtuele wijze bekijken. Dit kan met een VR bril, die wij bij de bezichtiging aan u zullen verstrekken, voor de ultieme beleving! Iedereen wordt op deze wijze in de gelegenheid gesteld om een bieding uit te kunnen brengen.
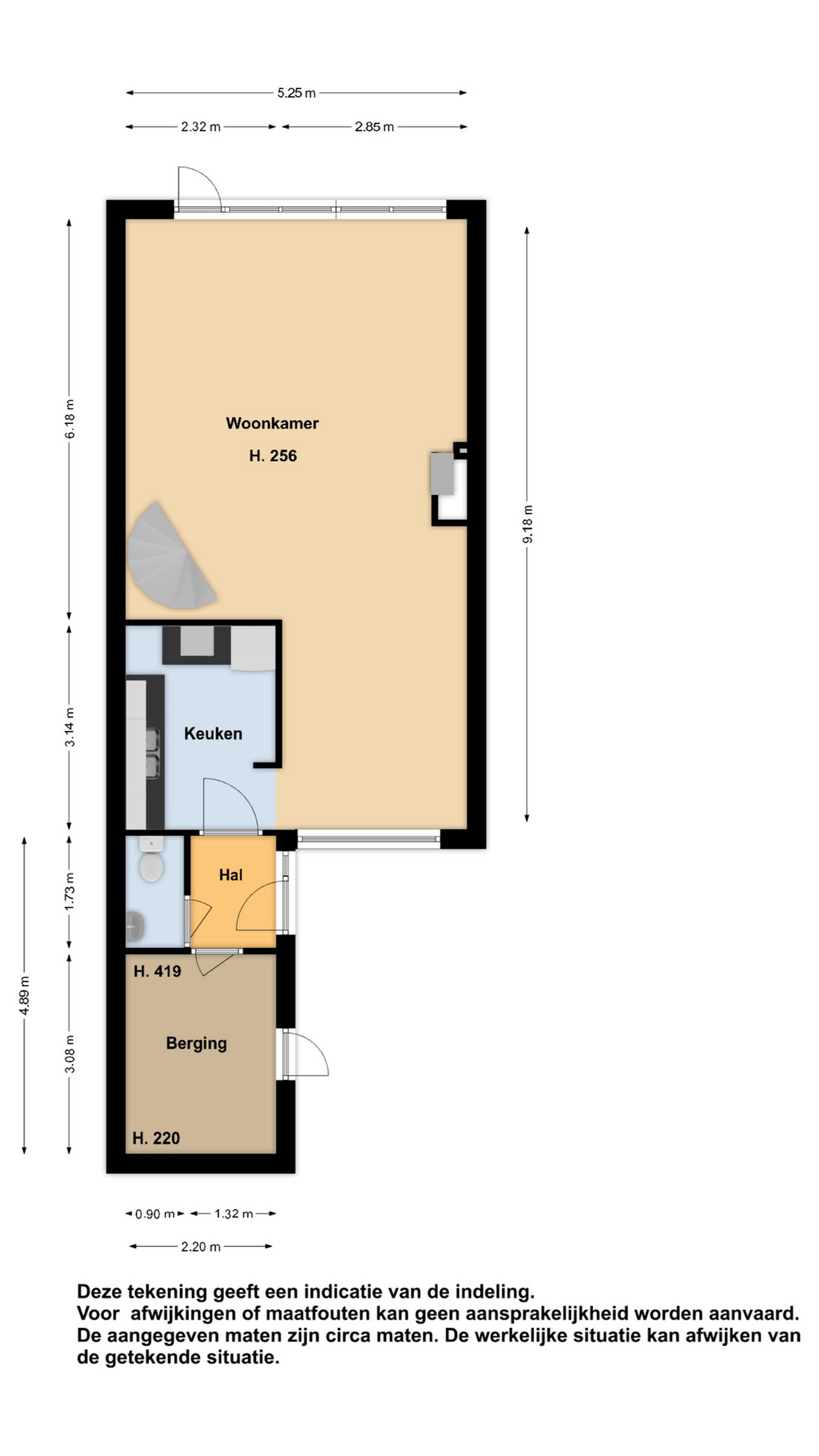
Begane grond: via de entree aan de voorzijde komt u in de hal met toiletruimte met closet en fonteintje. Via de hal kunt u de berging bereiken.
Berging: aan de voorzijde van deze woning treft u een frontberging, waar u overtollige spulletjes een plekje kan geven, maar ook uw fiets kunt stallen. In deze berging is de meterkast aanwezig.
Bij binnenkomst vanuit de hal komt u gelijk in de keuken. De functionele keuken is in een rechte opstelling geplaatst. U heeft hier de mogelijkheid om in deze ruimte een keuken in L-opstelling of U-opstelling te plaatsen.
U heeft in deze woonkamer veel leefruimte tot uw beschikking! Het zitgedeelte van de woonkamer is aan de achterzijde gesitueerd en geeft u een fijne kijk op uw eigen tuin. U heeft, door de enorme pui aan de achterzijde, veel lichtinval in deze living.
De open haard zorgt tijdens de koude winterdagen voor gezellige en warme avonden. Op de wanden treft u onder meer behang aan en de vloer is voorzien van een PVC-vloer. De openslaande tuindeur aan de achterzijde geeft toegang tot de achtergelegen zonnige tuin op het zuiden!
Tuin: De achtertuin heeft een zuiden tuinligging, zodat u fijn in het vroege voorjaar al heerlijk van het zonnetje kunt genieten! De tuin is nagenoeg volledig voorzien van sierbestrating met een aantal borders met vaste beplantingen.
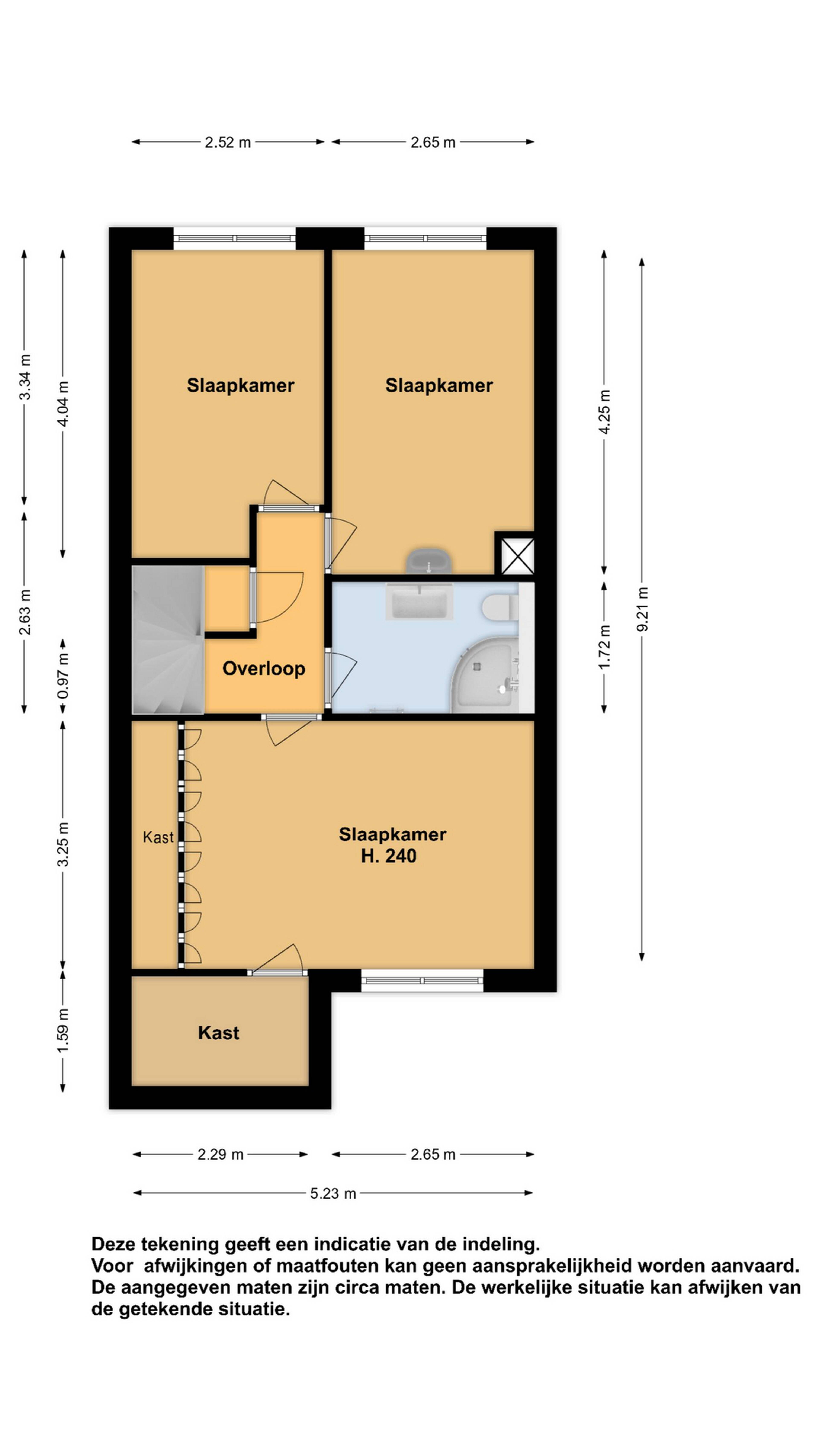
1e verdieping: op de 1e etage zijn naast de ruime overloop 3 slaapkamers van verschillende afmetingen aanwezig. Kenmerkend voor een woning van dit type is dat de slaapkamers allen recht opgetrokken wanden hebben, zodat u veel ruimte in de slaapkamers heeft. U kunt hierdoor ook in alle slaapkamers een 2-persoonsbed kwijt! De slaapkamer aan de voorzijde van de woning is voorzien van een vaste kast, maar geeft ook toegang naar een extra bergruimte, waar u ook nog kasten kunt plaatsen. De kamers zijn allemaal voorzien van een laminaatvloer.
De keurige badkamer is volledig betegeld in een licht warme kleurstelling. Deze badkamer is voorzien van een douchegelegenheid, wastafelmeubel en hangcloset. Uiteraard is er ook een designradiator geïnstalleerd. Het geheel ziet er netjes uit.
2e verdieping: de 2e etage is met een vaste trap bereikbaar. Op deze verdieping treft u de overloop met de CV-opstelling. Bovendien kunt u hier prima uw wasmachine een plaatsje geven. Een 4e ruime slaapkamer is reeds aanwezig. Deze slaapkamer is fijn verwarmd en voorzien van een dakvenster. Uiteraard is deze ruimte ook perfect om als grote hobbyruimte te gebruiken! U heeft nog voldoende bergruimte op deze verdiepingsvloer tot uw beschikking.
Bijzonderheden:
De woning is deels voorzien van kunststof kozijnen en kunststof gevelbekleding! Deze woning is uiteraard ook voorzien van een bouwkundige inspectie, die wij bij de bezichtiging aan u zullen overhandigen!
De woning wordt verkocht bij inschrijving onder gunning vanaf € 315.000,--.
RE/MAX makelaar Han van Wijk begeleidt u graag bij de bezichtiging.
De inschrijving eindigt op dinsdag 11 februari 2025 om 17.00 uur.
Bouwjaar: 1978
Inhoud: ca. 505 m³
Woonoppervlakte: ca. 132 m²
Externe bergruimte: ca. 7 m²
Perceeloppervlakte: 221 m²