FRAAI AFGEWERKTE TUSSENWONING!
Op een fijne stek ligt deze fraaie TUSSENWONING met BIJKEUKEN, BERGING en RUIME OVERKAPPING! De woning heeft een luxe moderne keuken, 3 slaapkamers op de 1e verdieping, luxe moderne badkamer en een 4e slaapkamer op de 2e verdieping. De woning heeft een trendy afwerking. Komt u maar eens kijken! Centraal gelegen in de nabijheid van winkelcentrum, scholen, park en NS station. De woning is helemaal af! U kunt er zo in!
De woning wordt verkocht bij inschrijving onder gunning vanaf € 335.000,--.
RE/MAX makelaar Han van Wijk begeleidt u graag bij de bezichtiging.
De inschrijving eindigt op vrijdag 14 maart 2025 om 17.00 uur.
Beelden vertellen u meer dan tekst. Wij verwijzen u dan ook graag naar onze video, de Matterport presentatie én de interactieve video op onze site. U krijgt hierbij een video introductie, een videovlucht om én door de woning en maar liefst meer dan 75 foto’s van het object. U kunt de woning ook op een virtuele wijze bekijken. Dit kan met een VR bril, die wij bij de bezichtiging aan u zullen verstrekken, voor de ultieme beleving!
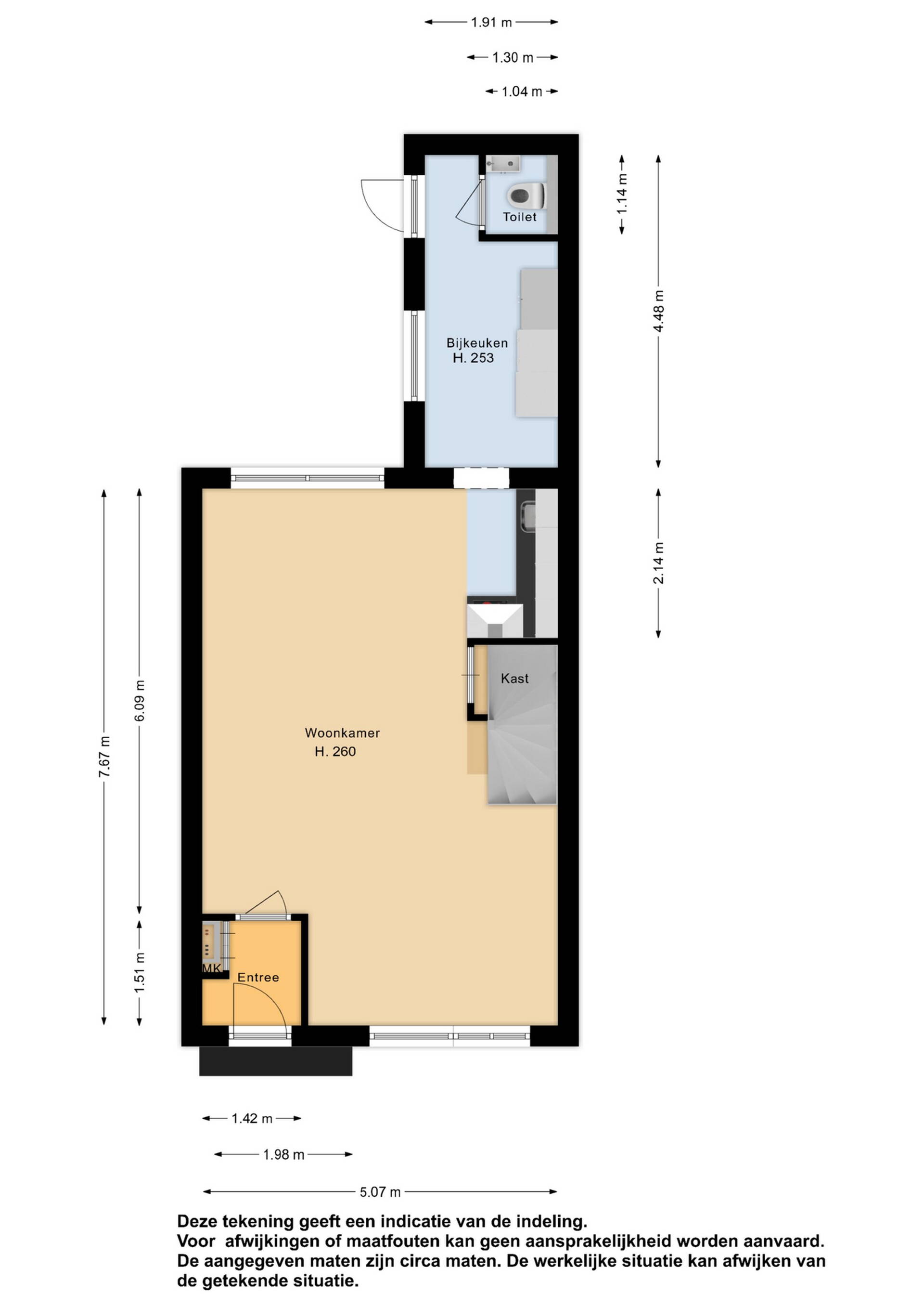
Begane grond: via de entree aan de voorzijde komt u in de hal met vaste kast met garderoberuimte en meterkast.
De speelse indeling van de woonkamer is één van de leuke aspecten van deze woning. Door de vormgeving heeft u veel leefruimte tot uw beschikking. U kunt ook op diverse wijzen uw interieur indelen. De wanden van de woonkamer zijn met stucwerk afgewerkt. Op de vloer is een trendy laminaatvloer gelegd en het plafond is voorzien van strak stucwerk met Amsterdamse plint. Aan de achterzijde van deze woning treft u het eetgedeelte.
De moderne en luxe keuken in L-opstelling is in een hoogglans kleurstelling uitgevoerd en voorzien van een afzuigkap en inductiekookplaat. Door de vormgeving heeft u voldoende werkruimte tot uw beschikking. In de aangebouwde bijkeuken loopt de keuken extra door. Hierdoor heeft u ook extra bergruimte tot uw beschikking.
Bijkeuken: in de bijkeuken treft u nog een vaatwasser, combimagnetron en een Amerikaanse koelkast aan. In deze bijkeuken is eveneens de moderne toiletruimte met hangcloset en fonteintje aanwezig. Vanuit deze bijkeuken kunt u de achtergelegen tuin bereiken.
Tuin: aan de achterzijde van de woning is een flinke tuin aanwezig die volledig voorzien is van sierbestrating. De fijne tuin heeft door de vormgeving en diepte heerlijk het zonnetje in de tuin staan.
Berging: achterop het perceel is een stenen berging met grote overkapping aanwezig. Via een poort aan de achterzijde heeft u toegang tot deze overkapping. Hier kunt u prima uw motorfietsen een plaatsje geven. Voor het opbergen van uw tuinmeubelen en fietsen kunt u uiteraard ook gebruik maken van de overkapping, zodat u de berging als extra klusruimte kunt gebruiken! Er is immers ook elektra in de berging aanwezig!
1e verdieping: via de woonkamer bereikt u de 1e verdieping. Naast de overloop met vaste kast en de badkamer zijn hier een drietal slaapkamers van verschillende afmetingen gesitueerd. De slaapkamers zijn allen voorzien van een modieuze laminaatvloer. Door de recht opgetrokken wanden heeft u veel ruimte tot uw beschikking. Alle slaapkamers zijn keurig afgewerkt.
De volledig betegelde luxe badkamer is met moderne materialen afgewerkt en voorzien van een ligbad, douchegelegenheid, wastafelmeubel en een hangcloset. Uiteraard is de badkamer voorzien van vloerverwarming.
2e verdieping: via een vaste trap bereikt u de 2e verdieping. Hier treft u op de voorzolder extra bergruimte aan. Via de overloop kunt u de 4e slaapkamer bereiken. In een vaste kast is hier de HR CV combiketel geïnstalleerd. Daarnaast kunt u hier uw wasmachine een plaatsje geven. Door de ruimte is het een prachtige tienerkamer met een dakraam. Verder heeft u achter de knieschotten voldoende opbergruimte.
Bijzonderheden:
De woning wordt verkocht bij inschrijving onder gunning vanaf € 335.000,--.
RE/MAX makelaar Han van Wijk begeleidt u graag bij de bezichtiging.
De inschrijving eindigt op vrijdag 14 maart 2025 om 17.00 uur.
Bouwjaar: 1982
Inhoud: ca. 383 m³
Woonoppervlakte: ca. 107 m²
Externe bergruimte: ca. 6 m²
Perceeloppervlakte: 162 m²