Betaalbaar en fraai hoekappartement met eigen parkeerplaats op een heerlijke centrale ligging in het dorp.
Deze maisonnette (een etagewoning waarbij de woon- en de slaapverdieping boven elkaar liggen) ligt op de eerste en de bovenste verdieping van het kleinschalige appartementencomplex “Dolomiti” met 3 woonlagen en slechts 24 appartementen.
Het is gebouwd op het terrein van het voormalige horecabedrijf “Dolomiti” en daarvoor deed het dienst als “De Landbouw”, een prachtig café met danszaal erachter.
In 2006 is dit fraaie en statige appartementencomplex gerealiseerd aan de gezellige Streekweg nabij het centrum en aan doorgaand vaarwater.
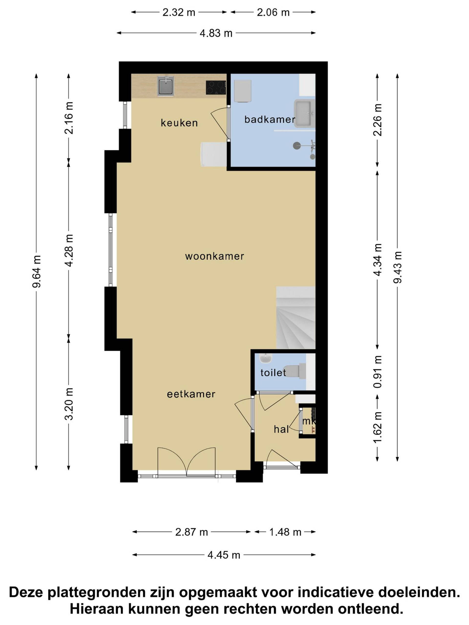
Het 2-kamer appartement ligt op de zonnige zuidoosthoek en is keurig afgewerkt en uitstekend geïsoleerd. Het beschikt over een ruime woonkamer met openslaande deuren, een open keuken en een badkamer op de eerste verdieping. Op de tweede verdieping bevindt zich de ruime slaapkamer. Er is dus geen sprake van bovenburen.
U bent van harte welkom voor een bezichtiging. Dit kan ook in het weekend.
Jolanda Keijzer, de exclusieve makelaar van deze woning, leidt u graag rond en neemt alle tijd voor u!
Via de galerij op de 1e verdieping bereikt u de entree van de woning op de hoek van het complex. In de hal bevinden zich de garderobe, de meterkast en het toilet.
De ruime woonkamer is voorzien van een fraaie Multigarant houten vloer met openslaande deuren, alsmede zijramen op het zuiden en een open keuken.
Dankzij de vele raampartijen is er sprake van een maximale lichtinval.
De naast de keuken gelegen badkamer is in een moderne kleurstelling betegeld en biedt naast de douchecabine en wastafelmeubel ook ruimte voor de cv ketel (vernieuwd in 2021) en de wasmachine-aansluiting.
Op de bovenste verdieping is de royale slaapkamer gelegen die voorzien is van dezelfde fraaie houten vloer als beneden. Deze kamer heeft een hele leuke uitstraling en is heerlijk licht door de 2 dakramen en een klein rond raampje in de kopgevel. Aan de rechterzijde is een handig verrijdbaar kastensysteem.
Op de begane grond heeft u een eigen separate berging met voldoende ruimte voor 2 fietsen.
Aan het doorgaande vaarwater kunt u gezellig BBQ-en bij de door de Vereniging van Eigenaren aangeschafte stenen BBQ met picknicktafel en kunt u van hieruit vertrekken voor een vaartochtje door de Westfriese wateren.
Bijzonderheden:
- Bouwjaar 2006
- Volledig geïsoleerd tijdens de bouw
- Energielabel A
- Eigen parkeerplaats en berging
- Aan doorgaand vaarwater
- Centrale ligging nabij winkelcentrum, uitvalswegen en NS-station
- Servicekosten slechts € 38,- per maand
- Gezonde Vereniging van Eigenaren
- Direct beschikbaar