Droomwoning nabij Amsterdam!
In het charmante dorp Limmen wordt een unieke, VRIJSTAANDE WONING in de elegante jaren '30 stijl gerealiseerd, perfect gelegen op een hoeklocatie. Deze woning biedt het beste van twee werelden: de nabijheid van Amsterdam en de serene schoonheid van de kustlijn, met duinen en stranden op slechts een korte fietstocht verwijderd.
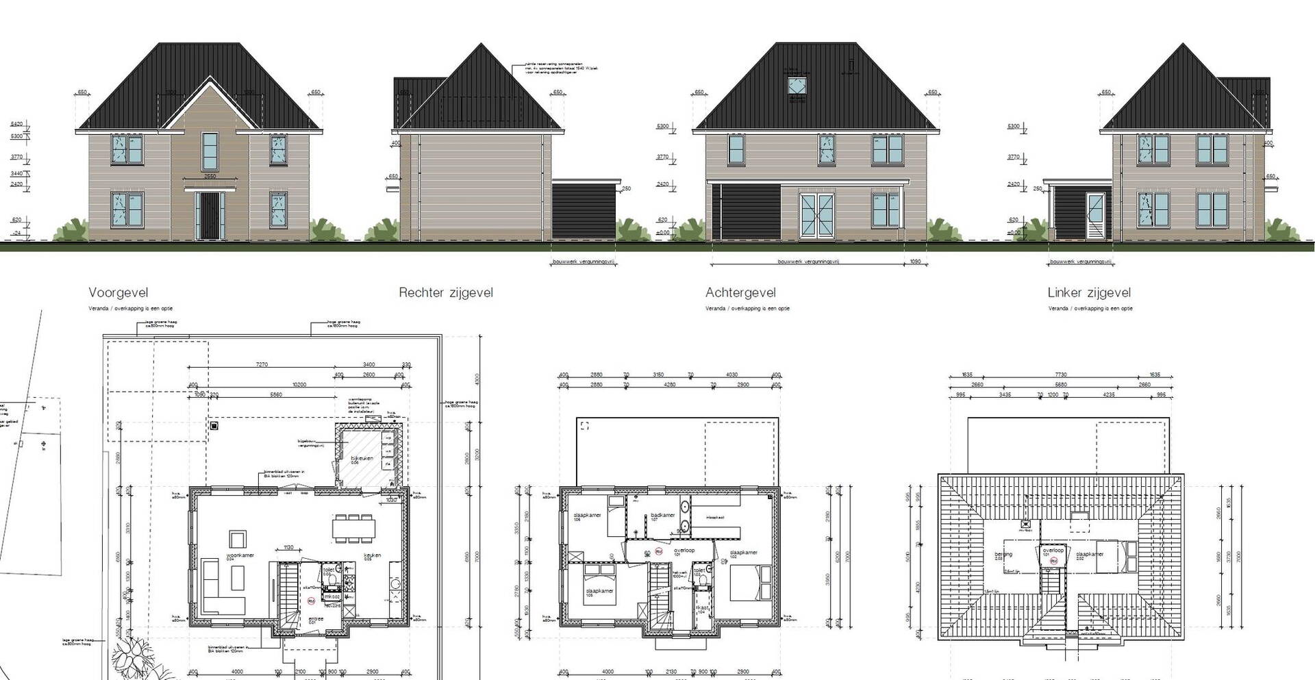
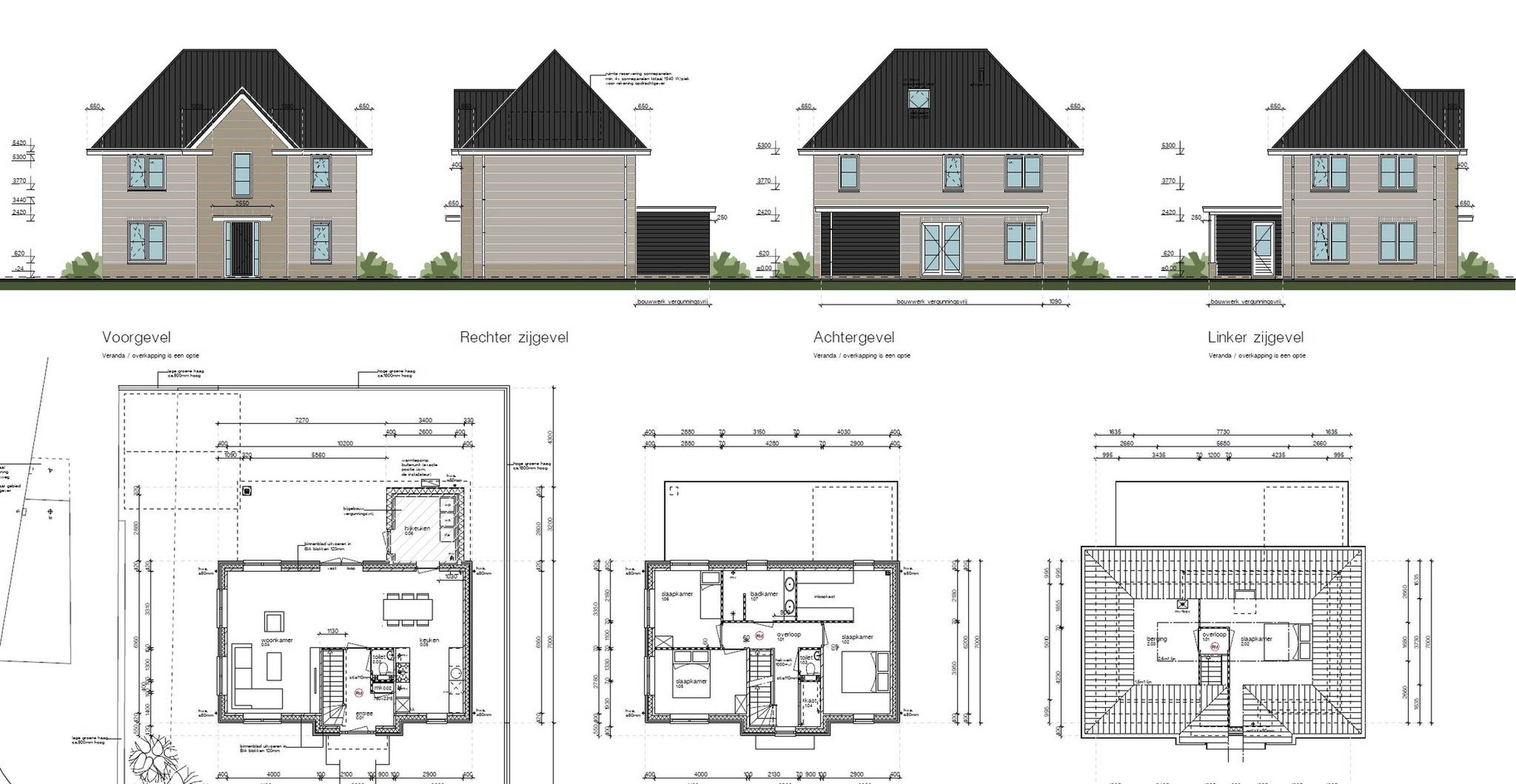
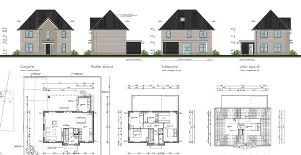
De ruime overstekken, de keuze voor een fraaie luxe donkere steen en het samengestelde dak geeft deze woning een machtige uitstraling. De woning heeft 4 tot 5 ruime slaapkamers, een woonkamer met openslaande tuindeuren en een echte woon/leefkeuken. Een zeer fraai ontwerp met leuke details!
Gebouwd door het gerenommeerde bouwbedrijf Toolstra, de woning is helemaal up-to-date met betrekking tot de isolatievoorzieningen en wordt gasloos opgeleverd. De moderne Lucht/Water Warmte pompinstallatie zal u in combinatie met de vloerverwarming in de gehele woning veel comfort bieden. Ook in de winter zal het systeem prima functioneren, hetzelfde systeem wordt immers in Scandinavische landen momenteel veel toegepast. Wilt u meer informatie over deze moderne woning? Wij willen u graag verder informeren.
De woning wordt verkocht met een vraagprijs van € 775.000,--.
RE/MAX makelaar Han van Wijk begeleidt u graag bij de bezichtiging.
Begane grond: via de fraaie entree komt u in de hal met garderoberuimte, meterkast, toegang tot de woonkamer en toegang tot de bovenliggende etages. Bovendien treft u hier het moderne toilet met fonteintje aan.
De living met openslaande tuindeuren aan de achterzijde is een heerlijke plek om te vertoeven. U heeft door de praktische ruimte vele indelings- en gebruiksmogelijkheden. Bovendien door de hoeklocatie ook een fraai uitzicht naar buiten toe! De vloer is voorzien van comfortabele CV vloerverwarming. De wanden worden glad afgewerkt en behangklaar opgeleverd.
De woning wordt exclusief een keuken opgeleverd. De positie van de keuken biedt u de mogelijkheid hier een echte woon/leefkeuken te realiseren! U kunt hier immers een grote stamtafel kwijt! Vanuit de keuken heeft u zicht op de straat aan de voorzijde.
Bijkeuken / berging: direct achter de woon/leefkeuken is een inpandig bereikbare berging/bijkeuken gesitueerd. Hier kunt u ook prima uw wasmachine en/of wasdrogeropstelling kwijt. Tevens is hier de lucht/water warmte pomp installatie gesitueerd. U kunt de achtertuin ook via de berging/bijkeuken bereiken.
Tuin: u kunt de tuin geheel naar uw eigen ontwerp inrichten. De woning is zodanig op de kavel gesitueerd dat de woning volledig vrijstaand is! Zeer plezierig is natuurlijk de optie om een veranda mee te laten leveren, waaronder u heerlijk kunt loungen!
1e verdieping: via de hal komt u op de 1e etage. Naast de overloop met grote bergkast zijn er op de 1e verdieping 3 ruime slaapkamers van verschillende afmetingen aanwezig. De indeling van de slaapkamers zijn speels en u kunt in alle 3 de slaapkamers een 2-persoonsbed kwijt! Eventueel kunt u hier ook 4 slaapkamers realiseren. Tezamen met de 2e etage komt u dan zelfs op 5 slaapkamers totaal! De hoofdslaapkamer biedt u de ruimte om hier een fijne walk-in closet in te richten.
De woning wordt geleverd met een badkamer in een moderne lichte kleurstelling. In deze badkamer zal een dubbele wastafel, douchegelegenheid en 2e toilet aanwezig zijn. Persoonlijke wensen kunnen vanzelfsprekend nog in het ontwerp worden meegenomen.
2e verdieping: de 2e verdieping betreft een flinke ruimte die met een vaste trap bereikbaar is. Op deze etage kunt u ook eenvoudig een 4e of 5e slaapkamer realiseren! Het dakraam is reeds aanwezig! Daarnaast heeft u voldoende ruimte om extra bergruimte in gebruik te nemen.
Bijzonderheden:
De woning wordt verkocht met een vraagprijs van € 775.000,--.
RE/MAX makelaar Han van Wijk begeleidt u graag bij de bezichtiging.
De woning wordt sleutel klaar, inclusief een basis badkamer, basis toilet, nutsvoorzieningen, aansluiting op het riool en vergunningen geleverd. Ook wordt het hang en sluitwerk geleverd met Politiekeurmerk “Veilig Wonen”. De afwerking is, zoals u mag verwachten van bouwbedrijf Toolstra B.V., van hoge kwaliteit.
Er worden 4 stuks zonnepanelen meegeleverd ( totaal 1600 Wp ).
Het binnen schilderwerk, het plaatsen van een keuken, het aanvullen van grond, het inrichten van de tuin en het plaatsen van een erfafscheiding zijn zaken die u zelf kunt ( laten) uitvoeren.
U kunt vanzelfsprekend ook nog extra individuele wensen aangeven, welke nog in het ontwerp kunnen worden verwerkt.
Limmen heeft een rijk verenigingsleven met onder meer diverse sportverenigingen en ook diverse jaarlijks terugkerende evenementen. De basisschool is in het dorp aanwezig en het voortgezet onderwijs een dorp verderop in Castricum. Voorzieningen als supermarkten zijn eveneens aanwezig.
De woning ligt centraal in Limmen, maar toch op slechts enkele kilometers afstand van de kust en duinen, ideaal voor liefhebbers van rust, natuur en ruimte. Steden, naburige dorpen en openbaar vervoer zijn gemakkelijk bereikbaar; Alkmaar ligt op korte afstand (7 km), terwijl de treinstations en winkelcentra van Castricum en Heiloo binnen fietsbereik liggen. De Randstad is snel te bereiken via de A9.
Bouwjaar: 2023
Inhoud: ca. 638 m³
Woonoppervlakte: ca. 155 m²
Inpandige bergruimte: ca. 7 m²
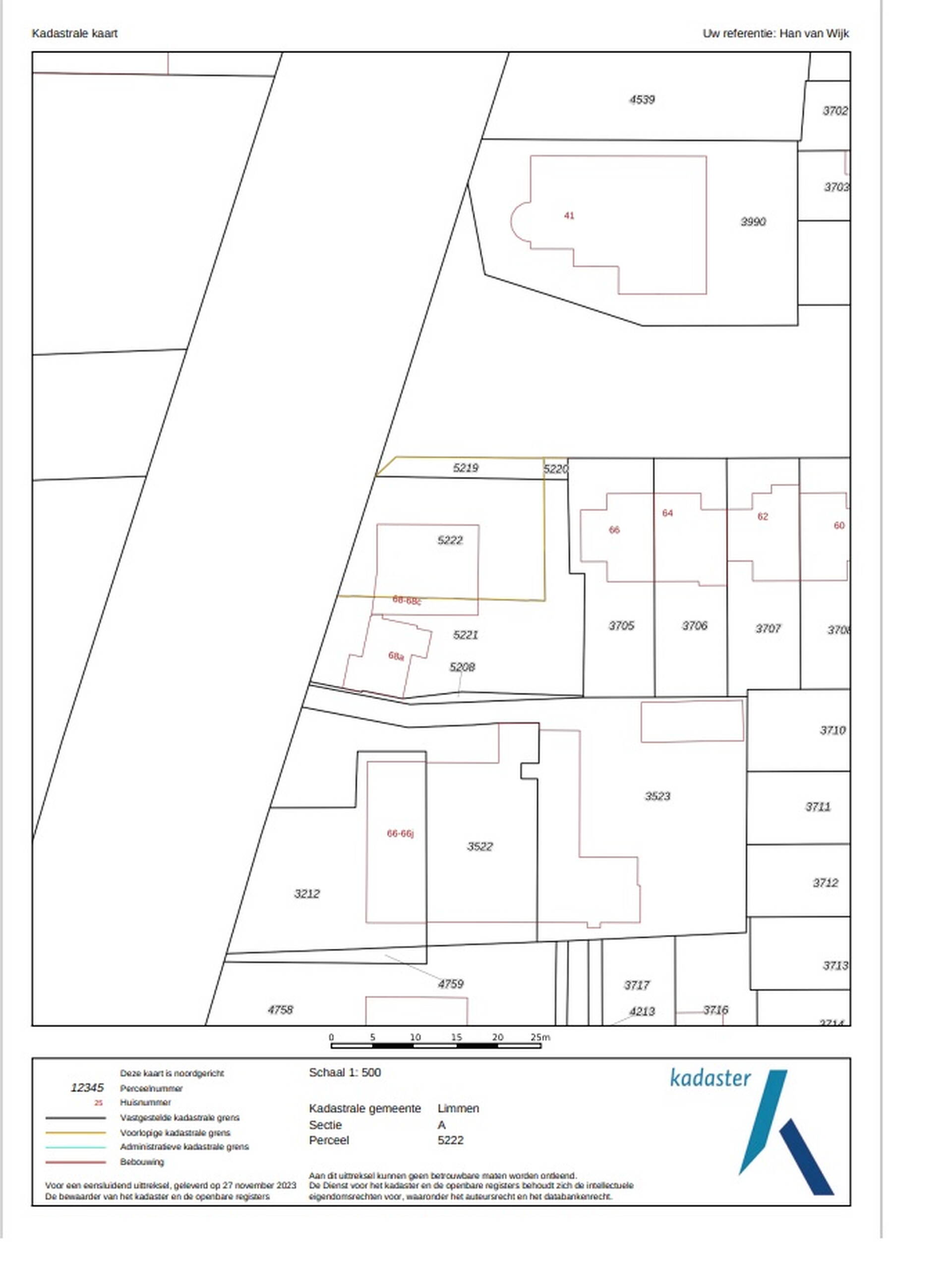
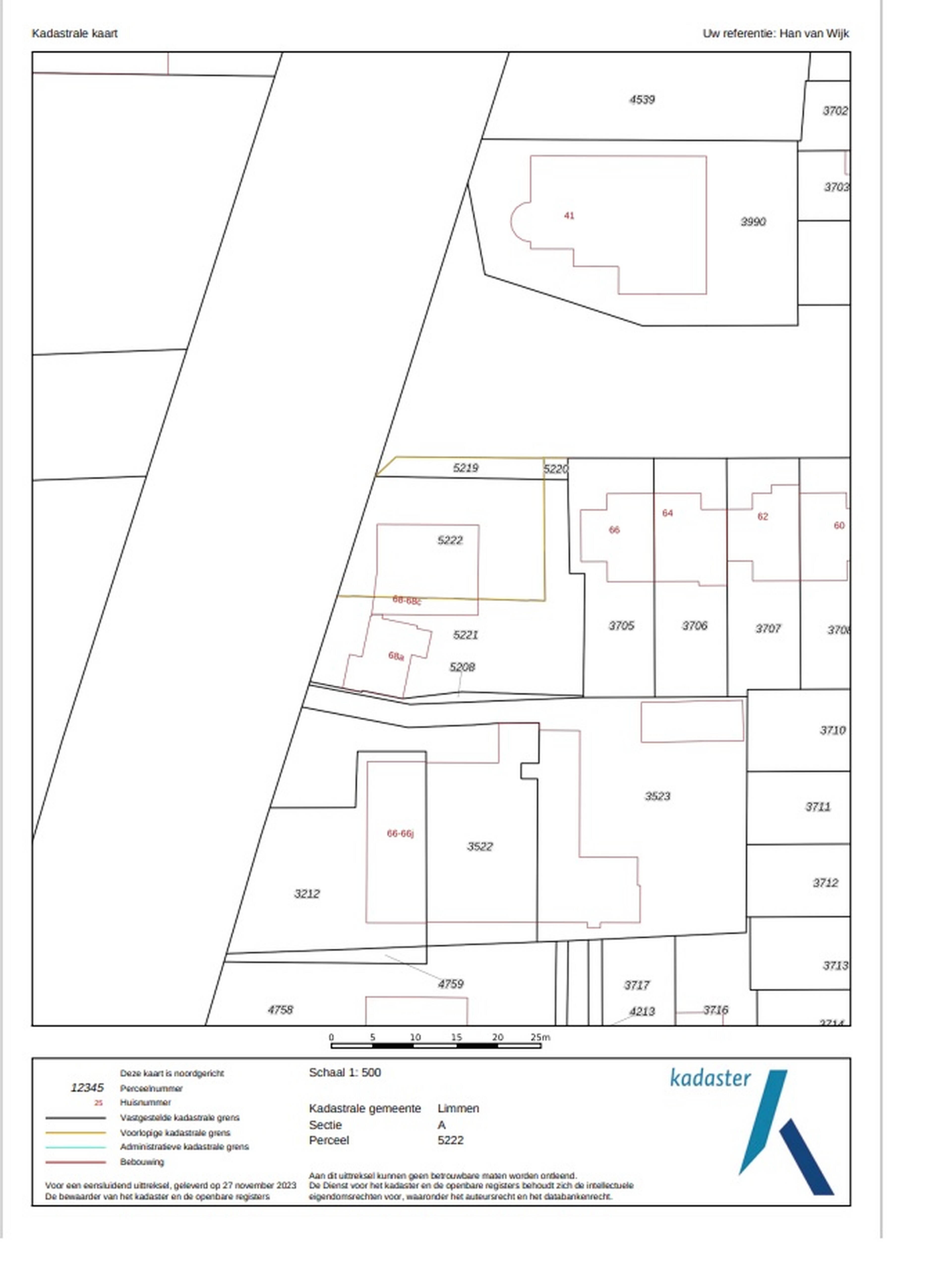
Perceeloppervlakte: 374 m² (voorlopig)