Een royale uitgebouwde 2 onder 1 kap woning met 4 slaapkamers, vloerverwarming, een nagenoeg nieuwe keuken (2024), volop parkeergelegenheid, een eigen garage en ruime extra berging met 2e garagedeur, een grote tuin aan de voor-, zij- en achterkant van de woning en ook nog eens aan doorgaand vaarwater in het mooiste en gezelligste dorp van West-Friesland. Wat valt er nog meer te wensen? Deze woning is echt helemaal af en u kunt er zo in.
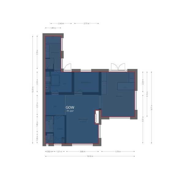
INDELING BENEDEN:
Als we de voortuin inlopen springt al gelijk de zeer verzorgde voortuin met groot grasveld in het oog, die met een laag en strak sierhekwerk omgeven is. De kids kunnen hier naar hartenlust in ravotten of klimmen en klauteren op een speeltoestel met schommel of lekker voetballen.
Bij het binnengaan van de woning door de voordeur komen we terecht in de hal met kelderkast, het toilet met vrijhangend wandcloset en fonteintje, trapopgang naar de bovenverdieping en toegang tot de woonkamer. De gehele benedenverdieping is in 2019 voorzien van een nieuwe schuimbetonvloer met vloerverwarming en een strakke pvc-vloer in een warme houtlook. De woonkamer wordt gekenmerkt door grote raampartijen waardoor er veel licht de woning binnenvalt. Samen genieten op een grote hoekbank kijkend naar de centraal geplaatste schouw met ruimte voor een ingebouwde tv of genieten van de op afstand bedienbare sierhaard die achterblijft in de woning.
Op de benedenverdieping treffen we ook een wasruimte/bijkeuken aan met grote lichtkoepel waar de was- en droogopstelling zijn plaats heeft gekregen in een fraai afgewerkte en functionele kastenwand. De wasruimte biedt ook toegang tot de zonnige achtertuin met garage en royale extra berging met een 2e garagedeur, maar daarover later meer. Eerst wil ik het nog met u hebben over de badkamer, die is namelijk ook op de benedenverdieping gesitueerd en voorzien van een ligbad met jacuzzi functie, een badkamermeubel met dubbele wasbakken incl.2 spiegels en een inloopdouche met thermostaatkraan en grote regendouche. De benedenverdieping heeft ook een riante slaapkamer waar u met gemak een tweepersoonsbed kwijt kunt en behoort volledig gelijkvloers wonen tot de mogelijkheden. Ook kunt u uiteraard de beneden slaapkamer omtoveren tot studeerkamer of kantoor zodat in alle rust kunt thuiswerken.
KEUKEN:
De keuken met openslaande tuindeuren is net als de slaapkamer beneden, wasruimte en badkamer in het uitgebouwde gedeelte van de woning gerealiseerd en is nagenoeg nieuw (2024). De keuken met kook- en spoeleiland heeft een strakke moderne donkere kleurstelling en is voorzien van de nieuwste en meest moderne apparatuur zoals een inductiekookplaat, design afzuigkap, koel/vries combinatie, vaatwasser en combioven.
BOVEN VERDIEPING:
Op de bovenverdieping treffen we 3 slaapkamers aan, allemaal verschillend van formaat, waarbij er bij de meest compacte kinderkamer slim omgegaan is met de beschikbare ruimte door middel van hangende kasten en extra bergruimte is gecreëerd middels een soort compacte vide, die met aparte ladder bereikbaar is.
Boven hebben we ook nog een 2e toiletruimte met radiator, vrijhangend wandcloset en een wastafelmeubel met warm- en koud water. In de hal op de bovenverdieping zit ook nog een luik naar de in de punt van het dak gerealiseerde geïsoleerde vliering/wegzet waar u de nodige spulletjes kwijt kunt.
DE TUIN:
Doordat de tuin de woning aan 3 kanten omsluit, is er altijd wel ergens een lekker plekje te vinden waar u beschut of juist lekker van de zon kunt genieten, uiteraard kan dit ook op het aan het doorgaande vaarwater gelegen terras waar u zomers kunt genieten van de langsvarende bootjes. De achtertuin is te bereiken is via de zij- of achteringang aan de kant van het naastgelegen parkeer terrein of via de ruime garage. Achter de garage is nog een aangebouwde berging gerealiseerd met een grote garagedeur zodat u ook hier in alle rust uw hobby of klussen kunt uitvoeren.
INSTALLATIE:
De elektrische installatie heeft meer dan genoeg groepen, dag en nacht tarief en meerdere aardlekschakelaars.
Warm water en verwarming wordt geleverd door de Vaillant VHR NL 30/-34/5-5L ecoTEC plus CV ketel uit 2018.
VOORZIENINGEN:
Alle voorzieningen zoals speeltuinen, basisscholen, middelbare school, kinderopvang, supermarkten en sportvelden zijn op loopafstand bereikbaar. Het moderne overdekte winkelcentrum "Streekhof" en het NS-station zijn ook op enkele fietsminuten bereikbaar.
***KOM EN KIJK***
Op dinsdag 4 maart 2025 van 16:00 uur tot 17:00 uur en zaterdag 8 maart 2025 van 14:00 uur tot 15:00 uur kunt u tijdens de KOM en KIJK vrijblijvend zonder afspraak de woning bezichtigen.
RE/MAX makelaar Wesley Boode begeleidt u graag bij een bezichtiging.
De woning wordt verkocht bij inschrijving onder gunning met een bieden vanaf prijs van € 445.000,-.
De inschrijving eindigt op vrijdag 14 maart 2025 om 16.00 uur.
Iedereen wordt op deze wijze in de gelegenheid gesteld om een bieding uit te kunnen brengen.
Beelden vertellen u meer dan tekst. Wij verwijzen u dan ook graag naar onze foto, video en 360° graden presentatie op onze site. U krijgt hierbij een video-introductie, een videovlucht om én door de woning en maar liefst meer dan 80 foto’s van het object.
Bouwjaar: 1956
Woonoppervlakte: ca. 111 m²
Externe berging ca. 22m²
Inhoud: ca. 407 m³
Perceeloppervlakte: 420 m²
Energielabel C