Starterswoning met mogelijkheden!
Deze fijne TUSSENWONING met DIEPE ACHTERTUIN ligt op een leuke plek in de wijk. De woning heeft 3 slaapkamers, eenvoudige keuken en functionele badkamer. Er zijn 8 zonnepanelen geplaatst. De woning ligt centraal ten opzichte van de winkels, school en sportfaciliteiten. Voor diegene, die een starterswoning voor een aantrekkelijke prijs zoekt, een zeer interessant voorstel!
De woning wordt verkocht bij inschrijving onder gunning vanaf € 215.000,--.
RE/MAX makelaar Han van Wijk begeleidt u graag bij de bezichtiging.
De inschrijving eindigt op dinsdag 11 oktober 2022 om 17.00 uur.
Iedereen wordt op deze wijze in de gelegenheid gesteld om een bieding uit te kunnen brengen.
De speciale inschrijfformulieren worden u tijdens een vrijblijvende bezichtiging uitgereikt.
Wij leiden u graag rond in deze woning. Dit kan ook ’s avonds of in het weekend!
Beelden vertellen u meer dan tekst. Wij verwijzen u dan ook graag naar onze video én Matterport presentatie ( interactieve video) op onze site. U krijgt hierbij een video introductie, een videovlucht om én door de woning en maar liefst meer dan 50 foto’s van het object.
U kunt de woning ook op een virtuele wijze bekijken. Dit kan ook met een VR bril voor de ultieme beleving!
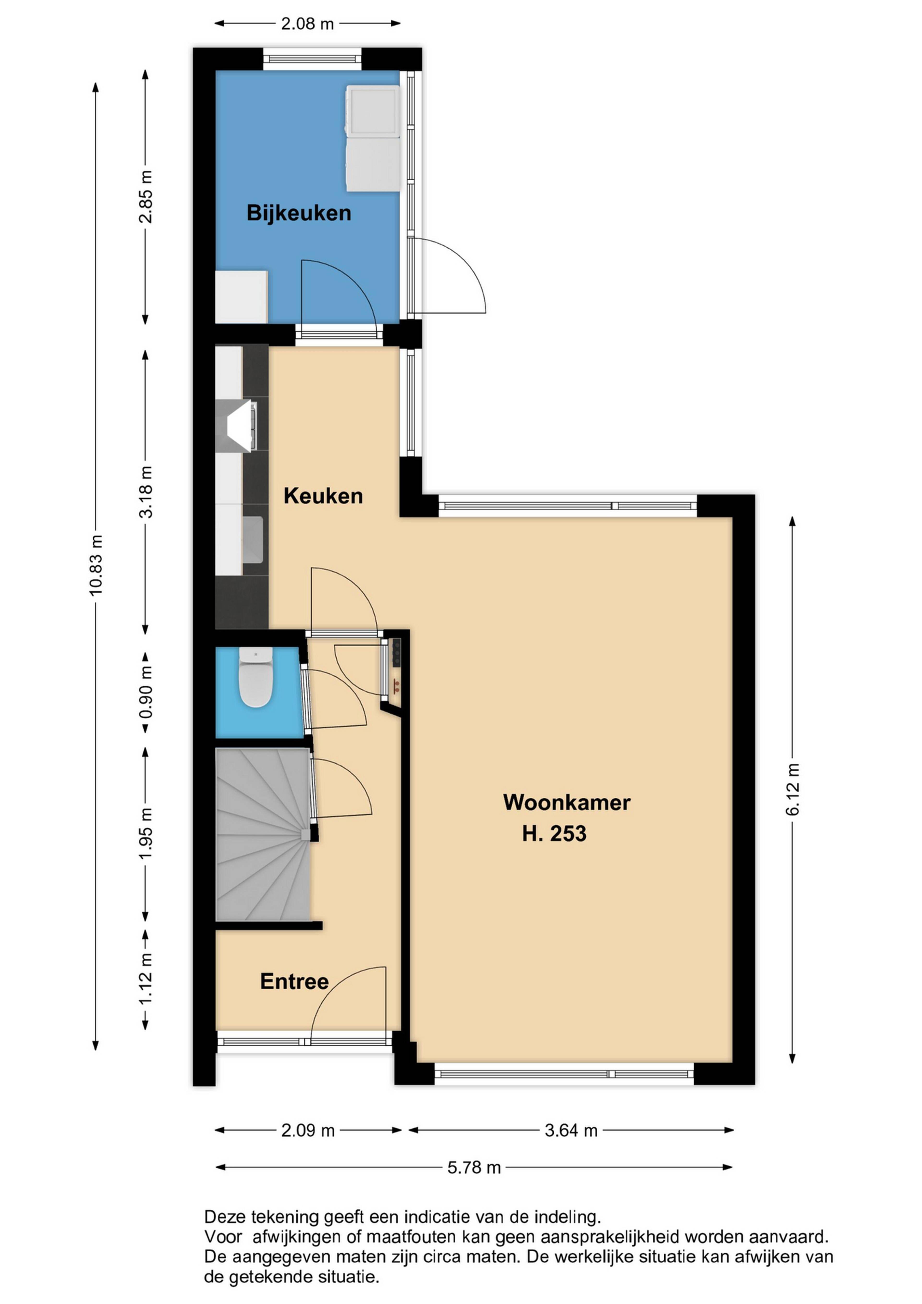
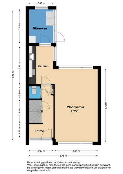
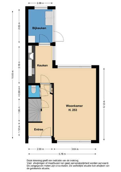
Begane grond: via de entree aan de voorzijde van de woning komt u in de hal met garderoberuimte, meterkast, trapkast en toilet. Ook heeft u via de hal toegang tot de woonkamer en middels de trapopgang de overige vertrekken op de 1e etage.
De woonkamer is zeer licht en zonnig door de grote raampartijen aan de voor- en achterzijde. Aan de voorzijde heeft u ruim zicht op de groenstrook. Aan de achterzijde heeft u fijn zicht op de diepe tuin gelegen op het zuiden. Door de praktische vormgeving kunt u op diverse wijzen uw interieur inrichten.
De functionele half open keuken is uitgevoerd in een lichte Ahorn kleurstelling. De rechte keuken is voorzien van een afzuigkap en een 4 pits gaskookplaat. U heeft lekker veel werk- en opbergruimte tot uw beschikking. Via de achterdeur in de keuken kunt u de bijkeuken bereiken.
Direct achter de keuken is de praktische bijkeuken gelegen. In de bijkeuken kunt u prima uw wasmachine of wasdroger een plaatsje geven. Hier is ook nog voldoende ruimte voor het plaatsen van een bijvoorbeeld een koel/vriescombinatie.
1e verdieping: op de 1e verdieping zijn, naast de overloop en de badkamer, 3 slaapkamers van verschillende afmetingen gesitueerd. Door de vormgeving van de woning heeft u de beschikking over recht opgetrokken wanden en hierdoor is er ook op deze verdieping veel ruimte aanwezig. Alle slaapkamers zijn voorzien van vaste kasten.
De volledig, in lichte kleurstelling, betegelde badkamer is voorzien van een ruime douchegelegenheid en een wastafelmeubel.
2e verdieping: u kunt de 2e verdieping met een vlizotrap bereiken. Het betreft een forse bergzolder op stahoogte. Op deze verdieping heeft u voldoende ruimte om extra spulletjes te plaatsen. De HR CV combiketel is eveneens op de 2e verdieping geïnstalleerd.
Tuin: de zeer diepe achtertuin heeft een fijne zonligging op het zuiden, waardoor u lekker lang van het zonnetje kunt genieten. De tuin is deels voorzien van bestrating en een border met vaste planten. Uiteraard ontbreekt een stukje gras hier ook niet. Via een poort onder de overkapping kunt u de achterliggende steeg bereiken.
Berging: in de tuin zijn twee bergingen aanwezig, die voldoende ruimte om fietsen, tuingereedschap of tuinmeubelen te plaatsen. Wilt u uw motor stallen? Geen probleem hier.
Bijzonderheden:
Het betreft een solide tussenwoning met 3 slaapkamers, zonnepanelen en een zeer diepe achtertuin gelegen op het zuiden.
De woning wordt verkocht bij inschrijving onder gunning vanaf € 215.000,--.
RE/MAX makelaar Han van Wijk begeleidt u graag bij de bezichtiging.
De inschrijving eindigt op dinsdag 11 oktober 2022 om 17.00 uur.
Iedereen wordt op deze wijze in de gelegenheid gesteld om een bieding uit te kunnen brengen.
De speciale inschrijfformulieren worden u tijdens een vrijblijvende bezichtiging uitgereikt.
Wij leiden u graag rond in deze woning. Dit kan ook ’s avonds of in het weekend!
Bouwjaar: 1962
Inhoud: ca. 313 m³
Woonoppervlakte: ca. 81 m²
Overige inpandige ruimte: ca. 9 m²
Externe bergruimte: ca. 19 m²
Gebouwgebonden buitenruimte: ca. 4 m²
Perceeloppervlakte: 225 m²