GROOT, GROTER, GROOTST!
RIANT wonen op een mooie plek in Wijdenes!
Deze riante VRIJSTAANDE WONING biedt u zeer veel mogelijkheden! De woning is uitermate geschikt als kangoeroe woning, heeft maar liefst 2 woonkamers en een grote woon/leefkeuken. Thans zijn er op de 1e etage reeds 5 slaapkamers aanwezig. Bovendien is de ruimte op de 1e etage zo riant dat u hier zelfs wel 8 (!) slaapkamers kunt realiseren! Wilt u aan huis werken of een Bed and Breakfast ? Ook hiervoor is zijn er voldoende mogelijkheden. Een ideale woning voor een zeer groot gezin of om kantoor/praktijk of beide aan huis te hebben.
De woning wordt verkocht bij inschrijving onder gunning vanaf € 525.000,--.
RE/MAX makelaar Han van Wijk begeleidt u graag bij de bezichtiging.
In verband met het Corona virus (voor uw en onze veiligheid) doen wij geen bezichtigingen zonder afspraak en met maximaal 4 personen en volgens de RIVM richtlijnen.
De inschrijving eindigt op maandag 8 november 2021 om 17.00 uur.
Iedereen wordt op deze wijze in de gelegenheid gesteld om een bieding uit te kunnen brengen.
De speciale inschrijfformulieren worden u tijdens een vrijblijvende bezichtiging uitgereikt.
Wij leiden u graag rond in deze woning. Dit kan ook ’s avonds of in het weekend!
Beelden vertellen u meer dan tekst. Wij verwijzen u dan ook graag naar onze video én Matterport presentatie ( interactieve video) op deze site. U krijgt hierbij een video introductie, een videovlucht om én door de woning en maar liefst meer dan 75 foto’s van het object. U kunt de woning ook op een virtuele wijze bekijken. Dit kan ook met een VR bril voor de ultieme beleving!
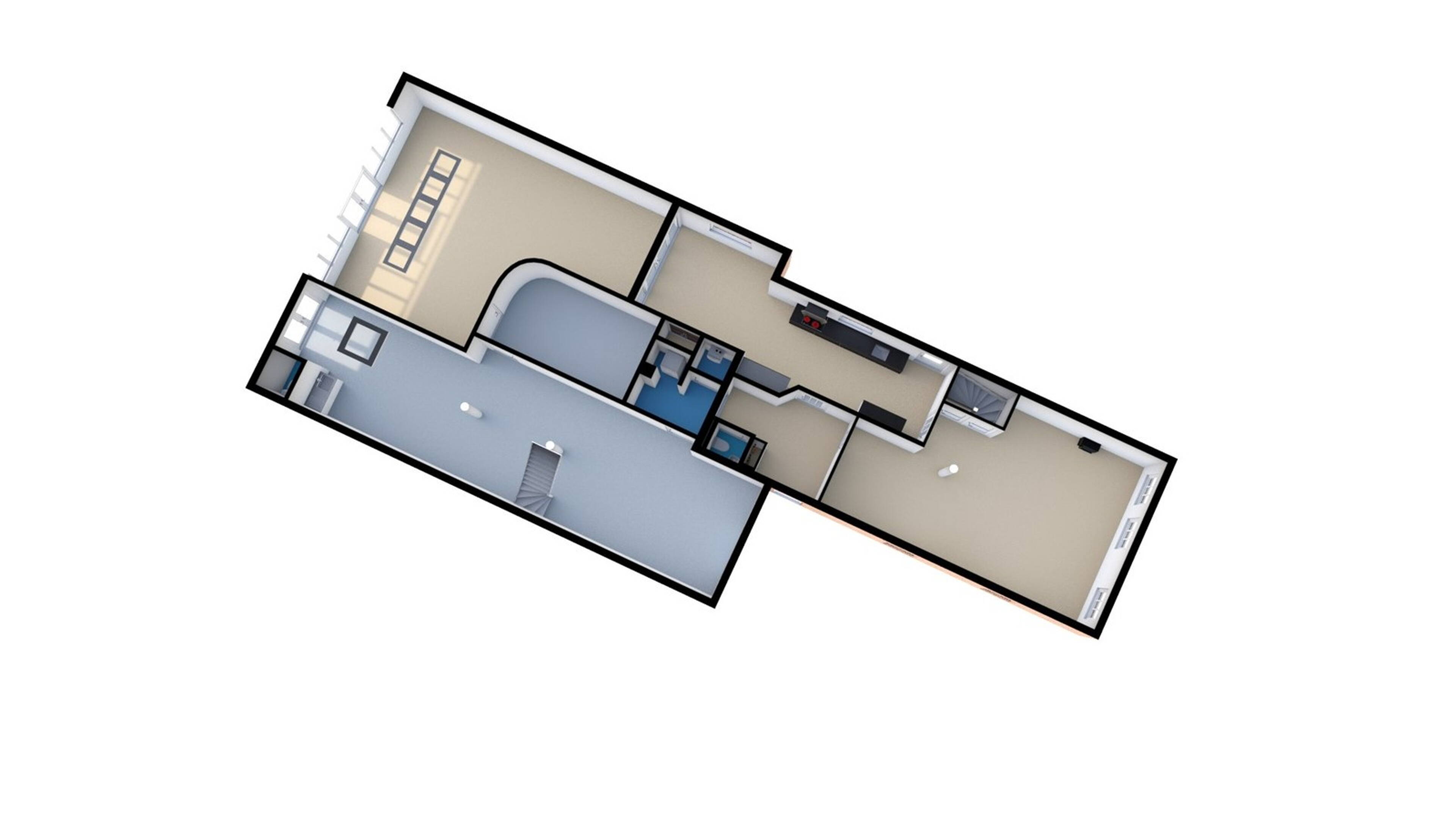
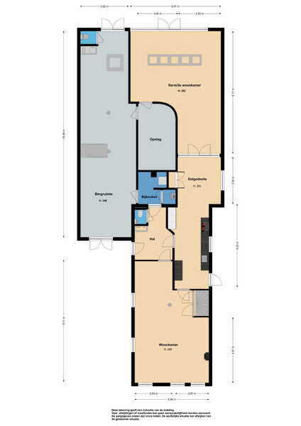
Begane grond: via de entree aan de zijkant van de woning komt u in de forse hal met garderoberuimte, meterkast en moderne toiletruimte met hangcloset en fonteintje. Vanuit de hal kunt u de woonkamer, de keuken en de bijkeuken bereiken.
U zult verrast zijn door de fijne sfeer in de ruime woonkamer! Door de vele ramen heeft u veel licht en zon in de woonkamer! Een heerlijke plek om te vertoeven. De woon/leefkeuken is ook verbonden aan de woonkamer. De living is voorzien van een glad gestuukt plafond en op de vloer treft u een houten visgraat parketvloer aan. De houtkachel staat garant voor gezellige avondjes! Ook via de woonkamer kunt u de 1e etage bereiken.
Direct naast de woonkamer is de woon/leefkeuken gelegen. De luxe nieuwe keuken is aan beide zijden van de ruimte opgesteld. U heeft ook veel opbergruimte ter beschikking. De keuken is uitgevoerd met een afzuigkap, inductiekookplaat, cooker, vaatwasser, koel/vriescombinatie en een hete luchtoven met stoomfunctie.
U heeft alle ruimte om in de keuken een eettafel te plaatsen.
Op de vloer vindt u een PVC vloer met vloerverwarming en de wanden en het plafond zijn strak gestuukt. De zijentree van de woning bevindt zich ook in de keuken.
2e woonkamer / kantoorruimte / chillruimte: vanuit de keuken kunt u een multifunctionele ruimte betreden. U kunt hier eenvoudig een 2e woonkamer (of danszaal) creëren. Maar uiteraard is deze ruimte eveneens geschikt voor een grote kantoorruimte. Wilt u liever een chillruimte voor de kinderen? Ook dat behoort nu tot de mogelijkheden! Deze ruimte is eveneens voorzien van strak gestuukte wanden en plafond. De vloer is afgewerkt met een PVC vloer. Aan de achterzijde heeft u een flinke pui met veel lichtinval in de woning. Bovendien is deze uitgevoerd met openslaande tuindeuren, waardoor u de achtertuin kunt bereiken. Op het dak is een lichtstraat aangebracht, waardoor u nog meer lichtinval in de ruimte heeft.
Opslagruimte: vanuit de 2e woonkamer / praktijkruimte/ chillruimte kunt u de opslagruimte of magazijntje bereiken. Deze ruimte kunt u ook eenvoudig bij de berging betrekken, waardoor er nog meer klusruimte aanwezig is.
Berging: de inpandige berging is ca. 55 m² en extra voorzien van een 2e trapopgang naar de 1e verdieping. Deze bergruimte kunt u voor diverse doeleinden gebruiken. Klust u graag in huis? Dan heeft u hier een zee aan ruimte ter beschikking. Bovendien kunt u de ruimte nog opdelen in diverse ruimtes, waardoor u een extra werkruimte of salon aan huis kunt creëren. Aan de voorzijde vindt u openslaande deuren naar het oprijpad. Op het pad kunt u prima meerdere auto’s een plekje geven.
Aan de achterzijde heeft u openslaande tuindeuren naar de achtergelegen tuin. Daarnaast is deze ruimte uitgevoerd met een functionele toiletruimte en functioneel keukenblok. Aan- en afvoer zijn hier dus aanwezig. Hiermee wordt het ook kinderlijk eenvoudig om hier gelijkvloers wonen mogelijk te maken. De ruimte is meer dan groot genoeg voor een slaapkamer en badkamer parterre. En omdat er ook rechts naar de woning een stuk grond aanwezig is, kunt u ook buitenom het achtererf bereiken. Doordat in de ruimte een vaste trap ter beschikking is, kunt u ook boven uw kantoorruimte maken en de klanten via een eigen entree ontvangen. Middels deze ruimte kunt u ook de bijkeuken bereiken.
Bijkeuken: direct naast de berging is de praktische bijkeuken gelegen. Hier kunt u bijvoorbeeld ook uw wasmachine opstelling kwijt. In een aparte ruimte is hier ook de CV combiketel geïnstalleerd.
Tuin: de achtergelegen diepe tuin is onder meer voorzien van sierbestrating. Achter in de tuin is een robuuste veranda van Douglas hout geplaatst, waar u heerlijk met uw gezin, familie, vrienden en vriendinnen kunt vertoeven. Ook is hier een fijne extra berging gesitueerd. U heeft diverse vaste beplantingen en bomen in de tuin staan. Maar ook een stuk grasveld om fijn op te voetballen of te ravotten ontbreekt niet! Door de diepe tuin heeft u veel zonuren in de achtertuin! De achtertuin kunt u ook buitenom bereiken.
1e verdieping: de 1e verdieping kunt u zowel via de woonkamer als via de berging bereiken. Via de lange overloop kunt u de diverse ruimtes op deze verdieping betreden. Aan de voorzijde van de woning vindt u de ouderslaapkamer met een hoog opengewerkt plafond. Dit geeft deze slaapkamer een fijne ambiance. De 2e slaapkamer is voorzien van een dakkapel. Aan de achterzijde van de woning vindt u nog eens 3 zeer riante slaapkamers. Een van de slaapkamers geeft toegang naar het balkon aan de voorzijde van de woning. Alle slaapkamers zijn netjes afgewerkt en bieden veel licht door de vele dakramen die in de diverse kamers aanwezig zijn. Iedere slaapkamer heeft zo zijn speelse details! Bovendien kunt u met gemak in 4 van de 5 slaapkamers een 2 persoonsbed plaatsen. De slaapkamers zijn dermate groot dat u wel tot 8 slaapkamers kunt uitbreiden op deze verdieping! Middels een vlizotrap op de overloop kunt u de bergzolder bereiken.
De luxe badkamer is in een moderne kleurstelling uitgevoerd. In de badkamer treft u een inloopdouche aan met regendouche en handdouche, een wastafelmeubel met dubbele wastafel en een hangcloset. Uiteraard ontbreekt de design-radiator ook niet. Ook hier is de bijzondere hoogte aanwezig en zijn de dakconstructie balken in zicht, waardoor het een fijne ruimte is en een luxe ambiance geeft. Wat dacht u van een traditionele sauna? De aanwezigheid hiervan maakt dat het een echte relaxruimte is geworden!
Bergzolder: de bergzolder is met een vlizotrap te bereiken. U heeft op deze zolderverdieping meer dan voldoende ruimte beschikbaar voor de opslag van uw spullen!
Bijzonderheden:
Het betreft hier een vrijstaande woning met diverse gebruiksmogelijkheden. U heeft een zee aan ruimte ter beschikking. Een degelijk gebouwde en keurig bewoonde woning. De fijne ligging vlakbij het IJsselmeer en de riante kavel zullen bij velen in de smaak vallen! Een buffel van een woning!
De woning wordt verkocht bij inschrijving onder gunning vanaf € 525.000,--.
RE/MAX makelaar Han van Wijk begeleidt u graag bij de bezichtiging.
In verband met het Corona virus (voor uw en onze veiligheid) doen wij geen bezichtigingen zonder afspraak en met maximaal 4 personen en volgens de RIVM richtlijnen.
Bouwjaar: ca. 1903
Inhoud: ca. 1.137 m³
Woonoppervlakte: ca. 264 m²
Overige inpandige bergruimte: ca. 73 m²
Gebouwgebonden buitenruimte: ca. 5 m²
Externe bergruimte: ca. 6 m²
Perceeloppervlakte: 540 m²